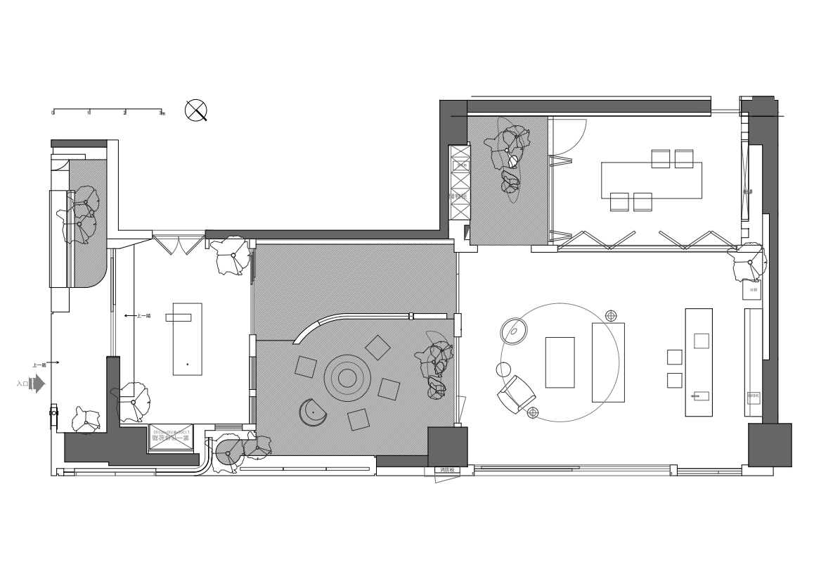
与自然为邻/门窗体验馆


作品说明
- 项目类型:展示
- 项目地点:太原市
- 建筑面积:170.0000㎡
- 项目造价:20.0000万元
- 主案设计师: 俎彦春
- 参与设计师:程万里
- 竣工时间:2023-08-01
- 设计机构:在造建筑空间设计工作室
-
项目定位:与自然为邻,重新定义人与产品与空间与自然之间的体验关系
-
空间意境:在卖场环境中创造出自然空间属性与体验
-
空间布局:分布的功能单元之间填充了连续的自然空间
-
设计选材:使用简单的原材料再创造,如用石子快速覆盖院子,减少施工复杂程度,节约预算
-
用户体验:同品类空间与众不同,吸引大量客流参观体验

