海归夫妻的轻复古婚房



- 项目类型:住宅公寓
- 项目地点:苏州市
- 建筑面积:120.0000㎡
- 项目造价:50.0000万元
- 竣工时间:2023-08-01
- 设计机构:川页空间设计
-
项目定位:屋主是一对幸福的夫妻,夫妻俩都是海归的企业高管。夫妻俩喜欢看书、运动、听音乐,追求高品质的精致生活。家对她们来说不仅仅是居住的地方,更是夫妻俩灵魂的休憩地,是心灵的安居处。
对全屋的空间布局,男屋主喜好通透、舒适的空间,而女屋主比较在意居住细节,风格上要求不刻板,简单中透着精致,她认为细节呈现是影响生活品质的重要因素,因此,她们期望更多的是从合理的规划生活动线、舒适生活的角度出发,摒弃复杂繁琐的装饰,通过合理的空间布局以及软装的搭配,营造出温馨、复古的空间氛围。
结合屋主的需求,设计师巧妙地对整个空间运用了极简的设计手法,弱化空间内部的界限,隐去多余的装饰。材质选择了艺术涂料、天然的胡桃木等,凸显造型体块的雕塑感和肌理感,温馨而朴素,让内心回归纯粹,演绎出当代生活和复古主义的混搭美学,小众又时髦。 -
空间意境:结合屋主的需求,
1.在空间布局上,设计师巧妙地对整个空间运用了极简的设计手法,弱化空间内部的界限,隐去多余的装饰。
2.材质上,选择了艺术涂料、天然的胡桃木等,凸显造型体块的雕塑感和肌理感,温馨而朴素,让内心回归纯粹,演绎出当代生活和复古主义的混搭美学,小众又时髦。
3.在色调上,全屋以奶油色搭配中古风家具,木质的温润与艺术漆的柔和相融合,不仅规避了视觉上的单调,也在极简温润的气质中产生了更多的灵动。 -
空间布局:结合屋主的需求和生活动线,将一楼进行整体重构:
Part 1,将客厅与卧室打通,打造成了大横厅;
Part 2,连接卧室的阳台内扩,抬高打造成了休闲地台,用于平时看书、喝茶等。另外一半未封闭,主要用于后续养花和休闲;
Part 3,调整了楼梯的位置到餐厅处,解决楼梯的采光和提高空间利用率;
part 4,调整了卫生间的位置,将原来的卫生间调整成了入户鞋柜和储藏区,同时借用部分卫生间区域与原楼梯间整合成卫生间;
part 5,考虑到厨房的采光和空间利用,将厨房与玄关处的墙体拆除,餐厅与厨房连接构建了半墙。
二楼是夫妻俩主要的活动区,结合屋主的生活动线进行了整体重构:
Part 1,将客厅部分挑高区域浇筑成了书房;
Part 2,将原来楼梯间改造成了衣帽间,打造成了一个包含卧室、衣帽间、卫生间为一体的卧室套间;
Part 3, 楼梯间结合承重墙打造了一个家政间,连接楼上楼下,动线简单,生活便利;
Part 4, 考虑到未来有朋友或父母过来住,次卧打造成了多功能房间,提高空间利用率。 -
设计选材:材质上,选择了艺术涂料、天然的胡桃木等,凸显造型体块的雕塑感和肌理感,温馨而朴素,让内心回归纯粹,演绎出当代生活和复古主义的混搭美学
-
用户体验:客户入住后觉得动线舒适且灵活多变,满足了她们对家的所有期待。
客厅装修前后
考虑到未来常住人员是夫妻俩人以及俩人的兴趣爱好,对整个客厅进行空间重构和去客厅化设计,将客厅与卧室打通,部分阳台内扩,打造成了一个大横厅并实现了客餐厅一体化。
在这个空间里,设计师巧妙的采用了极简设计的思路,弱化空间内部的界限,屋主可根据自己的喜好与需求自由划分空间区域。
位于客厅中间看似“孤立”的沙发,实际上是客厅的标志,没有隔断墙的阻碍,空间的划分随心所欲,随屋主的喜好来定,通畅的视野让此处更加的空旷。在这个空间里,通过沙发靠垫的不同摆放,屋主可以看书、玩吉他、喝茶;也可以看电视、运动;还可以静静地享受美食......
考虑到屋主的喜好以及生活的多样性,将部分阳台内扩并抬高,打造了一个休闲地台,不但在视野上让客厅空间得到了延申,也让生活形态得到了延续与完善。在这个空间里,夫妻俩可以一起看书、一边研究音乐,也可以一起喝茶,喝咖啡,还可以一起欣赏窗外的美景。
即使独自在家也需要仪式感,慵懒的午后,凝视外面的世界, 一杯咖啡,一份点心,享受一个人的下午茶。
餐厅装修前后对比图
考虑到餐厨区域的采光和空间利用率,设计师对这个空间进行重构,将厨房与玄关的墙体拆除,餐厅与厨房用半墙隔断。考虑入户入眼即是厕所,以及厕所窗户对着楼层公共走廊,设计后调整了楼梯的位置,同时将原来的楼梯间和部分原卫生间空间打造成了卫生间,将卫生间调整成了玄关储物区。
楼梯调整到餐厅区域,依墙而构建,空间占用率低,采光好。楼梯成了这个区域的一道靓丽风景线,与餐厅的中古风家具完美融合。支架电视可以根据需求摆放,实现了看电视自由。
中古风的餐边柜、椅子与原木餐桌相搭配,半围合的就餐空间,营造出舒适雅致的就餐环境,餐桌间隔恰到好处,恰似一方独立天地,或闲谈、或品尝美食。
客餐厅一体化的设计让整个空间的视野更加开阔通透,温暖而又和谐。对夫妻来说最好的状态是在同一空间下各自做着自己喜欢做的事,爱在,你在,我在......
厨房与玄关墙体的拆除,与餐厅的半墙设计,让厨房空间更敞亮,空间利用率提升了5平方。
厨房台面以及隔断台面的不同材质设计也处处透露着设计师的小心机,中餐操作的台面采用了岩板台面,西厨操作的台面选用了木质台面,既兼顾了实用性,也满足美观的需求。
考察到晚间做饭或研磨咖啡时对光线要求比较高,厨房选用复古小吊灯加强光线,复古小吊灯与小花砖相呼应,瞬间提升了整个空间的复古调性。
沿着楼梯踏步,层层递进,缓缓的打开二层空间。中部的挑空一直蔓延至二层的空间,充当两个空间的隔断,既不突兀也达到了隔断的效果。
书房装修前后对比图
书房是将原来的挑高区域浇筑而成,墙体的艺术漆搭配中古风的开放式书柜,既满足了观赏需求,又兼具实用性,艺术元素的融入为空间注入了深厚的文化底蕴和艺术魅力,通过精巧的设计和搭配,从而展现出了中古风独特的优雅和浪漫。
考虑到书房不足9平方以及长时间看书的视力疲劳,楼梯的扶手采用了透明玻璃,书桌采用了透明的亚克力树脂,尽可能地提高书房的空旷感,也让整个空间更通透、轻盈,视野开阔。
楼梯尽头结合承重墙打造了一个家政间,在位置上承上启下,大大缩短了生活动线,让生活更便利。
卧室装修前后对比图
卧室装修前后对比图 原来的楼梯间位于房子中央,将二楼的空间切割的比较凌乱,动线也不太合理。空间重构后,设计师调整卧室门洞的方向,将楼梯间调整成衣帽间,打造成了一个包含卧室、衣帽间以及卫生间的卧室套间。
卧室整体色温选择暖色调为主,显得温馨柔和。同色系质感的家具,使整个空间温暖治愈,同时还具有浓厚的自然和艺术气息,特别设计的床头灯散发出温暖柔和的光芒,为整个空间增添了浪漫的氛围感。考虑到窗户的遮光,窗户加了复古的百叶窗,与纱帘相配合,实用又有情调。
考虑到衣帽间和卫生间同时开门的空间压力,卫生间和衣帽间分别采用了折叠门和双开门,解决了进出卫生间和衣帽间的逼仄感。
卫生间采用干湿分离,各个区域相互独立,互不干扰。考虑到卫生间空间比较小,布帘取代了常规隔断方式,轻盈也不占用空间,整个空间弥漫清新、放松的气息。
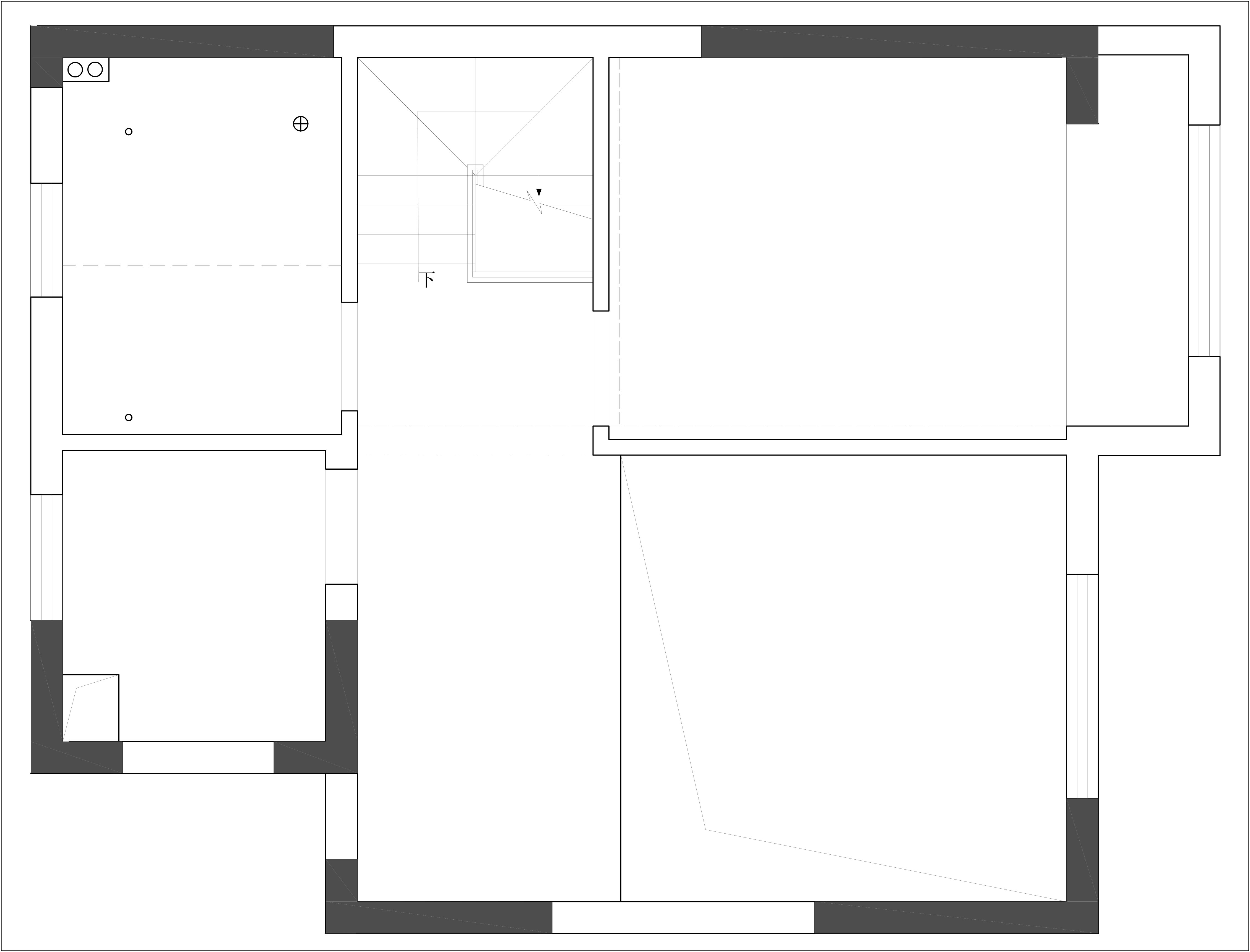
一楼原始平面图 1.入户入眼即为厕所,且厕所对着厨房,动线不合理,采光差,空间比较逼仄; 2.厕所空间比较小且窗户对着楼层公共走廊,私密性比较差; 3.厨房比较小,采光不太好; 4.楼梯和客厅两处挑空,空间浪费比较大,将空间切割比较零碎。 5.楼梯位于房子中央,比较占用空间,而且采光比较差; 6.客餐厅空间比较小;
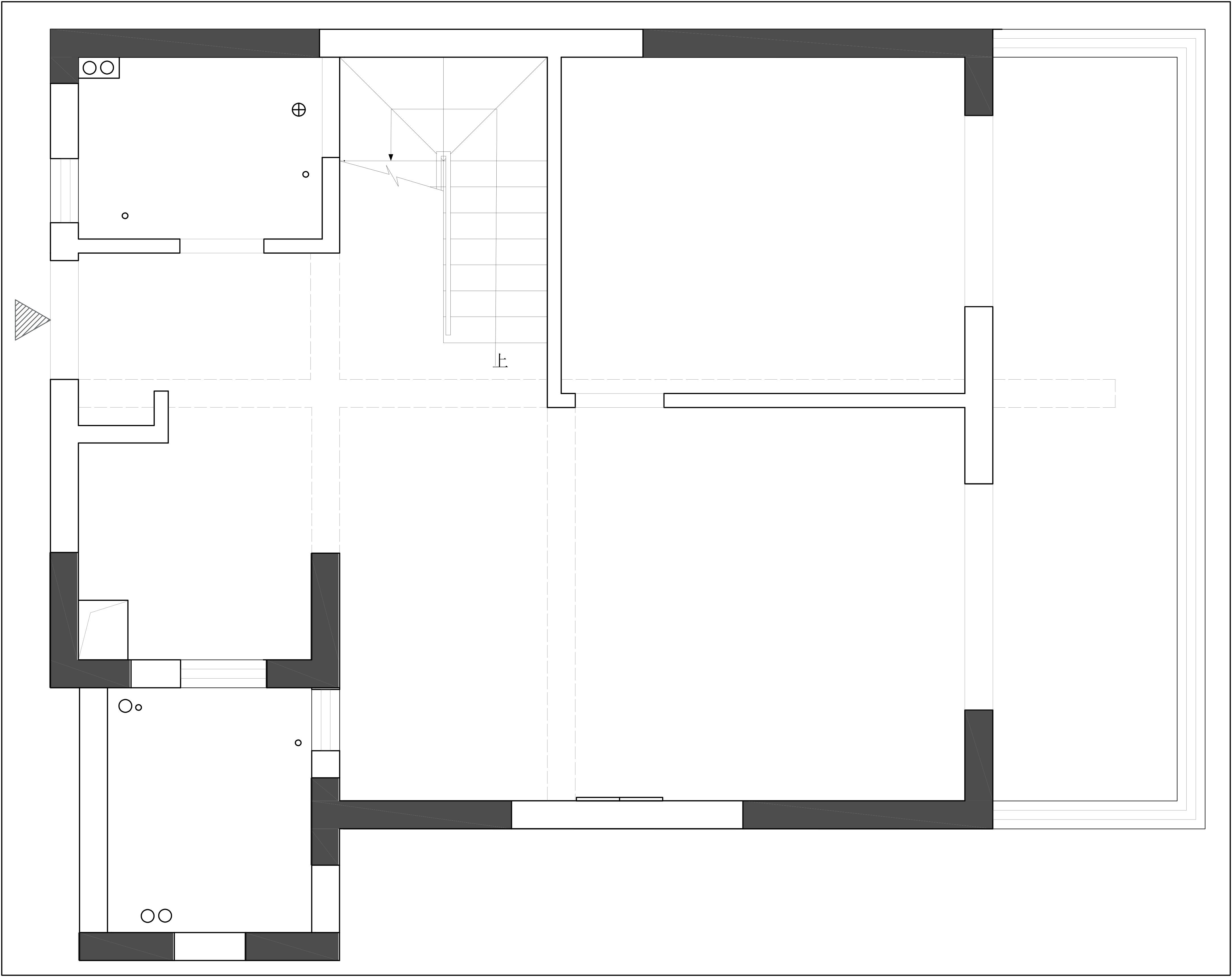
二楼原始图: 1.楼梯和客厅两处挑空,空间浪费比较大,将空间切割比较零碎。 2.布局不太合理,卧室和洗手间分别位于楼梯的两侧,生活动线不便利。
一楼装修平面图, 结合屋主的需求和生活动线,将一楼进行整体重构: Part 1,将客厅与卧室打通,打造成了大横厅; Part 2,连接卧室的阳台内扩,抬高打造成了休闲地台,用于平时看书、喝茶等。另外一半未封闭,主要用于后续养花和休闲; Part 3,调整了楼梯的位置到餐厅处,解决楼梯的采光和提高空间利用率; part 4,调整了卫生间的位置,将原来的卫生间调整成了入户鞋柜和储藏区,同时借用部分卫生间区域与原楼梯间整合成卫生间; part 5,考虑到厨房的采光和空间利用,将厨房与玄关处的墙体拆除,餐厅与厨房连接构建了半墙;
二楼装修平面图, 二楼是夫妻俩主要的活动区,结合屋主的生活动线进行了整体重构: Part 1,将客厅部分挑高区域浇筑成了书房; Part 2,调整卧室门洞的位置,将原来楼梯间改造成了衣帽间,打造成了一个包含卧室、衣帽间、卫生间为一体的卧室套间; Part 3, 楼梯间结合承重墙打造了一个家政间,连接楼上楼下,动线简单,生活便利; Part4, 考虑到未来有朋友或父母过来住,次卧打造成了多功能房间,提高空间利用率。

