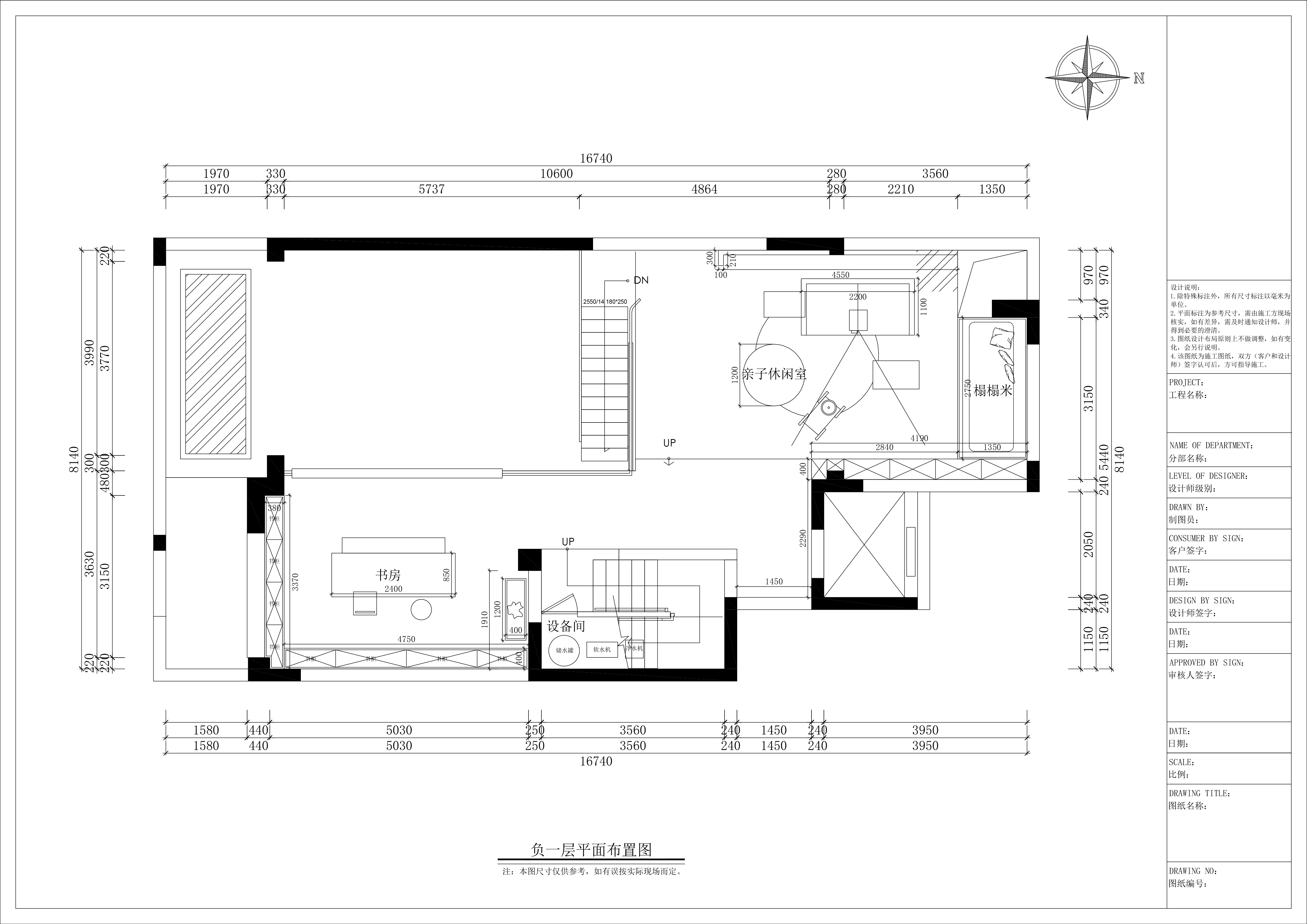
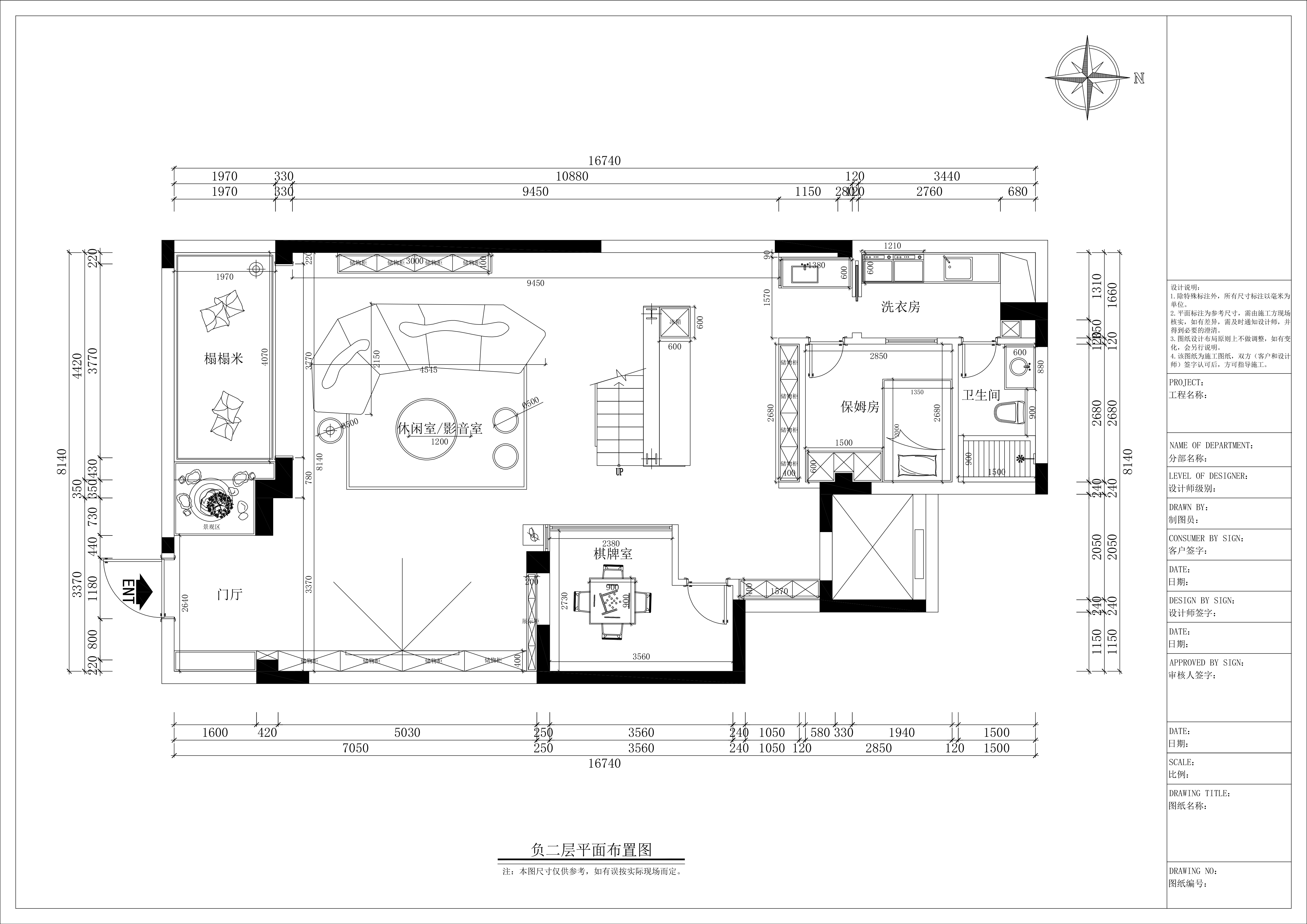
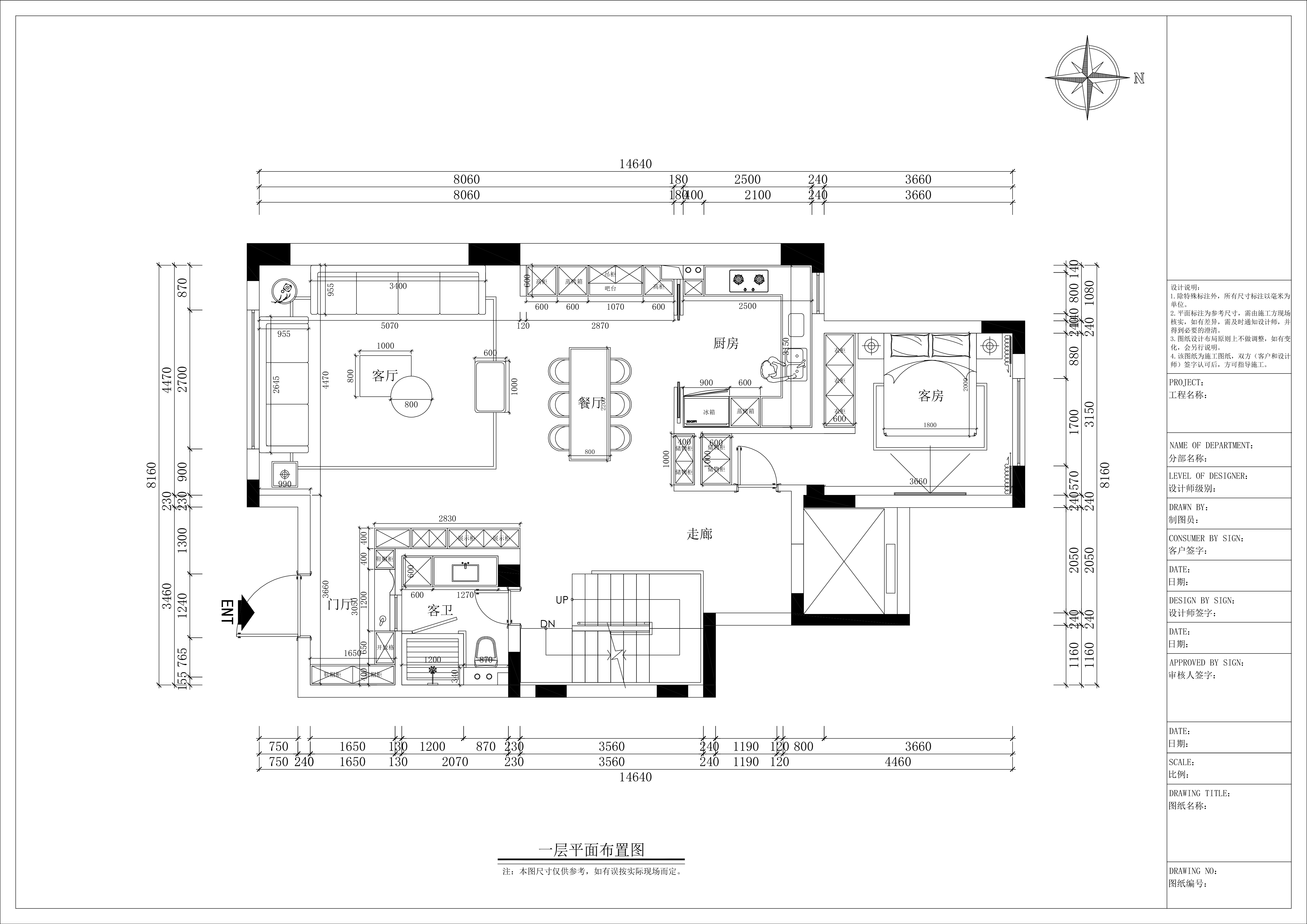
-
项目定位:项目定位:别墅度假风
以老人居住为主,整个格调轻松、明快 -
空间意境:大量运用胡桃木原木质感,充分考虑空间采光
-
空间布局:开放式的家庭影院,在没有光线的地方通过玻璃等材质进行采光
-
设计选材:胡桃木采用实木贴皮工艺代替原木,地面瓷砖以及卫生间厨房采用岩板瓷砖代替大理石,全屋采用LED射灯 降低能耗。
-
用户体验:巧妙地利用空间,打造出富有个性的装饰效果,使空间更加温馨、舒适。
设计师思路清晰、布局合理、细节处理很到位,完美展现出度假风格的美感和舒适性。
0
0

认证 · 让您身份增值
435