湘超鲜
438
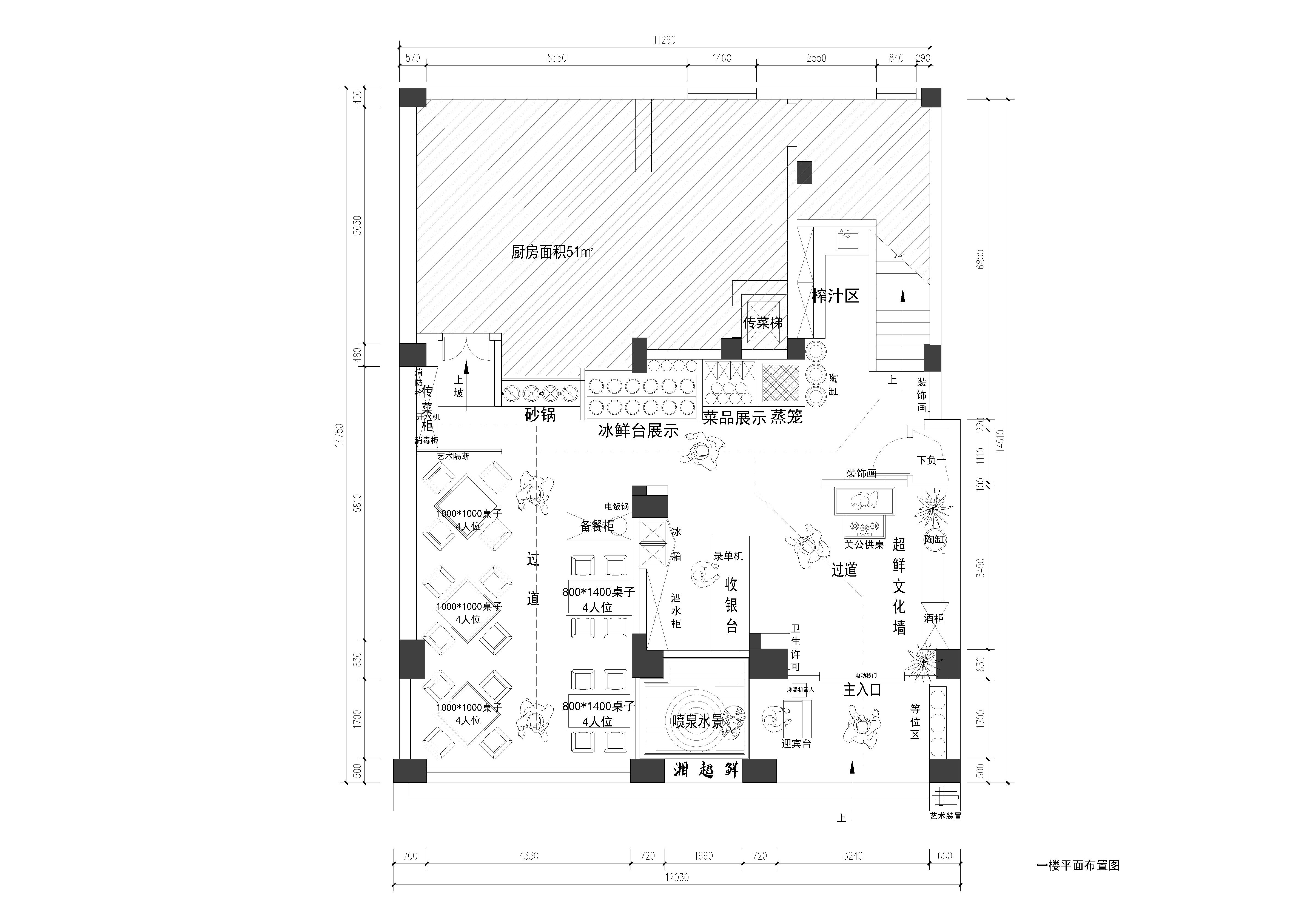
作品说明
- 项目类型:餐饮
- 项目地点:株洲市
- 建筑面积:600㎡
- 项目造价:200万元
- 主案设计师: 黄鑫
- 参与设计师:成果
- 竣工时间:2023-06-05
- 设计机构:湖南悦木餐饮文化有限公司
-
项目定位:以湖南土菜为媒介,做高端土菜宴请
-
空间意境:整体灰色调,让土菜不在土,让环境不在土
-
空间布局:在小面积区域了,做了一个菜品呈现的明档,让顾客更加直观感受
-
设计选材:用了环保型青砖,及可再生墙面护墙板
-
用户体验:吃土菜,都会联想到土土的环境,在新的场景下面,土菜显得那么的美味
0
0

认证 · 让您身份增值