尚书宴
308
作品说明
- 项目类型:餐饮
- 项目地点:福州市
- 建筑面积:2500㎡
- 项目造价:800万元
- 主案设计师: 黄鑫
- 参与设计师:黄鑫 陶淑婷
- 竣工时间:2023-03-01
- 设计机构:湖南悦木餐饮文化有限公司
-
项目定位:以长乐文化为主动脉,用唐宋美学来塑造整个空间
-
空间意境:把园林的行、望、游、居做为重点体验感受来打造
-
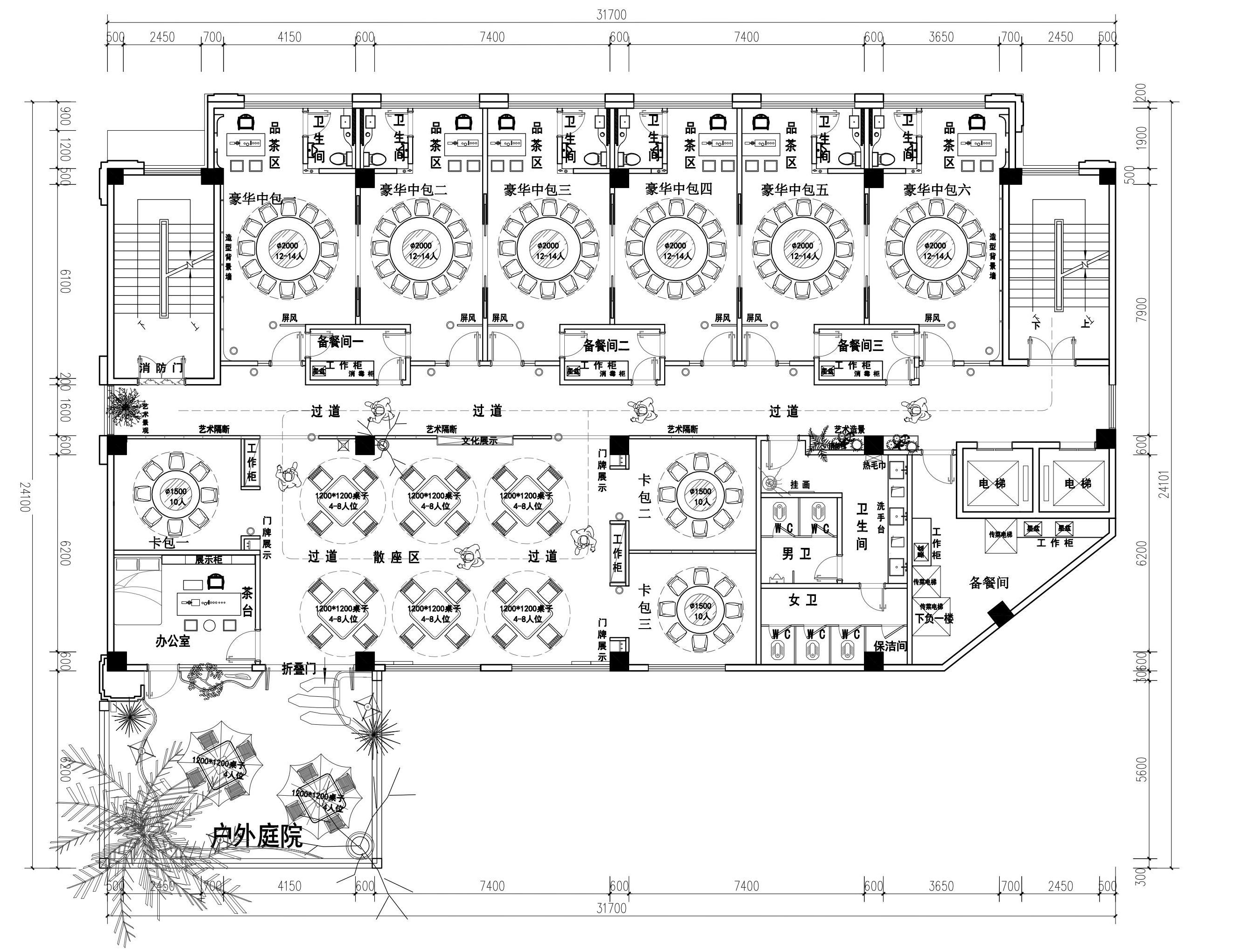
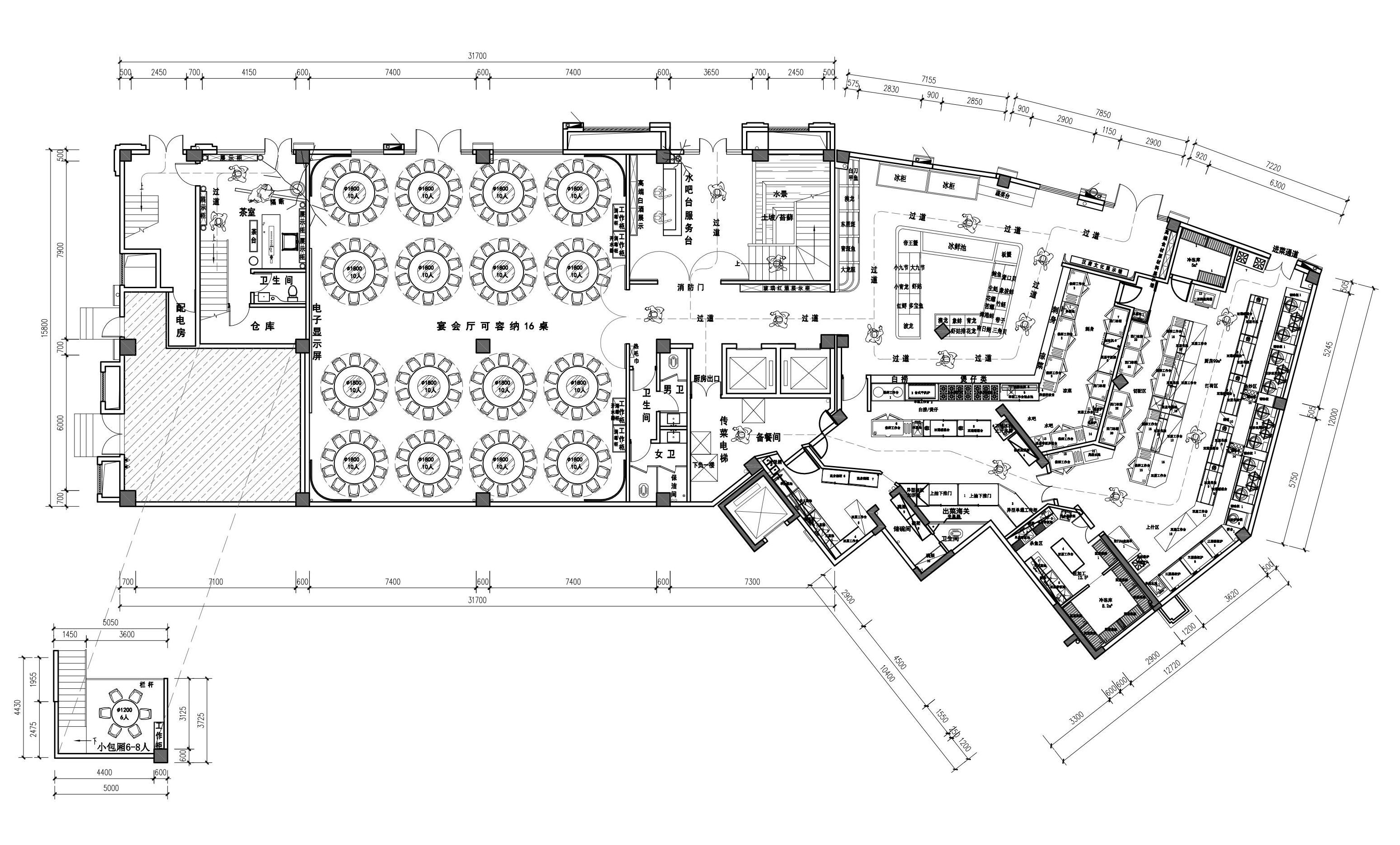
空间布局:一楼利用公共过道位置,引入园林手法,把进口自然的与园林合二为一
-
设计选材:当地自然的大理石选用,及科技再生板做为墙面主体材质
-
用户体验:由于园林手法的带入,让整个餐饮的用户体验,由纯粹的用餐体验,变得更加的有趣,在此情趣的重要性,运运大于技法。
0
0

认证 · 让您身份增值