-
项目定位:以现代东方人的美学理念为设计思想,以现代轻奢的生活调性,来营造与城市最为契合的格调,使它不仅仅是一套住房那么简单,我们而是试图去建造一座人文雅院,让主人可以从中能寻找到自己美好的记忆,而且还可以释放出自己的个性品位,体验温馨优雅的感受。我们不仅仅是对建筑与空间的设计,而更多的是表达出对人文的关怀。
-
空间意境:风格见型格,格局负责随性而起,装置艺术担纲审美,艺术执念藏于俗常烟火,理想主义可生诗意满格,细部着眼的软饰小雅,贡献了全场最佳结构张力,每一处仪式的游刃有余,都是在昭示个性,暗喻品位精神的誓不罢休。
-
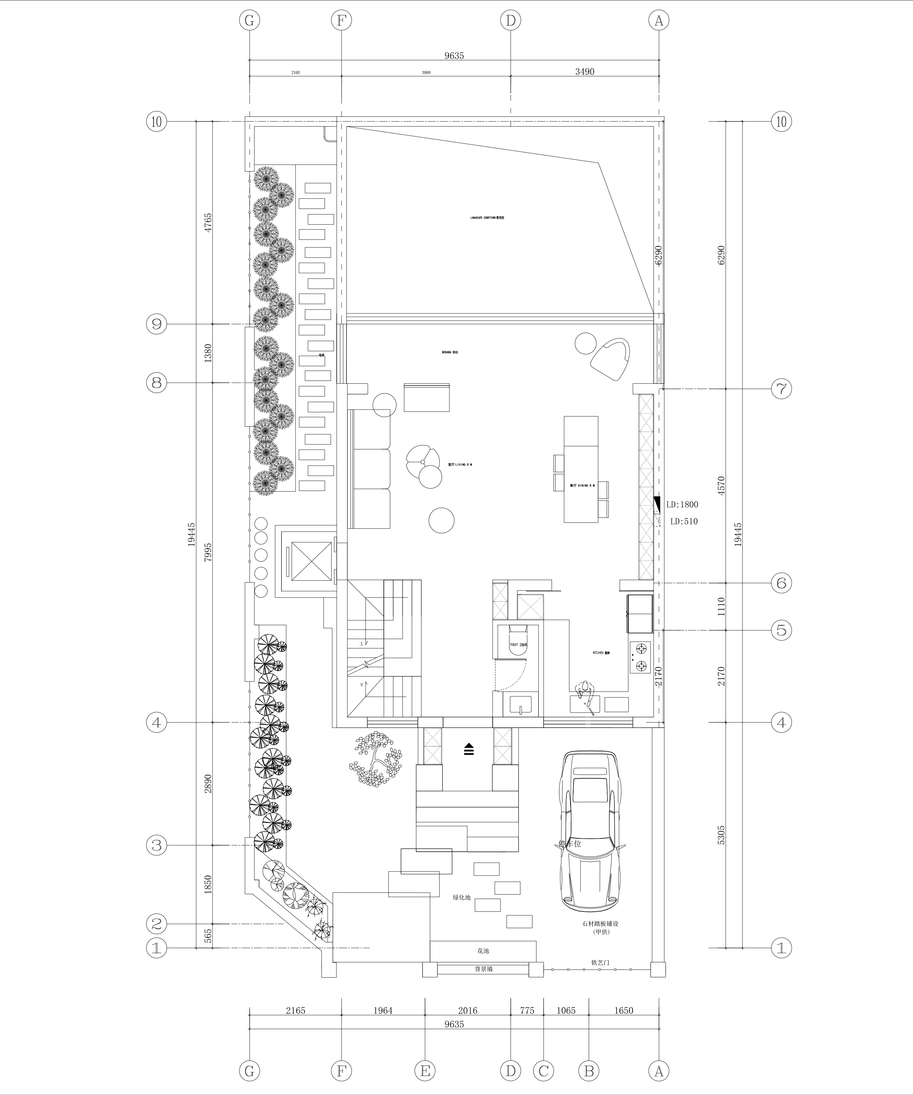
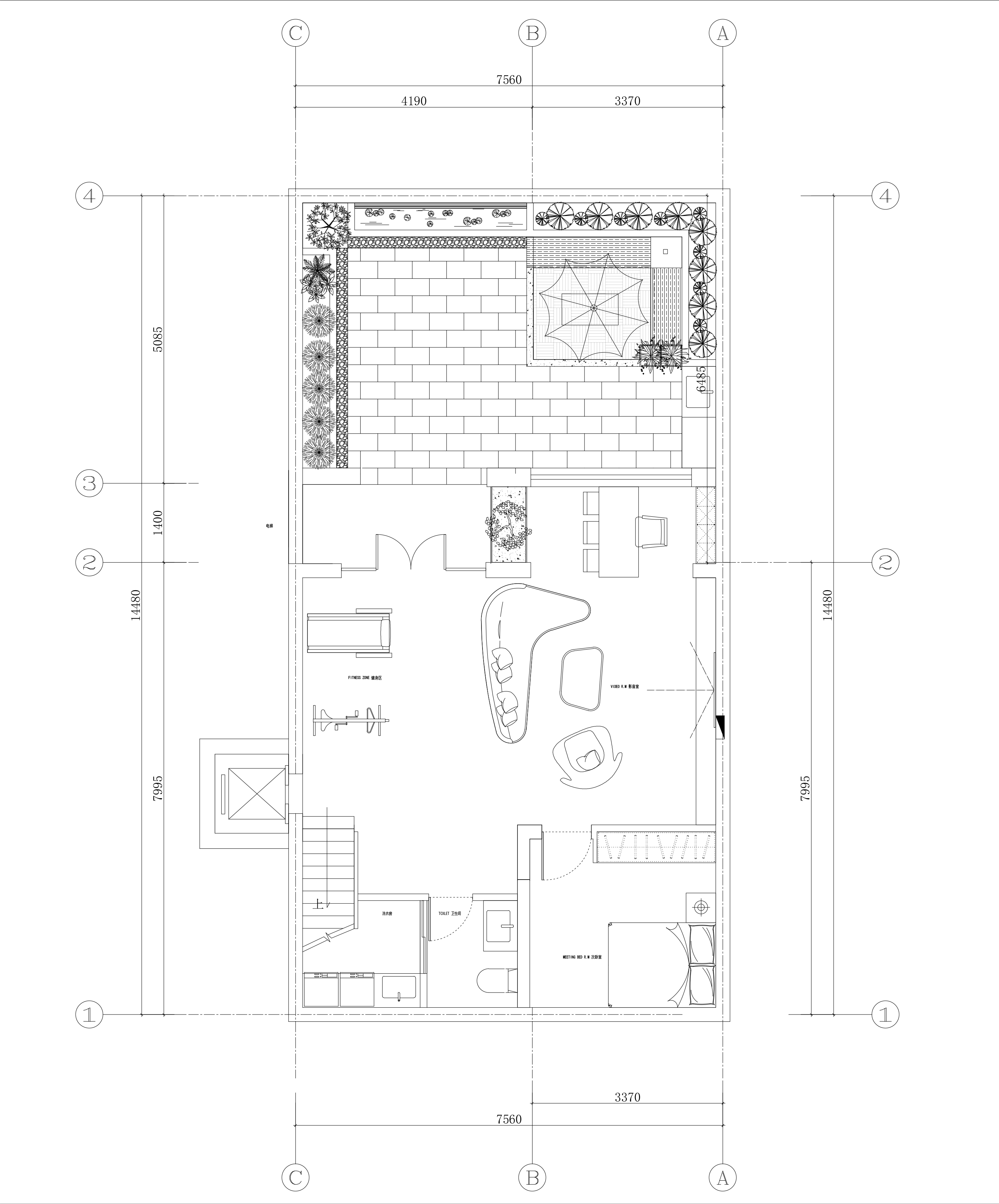
空间布局:客餐厅改成宽厅,作为平时休息交流的区域。取消电视机等不必要的需求
-
设计选材:墙面采用木,石,布的融合显得简单整洁。
-
用户体验:入住后业主一致的好评,考虑周到细致。
0
0

认证 · 让您身份增值
441