渐入佳境
269
作品说明
- 项目类型:别墅
- 项目地点:聊城市
- 建筑面积:300㎡
- 项目造价:160万元
- 主案设计师: 吕四新
- 参与设计师:吕四新
- 竣工时间:2023-12-15
-
项目定位:现代轻奢风低调柔和而又不失奢华,追求简单时尚的现代风格,电视墙采有大板石板,木饰面深浅搭配线型灯,设计简洁大方,打造出高品质,优雅便不失温馨的宜丑空间,让居家氛围显得从容惬意
-
空间意境:整体空间划分重新组合呈现出低调的奢华
-
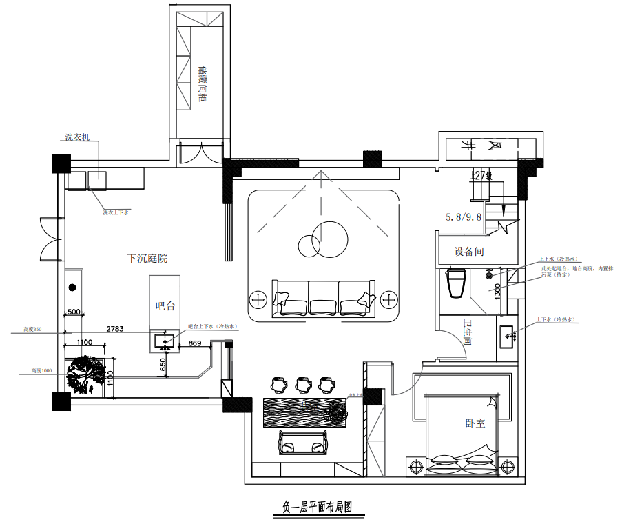
空间布局:把一楼空间重新组合布局。把原有厨房改成餐厅,原有卧室,改成厨房,原有户外阳台纳入室内。负一下沉式庭院阳光房和室内共融。形成了一楼居住和负一休闲娱乐的空间。
-
设计选材:材料上墙板材质选用环保的水性漆,地面通用瓷砖。环保健康大于奢华
-
用户体验:改造后的空间感觉舒适空间利用最大化,动线分区,采光通气得到最大改善。
一楼入户玄关,奢华大理石迎面而来,尽显主人的尊贵
一楼入户门厅整体效果
一楼入户玄关,奢华大理石迎面而来,尽显主人的尊贵
一楼电视墙,木纹材质电视墙结合大板奢,柔硬结合,温柔适中
一楼客厅整体效果。
一楼电视墙木格栅,壁炉增加室内氛围感满满
餐厅酒柜,玻璃柜门,岩板台面,木质酒格,多种组合形式,实用又美观
一楼沙发背景墙,深木纹结合混油木质墙板格栅,配以线型,精致内敛.
沙发背景墙,软装钟表恰到好处
一楼餐厅,餐桌及餐椅、窗帘色彩融洽
一楼餐厅酒柜
一层餐厅酒柜
一楼餐厅
厨房,地柜和吊柜对比深浅搭配,满满的轻奢感
一楼厨房
一楼主卫生间简洁
一楼阳台,迷你型功能衣架
主卧室床头背景墙。
一楼南次卧男孩房。
一楼主卧衣柜
一楼北卧
一楼衣柜内部
一楼北卧侧柜
一楼北卧书桌
一楼客位
一楼主卫
走廊,装饰柜
走廊,弧形走廊,尽显仪式感
负一休闲厅,潘多拉石材迎面面来
负一休闲厅及书房
负一休闲厅全景
负一休闲厅书房
负一楼梯间
负一卧室
负一卧室衣柜及玻璃砖隔断,采光引入室内
负一天井,电动开启窗,通风换气,遮阳帘
一楼主卧室
负一天井遮阳帘
隔断柜
负一天井处,岛台处
负一景观池
负一天井
负一景观池
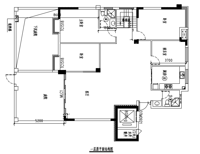
一层原始平面结构图
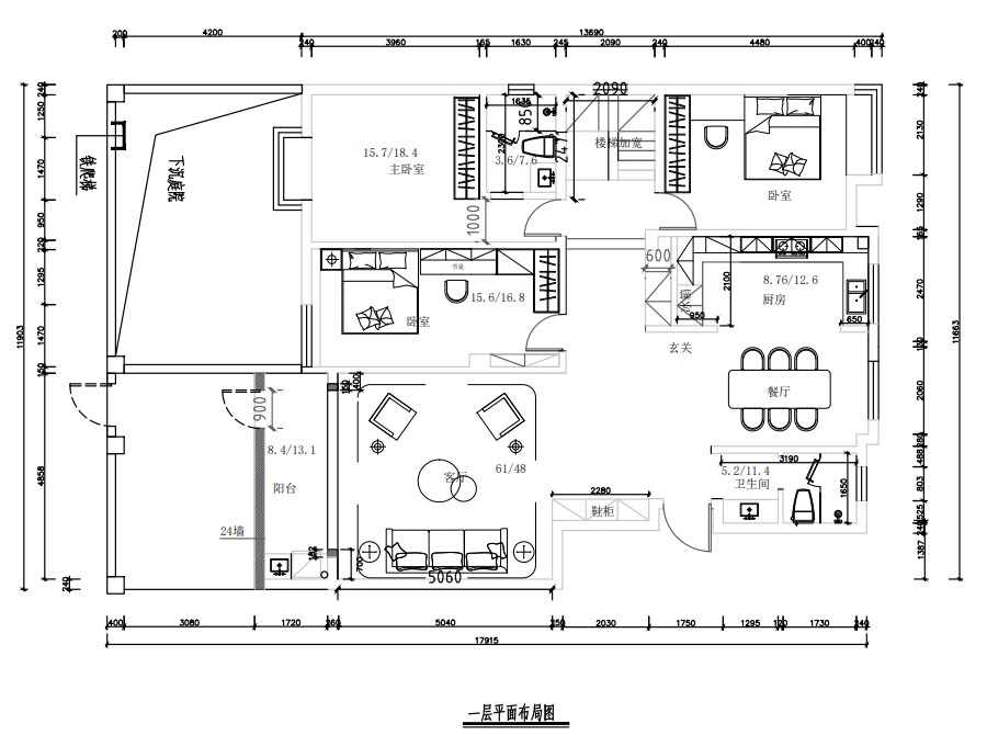
一层平面布局图
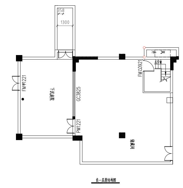
负一平面结构图
负一平面布局图
0
0

认证 · 让您身份增值