130㎡酌享微醺生活
389
作品说明
- 项目类型:住宅公寓
- 项目地点:西安市
- 建筑面积:130.0000㎡
- 项目造价:45.0000万元
- 参与设计师:肖禹辰、苏鑫、王鹏迪
- 竣工时间:2023-07-12
-
项目定位:年轻且极具事业心的业主,需要设计师打破常规,依据精装房现状发挥创想和构思,用不同视觉,为空间打造更多的可能性。
-
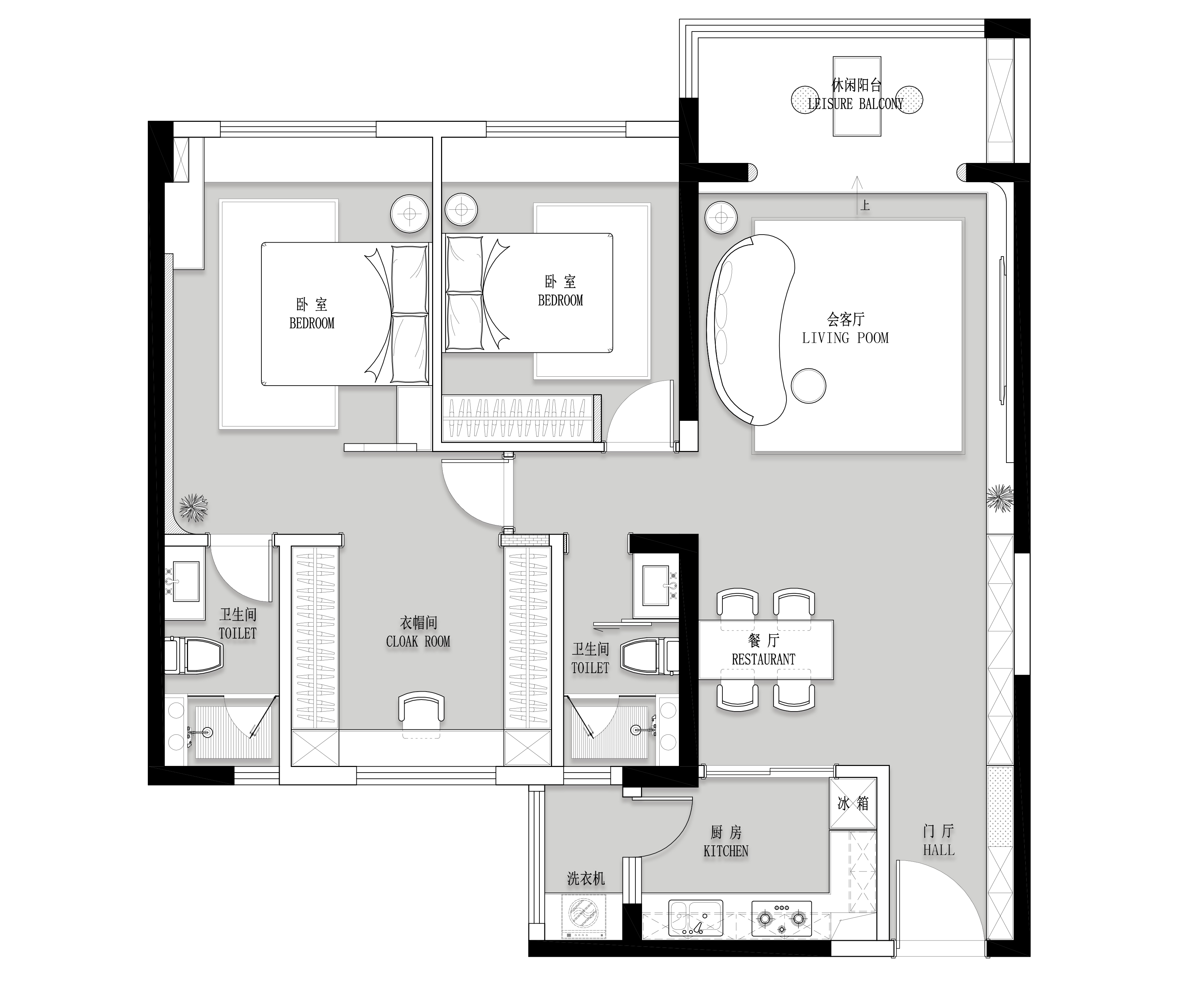
空间意境:客餐厅连接门厅为一体空间,设计既要满足各个空间独有的使用功能特色还不能喧宾夺主;需要做整体的融合和元素的延伸呈现,还不能显得杂乱无章;难度的挑战对于设计师的空间格局把控力要求较高。
照明设计也是该项目中的一大亮点。要在统一色调的氛围中营造变化的、氤氲耐人的光影效果,这需要设计团队具有足够的专业度和实践性。亦明亦暗的光线若隐若现,见光不见影的视觉,让人身处其中不自知。 -
空间布局:圆弧线条和柔和的光线,为居室带来更多的温情,在有限的预算下,设计师通过空间结构改造,灯光设计,以及对色彩的运用等方面高还原度的落地施工实现了超预期的设计效果,呈现了设计价值。
在保证色调风格统一性的基础上,设计师为空间做减法,不仅保有圆弧曲线和空间的流动感和连贯度,也最大化的利用了空间面积,增加纵深感。
强调主卧室的独属性和私密性,在房间入口处增设了倒U型镂空的隔断,一方面保证正常休息也有视线的通透性。一虚一实之间,借景生情。
卧室墙面拐角及隔断的造型上延续了圆弧造型,增强了空间的灵动性和韵律感;有效的打破了主卫直冲床的尴尬。
以前的阳台很窄,面积利用也不够。通过设计手法增加了视觉上的延伸,打开空间的界限,回归生活最原本的状态,打造成闺蜜聚会笑谈的休闲一角,享受微醺生活。并且为了保证隔热保温,选择了高品质的系统窗;还采用了悦目通透的白色布帘,配合地暖和中央空调,保证了各个季节的适宜的室内温度。 -
设计选材:除了厨房和卫生间微调外,为了空间柔和调性的一致,将原硬装的花地砖改为微水泥;也为了提升业主的生活品质,更换了品质门窗和中央空调。
沙发及部分家具根据房间的尺寸来定制生产,不仅实用度高还与空间相吻合。从以人为本的需求理念出发,因地制宜的将三居室改造成两居室,并在各功能区增强高容纳度,强调生活化的日常。 -
用户体验:通过设计和对空间的理解,让业主感受家的品质和对美好生活的期待与向往。用设计帮业主实现理想的居家环境。
0
0

认证 · 让您身份增值