同观 · 澜悦溪山私宅


作品说明
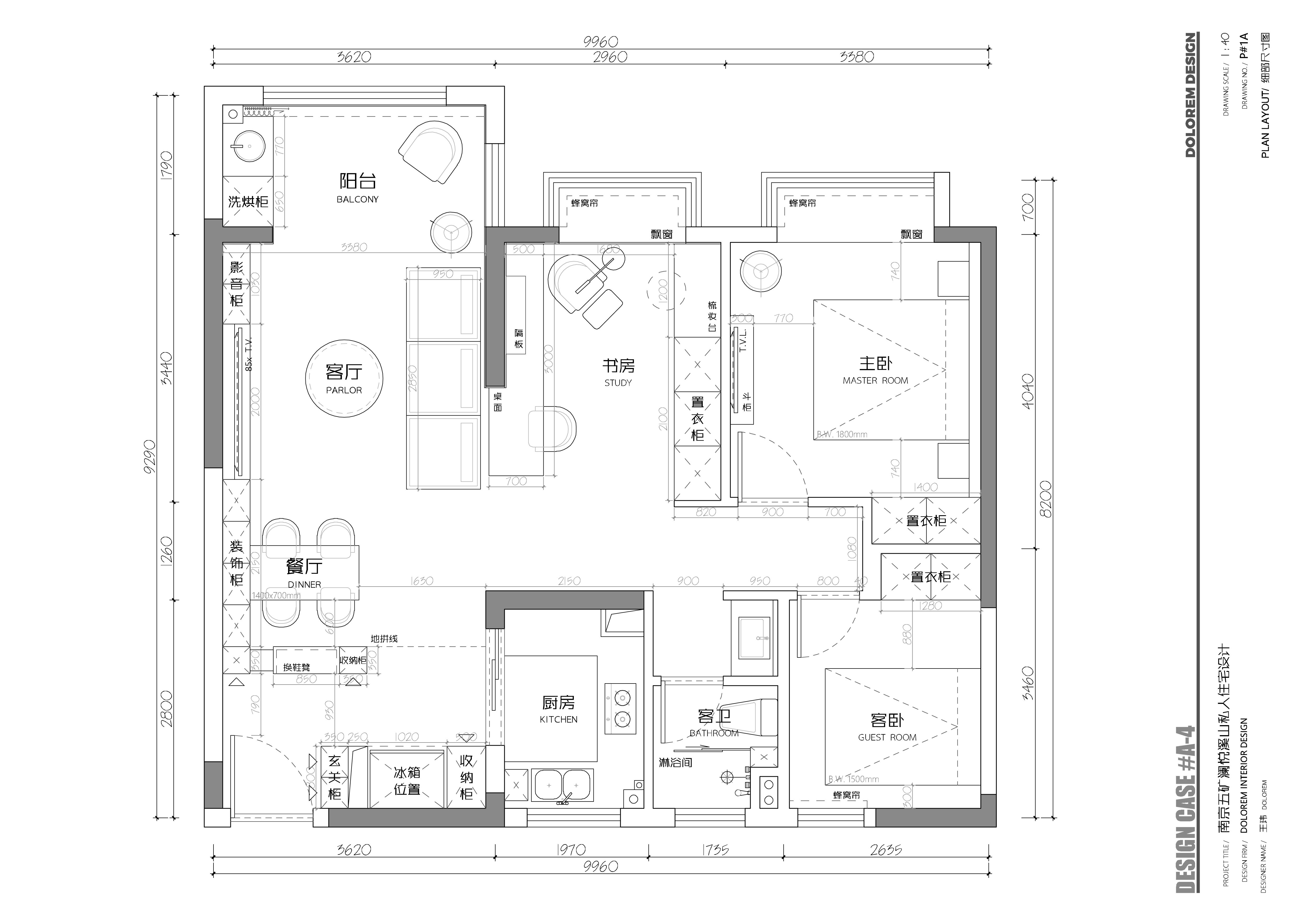
- 项目类型:住宅公寓
- 项目地点:南京市
- 建筑面积:90.0000㎡
- 项目造价:35.0000万元
- 主案设计师: 王玮
- 竣工时间:2023-08-10
-
项目定位:视觉使人疏离,其它感官使人卷入空间。我们试图通过合理的留白与间隙,能够为每一位居住者的生活时间多留一些缝隙。
The vision is alienated, and the other senses are involved in space. We try to leave a gap with areasonable gap and gap, for each user's working hours to leave some gaps.
-
空间意境:我们相信,空间只是一个隐形的外壳,不断发生的现状、不断卷入的人与事业才是最终实体,我们只是为这一实体提供了一个更为牢固的支撑。
We believe that space is just a stealth shell, the ongoing situation, constantly involved in the causeand cause is the ultimate entity, we only for this entity to provide a more solid support.
-
空间布局:空间设计的本质目的是“承载生活”,这一点非常重要。
家居空间不仅仅是居住的场所,每一个被称为家的地方都有他的灵魂,这和情绪有关,和生活有关,和行为有关。创造设计与使用者之间的情感和需求连接,我们认为这才是设计的根本。
The house is not just a place of live, every homme has his soul, which is related to emotions, andcareer, and behavior related. To create a design and the relationship between the emotional and demand users, we think this is the fundamental design.
-
设计选材:设计过程以衡量实际环境及空间运用为基本准则,在经济和美学的原则中取得适当平衡,尽量发挥现代主义的独特个性。在概念与构思方面,藉由建筑背景的优势,糅合丰富的室内设计经验,认真处理室内的每个空间,致力彰显完美的空间比例和光线运用,且不为传统观念所局限,并透过敏感的触觉,掌握时尚的脉搏,做出创新同时又配合住户心中期望的设计风格。
-
用户体验:用户入住摄影期间非常满意,刚刚完工,年底再沟通反馈

