-
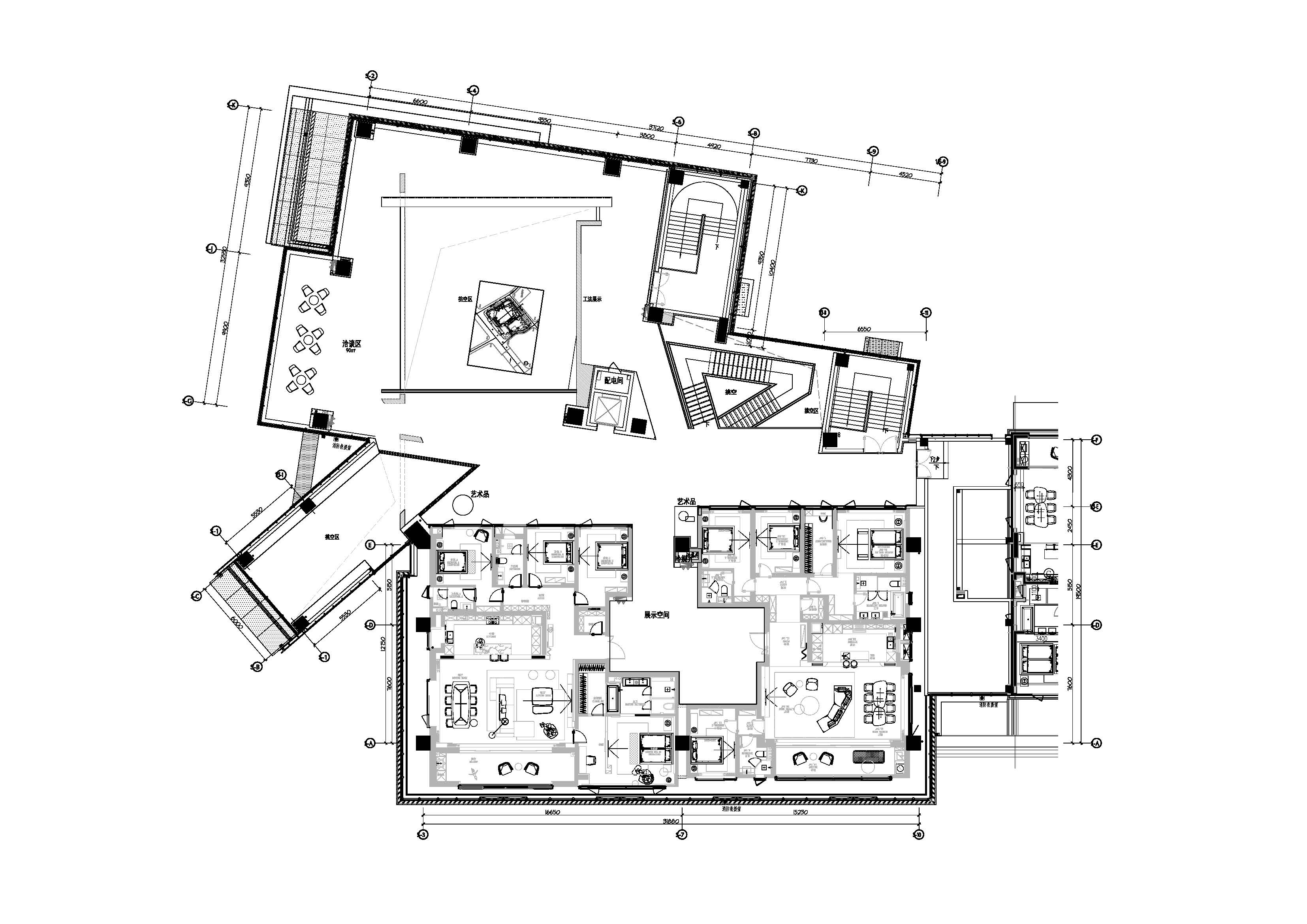
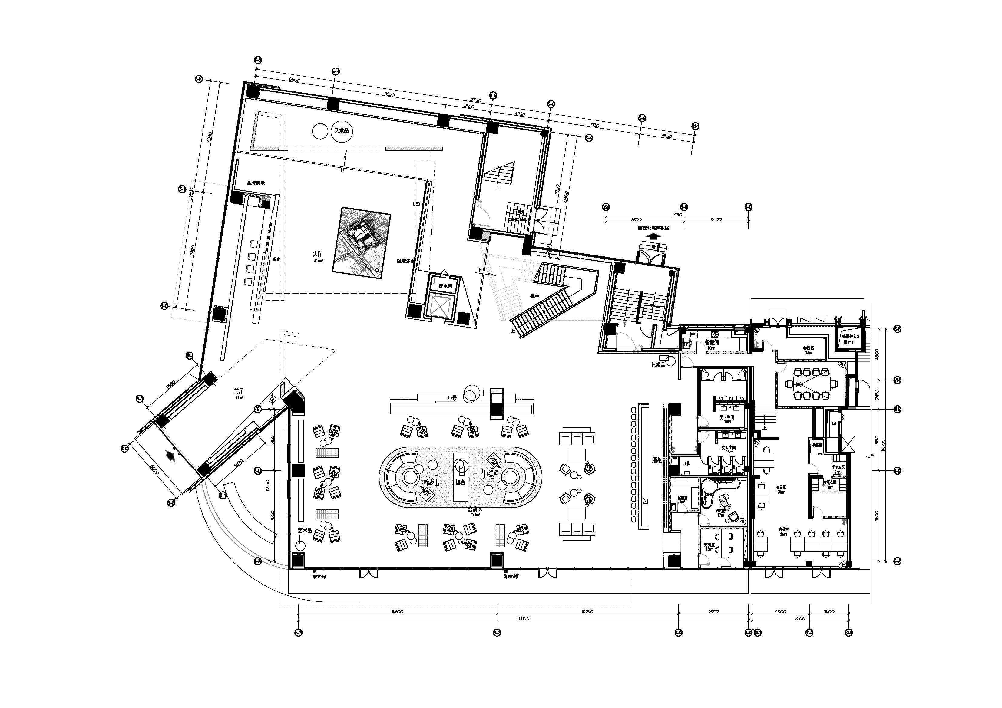
项目定位:整体挑空大堂几何体的空间关系,延续构成感的设计,考究细节,打磨空间细节和质感,展现永不过时的现代化设计。通过打造空间构成和细节,体现空间品质和高级的格调,让人们在光影中抵达未来社区,开始一段期待与希望交织的新旅程。
-
空间意境:将空间柔和融入艺术、旋律、阅读精品生活体验,像咖啡音乐艺廊,多维空间为一。洽谈区的设计考虑融入咖啡吧的元素,整体氛围更加赋有亲和力和追求细节的设计和品质,通过软硬装的搭配让宾客有宾至如归的感受。整体空间的设计语言依旧是探索大块面的空间构成感。
-
空间布局:叙述着现代先锋的品格态度,设计结合艺术性的简约木制吧椅,营造出温暖和谐的艺术空间,体现了人与人,人与空间,连结,互助、交流情感的场所,从而创造价值。走进其中便仿若遇见一处充满惊喜的咖啡角,得以畅享片刻的精致生活。
-
设计选材:弧形元素沙发组合为整个洽谈区中心,我们设计了兼具功能性与生活体验相结合的沙发和展示台,并赋予了空间特殊的雕塑感。呈现独特的美学逻辑与延续弧形雕塑语汇的琉璃树艺术装置巧妙的组合,进一步昭示空间的高贵感。长桌展示的音乐类文创精品注入文化肌理,描绘现代都市生活精致的品质。在斑驳的树影下落座交谈,形成独特的沉浸式氛围体验。
-
用户体验:软装的冷暖搭配,金属与布艺皮革的结合,在细节处彰显品质。咖啡与酒的碰杯声响重现于武汉的窗棂上写下新的启示,是放松精神,身体和精神上松弛感的地方。

