-
项目定位:三亚金茂酒店创新实验室不仅是一个展览空间,它也是一个允许参观者和合作者体验和参与设计的空间。它支持一切现实与虚拟的制造,从物理3D操作设备到整个VR/AR大厅空间设计。
-
空间意境:参观者通过一条体验过道进入我们的金茂实验室,首先映入眼帘的是大堂空间的艺术品 ---- 幻方万象,运用“格物致知”的理念打造,魔方由小块组成,存在中心轴,打开空间的无限可能。通过“格物”的实践,以魔方为起始点、探索变与不变之间错综缠绕的关系,以镜面效果放大裂变效应,在看似无序的现象中发现不变的本质。金茂幻方的细节和结构是在金茂文化中提炼出来的,代表了金茂服务和身份的最高水平。
-
空间布局:设计师专门打造的冥想空间 ---- “金茂禅院”,采用“日间榻”理念的模块化设计,外部使用具有禅宗风格的未来派材料,内部采用镇静隔音和触感面料。体验者坐在“舱内”可以感受视觉、听觉、嗅觉等全方位感官上的放松和愉悦。
-
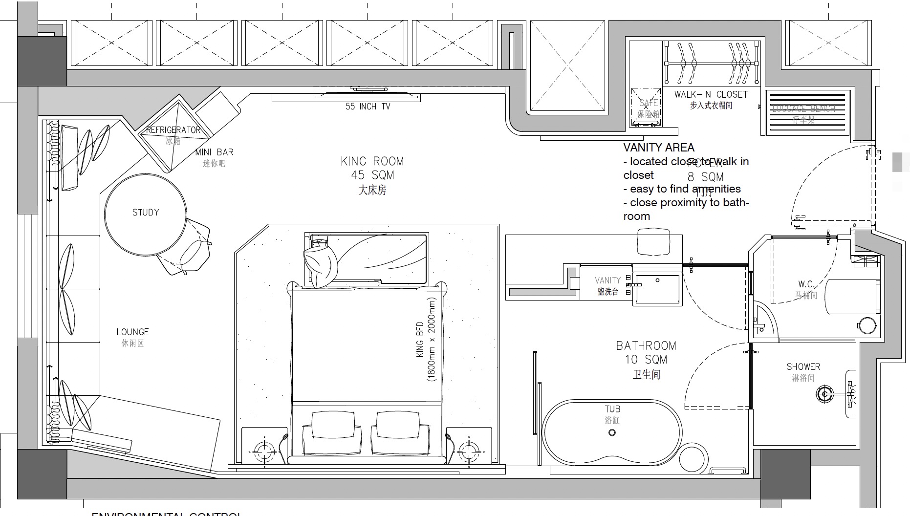
设计选材:客房区域使用符合商务格调大气内敛的基础色配上些许调色打造。客房内部主要分为三个空间,靠近大门的是第一空间,由衣帽间、走道空间和卫生间组成,配有为金茂专门打造的能反映健康数据的“魔镜”、私密又宽敞的盥洗空间,它旨在让刚经历疲惫旅途的客人得到放松身心的效果,给他们补充能量,帮助他们焕然一新。第二空间是睡眠休息空间,科技的辅助使得休息变得更加灵活与享受。靠窗的第三空间是个灵活的空间,客人们可以在此工作、娱乐或是与世界交流,同时迷你吧的设置保证了零食和饮料的配备齐全。
-
用户体验:在金茂综合实验区里能找到为金茂量身定做的家具、纪念品和小物件以及运用在空间里的材料展示。客人们可以在这里自由组合活动家具,尝试搭配的不同可能性。而专门打造的会议空间 – 金茂智会间/金茂智趣坊,科技在此运用得淋漓尽致,整个弧形墙面都可用做投影屏,天花的灯光可根据会议的不同内容来调整。科技使会议变得更加便捷与高效。

