江岸逸居
180 - 项目类型:住宅公寓
- 项目地点:南昌市
- 建筑面积:180.0000㎡
- 项目造价:100.0000万元
- 主案设计师: 卢迅
- 参与设计师:卢迅
- 竣工时间:2023-03-15
-
项目定位:在满足客户风格以及需求的前提下把每一处细节做好,做美,让屋主住房的舒适度达到最佳状态。
-
空间意境:本案房主采纳的是现代简约风格的同时也喜欢温暖舒适的氛围,于是用艺术化的手法,营造出“温馨、优雅、华丽”的调性,彰显出每个空间的逻辑关系,勾勒出家的特色。
-
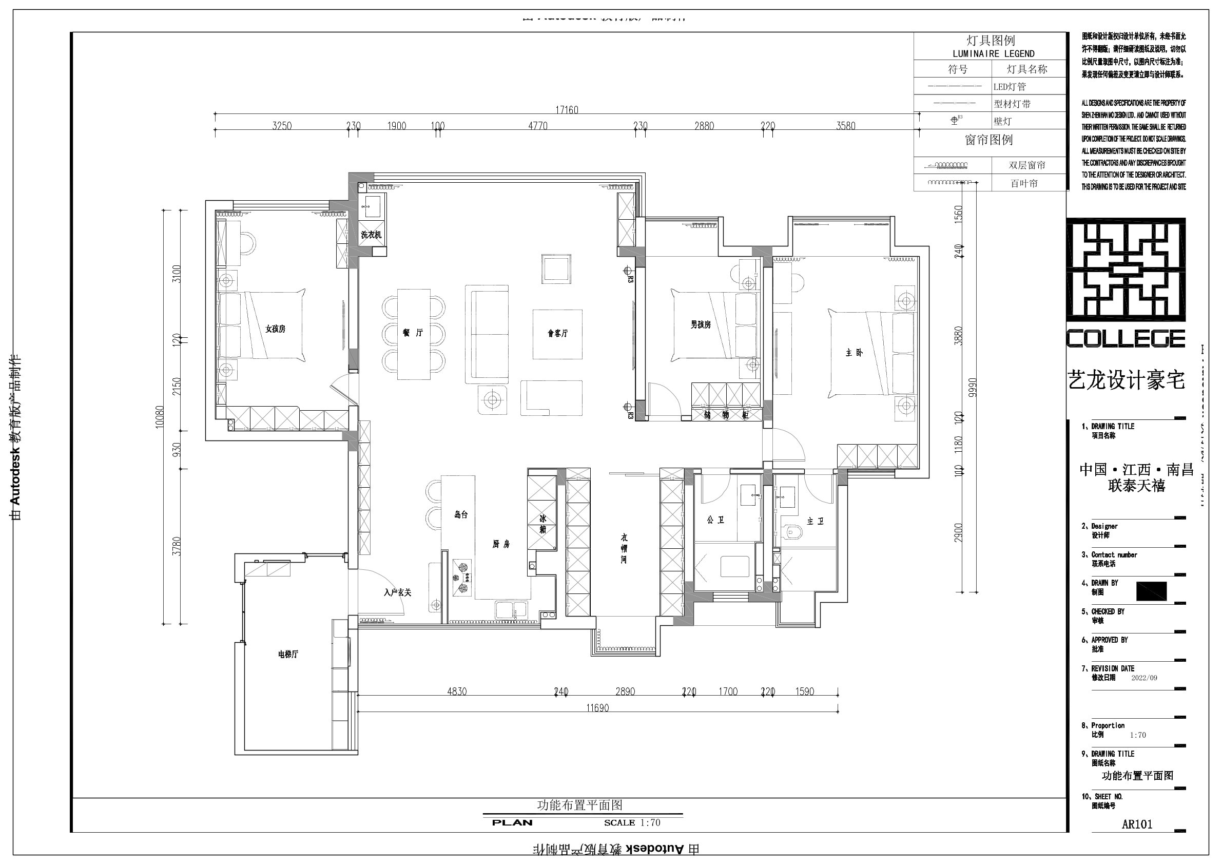
空间布局:干净整齐的客厅通过落地玻璃将光线最大化的引入室内,让整个空间的节奏动线无处躲藏,整齐且舒适的空间趣味脱颖而出,大面积的白色赋予居者干净、细腻的居住感,线条的来回蜿蜒增添了空间的层次感,极致彰显了简约而不简单的现代极简美学。原交付标准过于繁重奢华,屋主喜欢宽敞明亮,干净整洁的空间。设计师基于“满足一家四口”的需求,删繁就简,以“少即是多,大宅至简”的原则进行减法设计。
-
设计选材:全屋木质地板,搭配柔和的软装家居,温润自然。硬装上,细节处融入了小巧思,大面积的留白,现代极简的布局,赋予空间更多的想象。
-
用户体验:装修材料质量好,施工规范,服务态度好,性价比高,工人做事非常细心,对于屋主提出的疑问有问必答。
干净整齐的客厅通过落地玻璃将光线最大化的引入室内,让整个空间的节奏动线无处躲藏,整齐且舒适的空间趣味脱颖而出,大面积的白色赋予居者干净、细腻的居住感,线条的来回蜿蜒增添了空间的层次感,极致彰显了简约而不简单的现代极简美学。
儿童房代表着的是孩子的梦想与希望,精心的设计凸显出孩子的科幻梦想,在极简色调之下点缀蓝色的活跃,展现出青春之感。
全屋木质地板,搭配柔和的软装家居,温润自然。硬装上,细节处融入了小巧思,大面积的留白,现代极简的布局,赋予空间更多的想象。
原交付标准过于繁重奢华,屋主喜欢宽敞明亮,干净整洁的空间。设计师基于“满足一家四口”的需求,删繁就简,以“少即是多,大宅至简”的原则进行减法设计。
餐厨空间的静谧,与窗外城市的喧闹形成了鲜明对比。
日出看朝阳冉冉升起,日落赏江面碧波粼粼,夜晚静看繁星闪烁,没有压力,没有束缚,只有开阔的视野和悠悠江景,花开花落,云卷云舒~
主卧整洁宁静的配色,呈现至简至美的气质,细腻简约的饰面,床头背景墙简洁的米白色护墙板,搭配上飘窗的窗台软包,静时可以喝茶思考人生,闲时可以赏江之美景,让人浮生若梦。
儿童房代表着的是孩子的梦想与希望,精心的设计凸显出孩子的科幻梦想,在极简色调之下点缀蓝色的活跃,展现出青春之感。
卧室内采光极佳,自然光透过薄纱照射到室内,自然而又明亮的遍布整个空间,光与影交织让人迷恋,光透过窗投射在墙面、地面、桌面上, 在纯白的空间底色之上,整个空间都温柔了起来。
把这绝美的江景收藏于家外,把幸福纳藏在家里。滔滔江水衍生万千美景,屹立湘江江畔,私藏一方江水,描摹未来生活诗情画意。
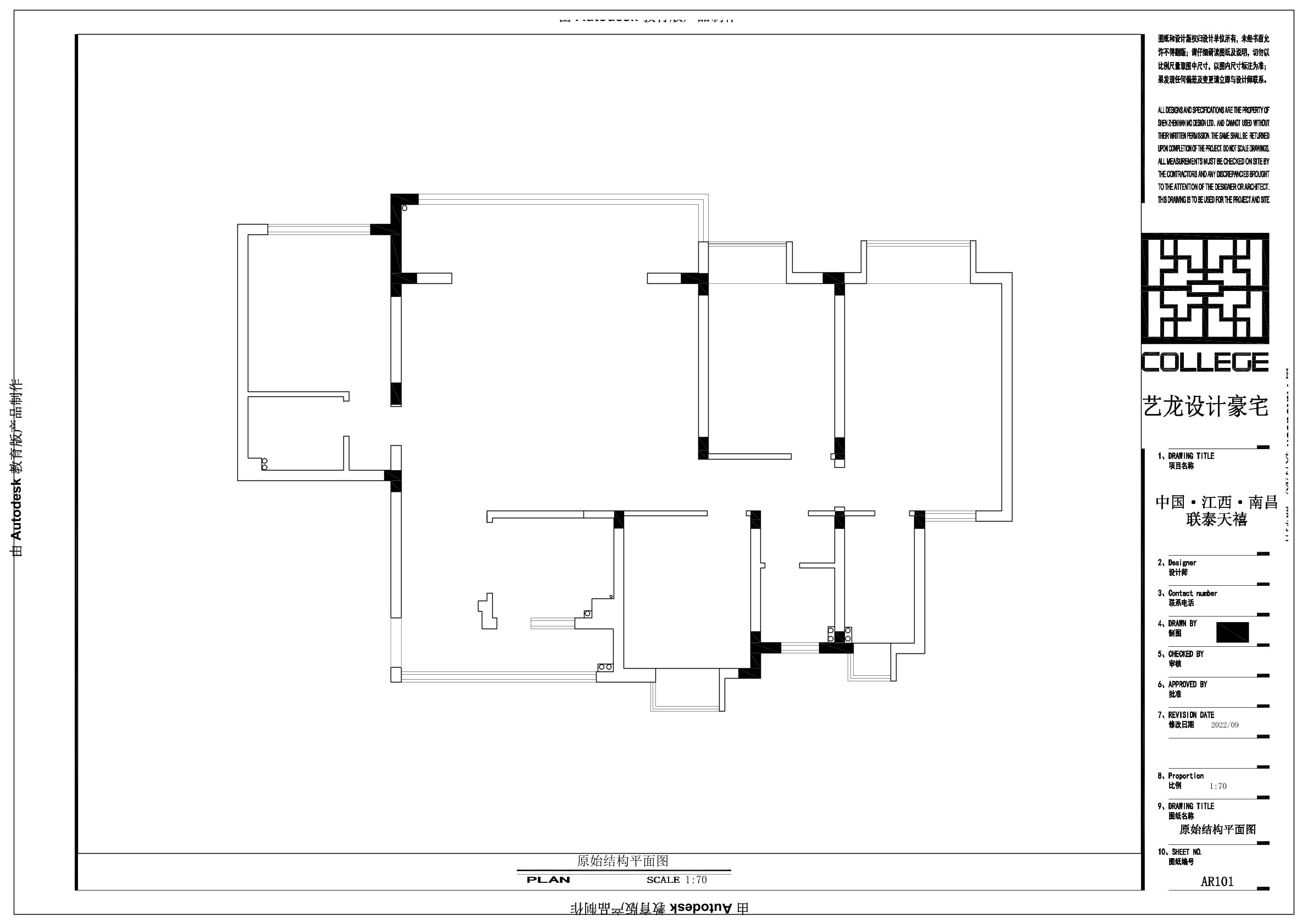
原始结构图
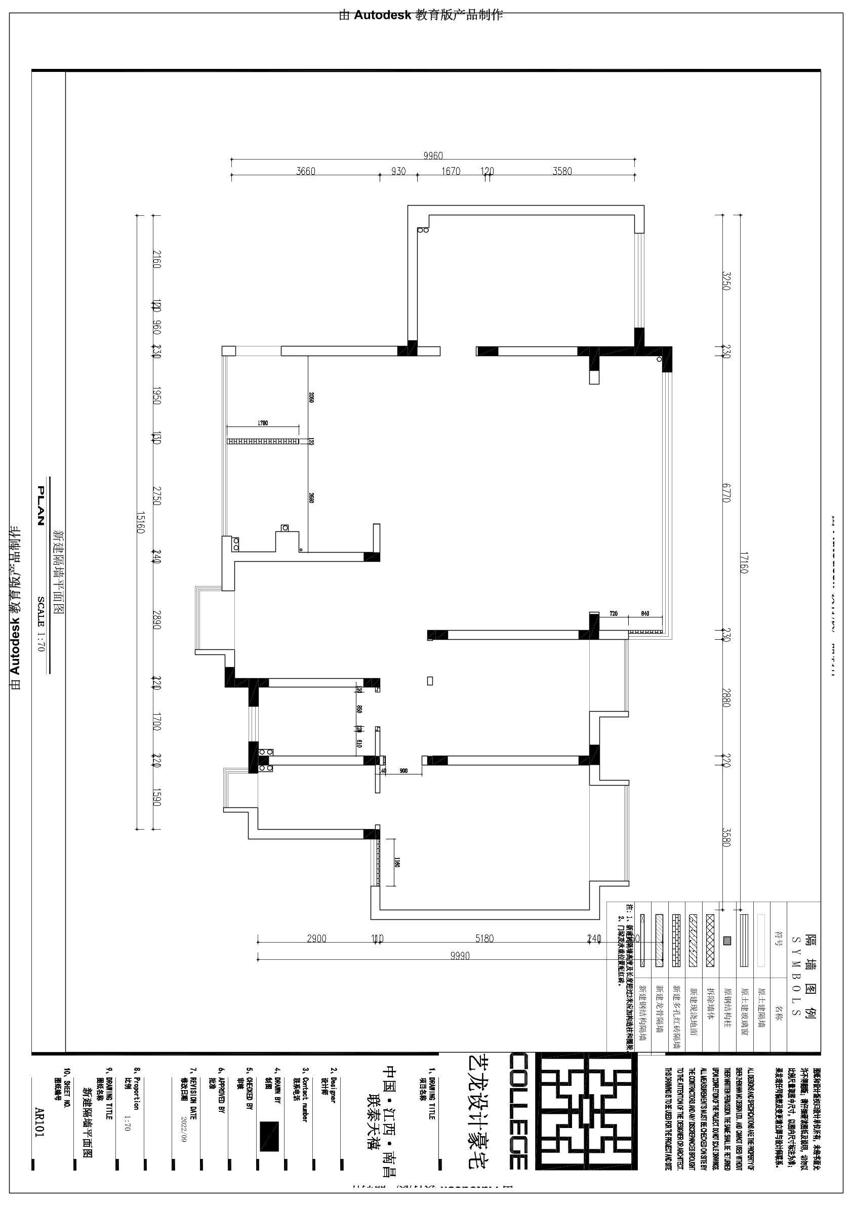
墙体拆除图
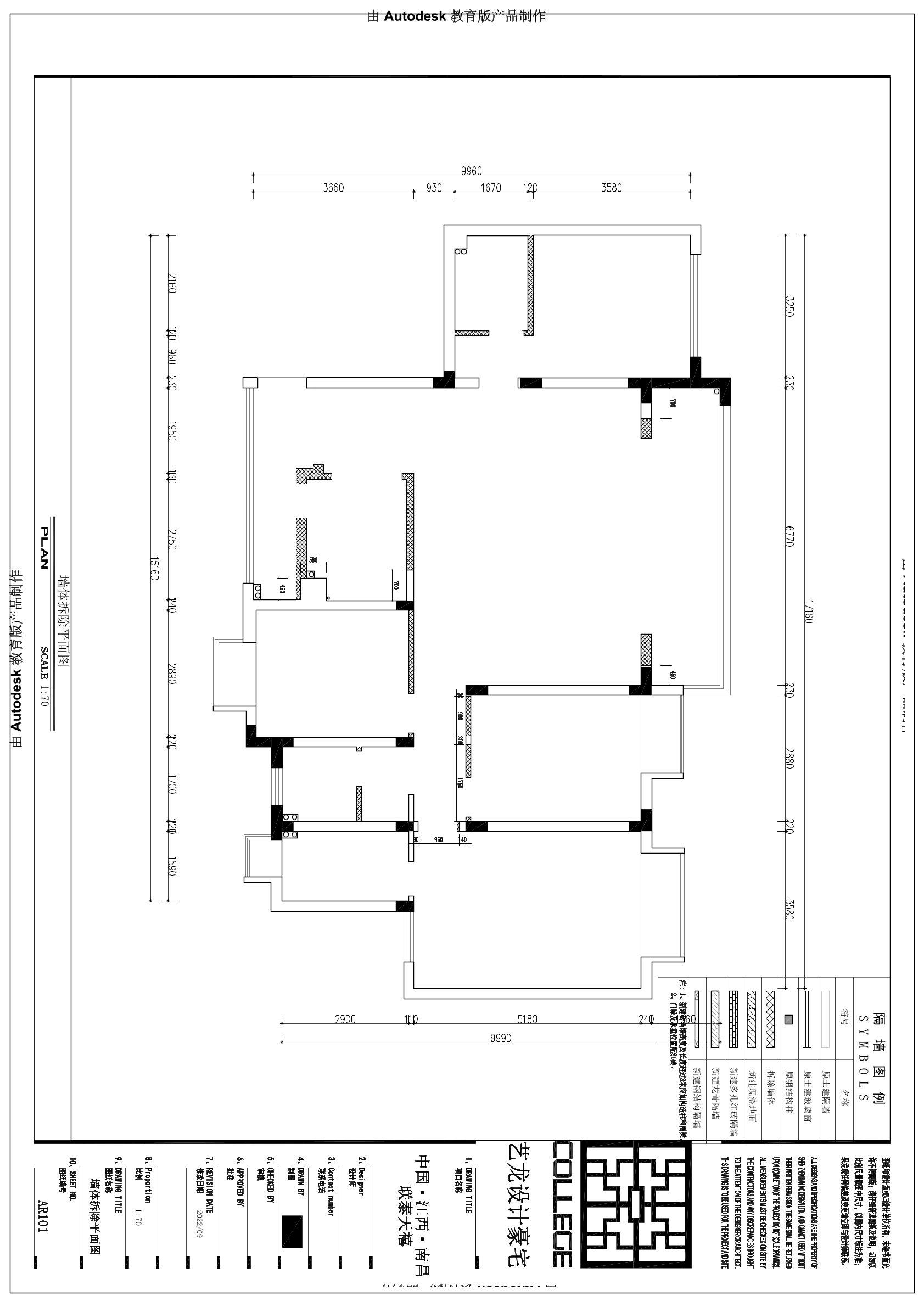
新建墙体图
本案房主采纳的是现代简约风格的同时也喜欢温暖舒适的氛围,于是用艺术化的手法,营造出“温馨、优雅、华丽”的调性,彰显出每个空间的逻辑关系,勾勒出家的特色。 在空间原木饰面中,一面白色的电视背景,以序列横平竖直加入黑色点缀,融汇成客厅的第一瞬观感。 干净整齐的客厅通过落地玻璃将光线最大化的引入室内,让整个空间的节奏动线无处躲藏,整齐且舒适的空间趣味脱颖而出,大面积的白色赋予居者干净、细腻的居住感,线条的来回蜿蜒增添了空间的层次感,极致彰显了简约而不简单的现代极简美学。把这绝美的江景收藏于家外,把幸福纳藏在家里。滔滔江水衍生万千美景,屹立湘江江畔,私藏一方江水,描摹未来生活诗情画意。 餐厨空间的静谧,与窗外城市的喧闹形成了鲜明对比。开放式的布局让家人的关系更亲密,采用多功能的收纳系统,目之所及清爽整洁。厨房与吧台绘就的清浅光影,成为餐厅的动态背景,餐椅的色调与客厅的沙发隔空呼应,衍生了轻盈舒适的节奏与韵律。南北通透的光线让整体区域敞亮自在,同样是黑白的主色萦绕用餐空间,值得注意的是,餐边柜的浅木色让空间更为欢快和轻盈,衬托了用餐氛围的愉快和轻松。大理石的餐桌台面硬朗结实,体现满盈的细节质感。既具有收纳功能,也加强了互动感,屋主可以边制作美食,边观察小朋友动向,也可以在此微办公。 儿童房代表着的是孩子的梦想与希望,精心的设计凸显出孩子的科幻梦想,在极简色调之下点缀蓝色的活跃,展现出青春之感。 主卧整洁宁静的配色,呈现至简至美的气质,细腻简约的饰面,床头背景墙简洁的米白色护墙板,搭配上飘窗的窗台软包,静时可以喝茶思考人生,闲时可以赏江之美景,让人浮生若梦。衣柜细腻的材质,柔和的灯光设计让空间富有节奏感。考虑到屋主对衣服储物的要求,设计师在小孩房的对面设计了一个公用超大衣帽间,这样不仅可以给主卧提供足够的储物空间,也可以给小孩房创造出一些玩具空间。 卧室内采光极佳,自然光透过薄纱照射到室内,自然而又明亮的遍布整个空间,光与影交织让人迷恋,光透过窗投射在墙面、地面、桌面上, 在纯白的空间底色之上,整个空间都温柔了起来。日出看朝阳冉冉升起,日落赏江面碧波粼粼,夜晚静看繁星闪烁,没有压力,没有束缚,只有开阔的视野和悠悠江景,花开花落,云卷云舒~ 原交付标准过于繁重奢华,屋主喜欢宽敞明亮,干净整洁的空间。设计师基于“满足一家四口”的需求,删繁就简,以“少即是多,大宅至简”的原则进行减法设计。 全屋木质地板,搭配柔和的软装家居,温润自然。硬装上,细节处融入了小巧思,大面积的留白,现代极简的布局,赋予空间更多的想象。
0
0

认证 · 让您身份增值