海成·长江天玺售房部
624
作品说明
- 项目类型:样板间/售楼处
- 项目地点:重庆市
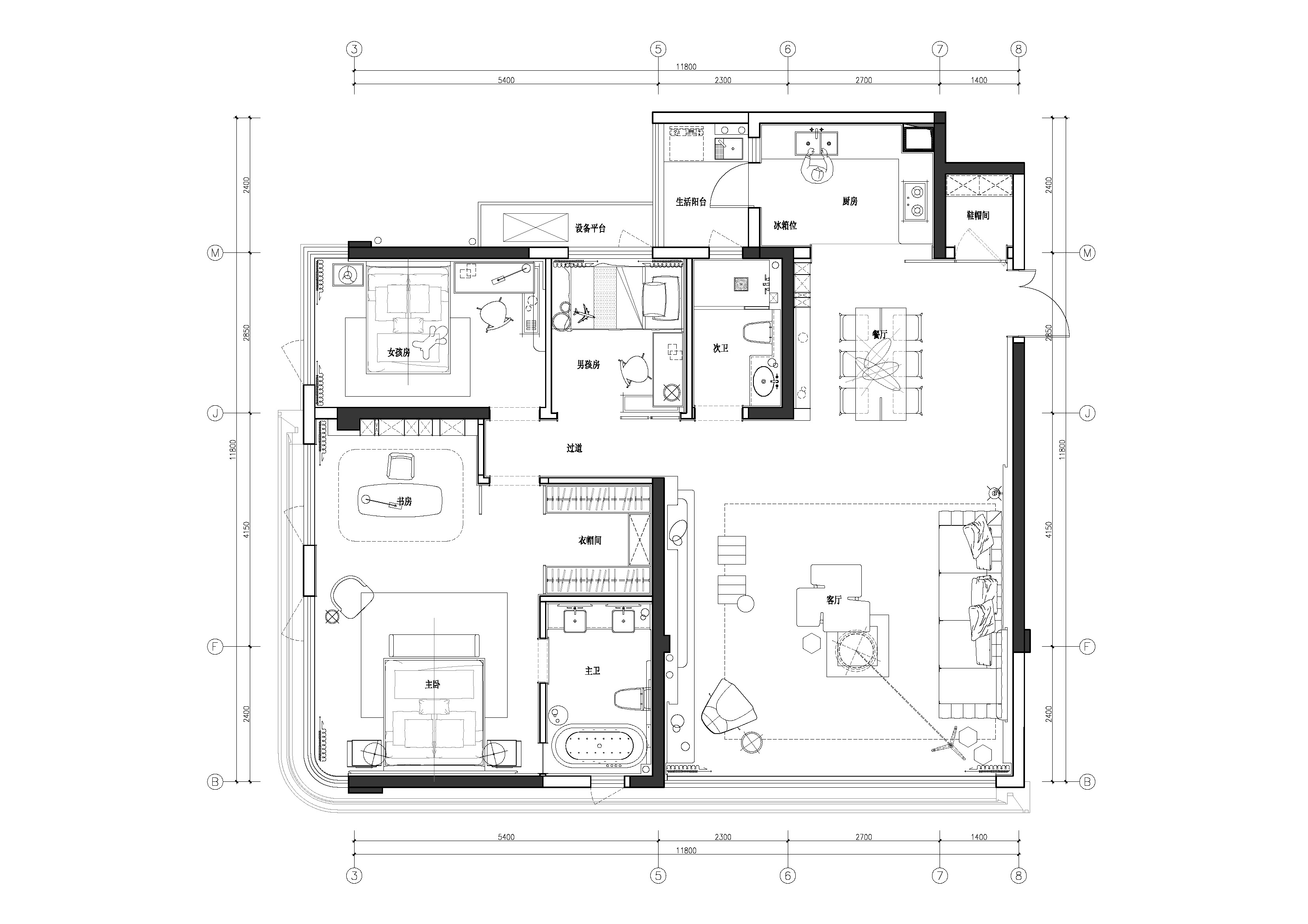
- 建筑面积:143㎡
- 项目造价:80万元
- 竣工时间:2022-08-11
-
项目定位:希望通过设计让所有的回忆与期待都在这个“不设边界”的家中,留存、展示、延伸……
-
空间意境:一眼望去,餐客厨打通形成LDKB一体化布局,这是一个风格化的极简之家,从地面、墙面到天花板色彩关系都搭配得优雅简洁,为了让整个空间看起来更为纯粹,浑然一体,内在又散发出温暖的质感,或许因为空间里的线条都柔和疏朗,还有温柔的织物、浪漫的灯火和明媚的阳光点缀。
-
空间布局:一眼望去,餐客厨打通形成LDKB一体化布局,这是一个风格化的极简之家,从地面、墙面到天花板色彩关系都搭配得优雅简洁,为了让整个空间看起来更为纯粹,浑然一体,内在又散发出温暖的质感,或许因为空间里的线条都柔和疏朗,还有温柔的织物、浪漫的灯火和明媚的阳光点缀。
-
设计选材:保加利亚灰石材、熊猫白石材、不锈钢、艺术玻璃、皮革硬包、木饰面
-
用户体验:太阳晒进来的时候,先照在地面上,再反射到墙面上,整个屋子像被覆上了一层浅黄色的滤镜,弥漫着一种浅浅的金色,就像在太阳下面把眼睛微微闭上的感觉,特别松弛。
1
0

认证 · 让您身份增值