米克斯马奇



作品说明
- 项目类型:别墅
- 项目地点:上海市
- 建筑面积:266.0000㎡
- 项目造价:180.0000万元
- 参与设计师:陈子欣
- 竣工时间:2023-06-13
- 设计机构:上海映象
-
项目定位:自然古朴与复古优雅,碰撞融合打造「博物馆」般的家
-
空间意境:集合一切美好的混搭风
蕴藏岁月经典的复古感
-
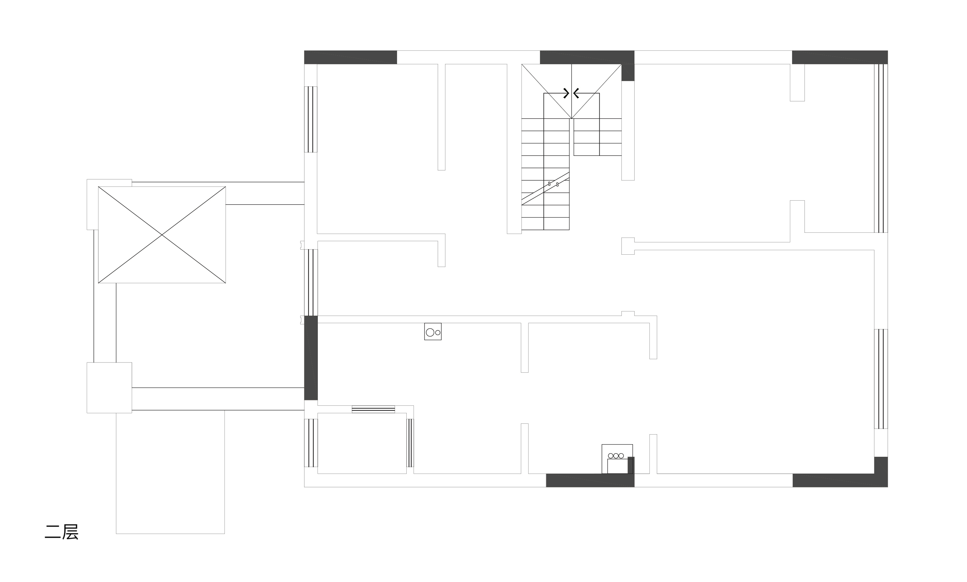
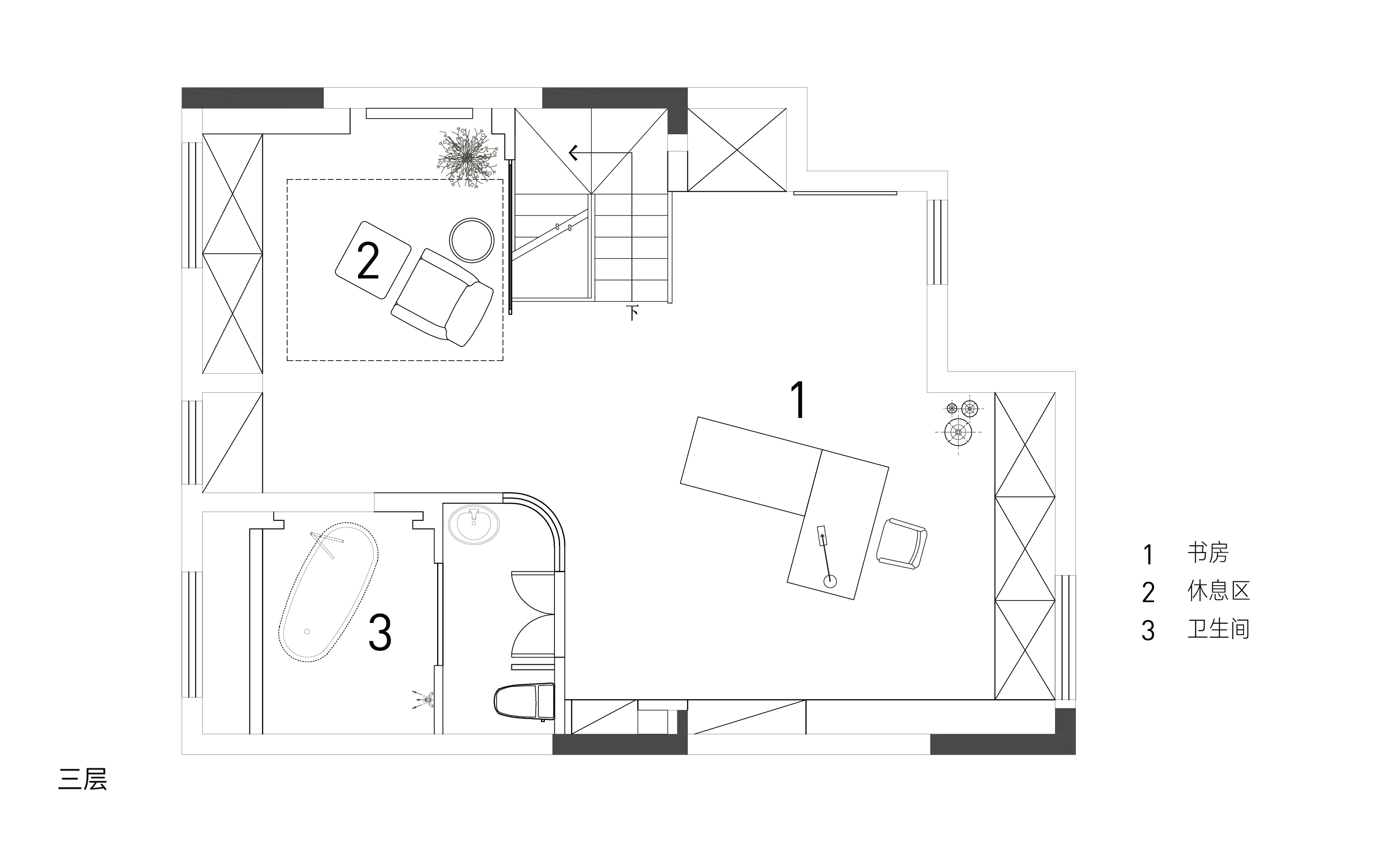
空间布局:设计亮点:
1.将入户门区域打造独立玄关门厅空间,让归家更有仪式感;
2.利用沙发划分客餐厅空间,充分利用横厅结构打大气空间感;
3.借助二楼过道空间打造洗衣家政区域,用折叠门保留过道视觉规整;
4.整合阁楼空间,保留卫生间和休闲区域,把更多空间让给工作阅读区,让创意不设限。
-
设计选材:从灰色系复古感开始延申
将更多设计元素在餐厅区域呈现
绿植在餐桌的「树影」婆娑
复古造型壁灯的金属光泽
都在彰显生活细节的年代感
-
用户体验:出现于上世纪的中古风
在极简当道奶油色盛行的今天
从异类逐渐为更多人接受
中古风的「并置」特征
展现了自然传统与现代工业融合
特性迥异的色彩材质相碰撞
富有复古美感的器物穿插其中
复古的趣味与古朴怀旧的气息
在混搭空间中,逐渐蔓延开来

