江苏九里湖商务办公楼
5
作品说明
- 项目类型:办公
- 项目地点:徐州市
- 建筑面积:1020㎡
- 项目造价:400万元
- 竣工时间:2022-03-12
- 设计机构:江苏平衡艺术设计有限公司
-
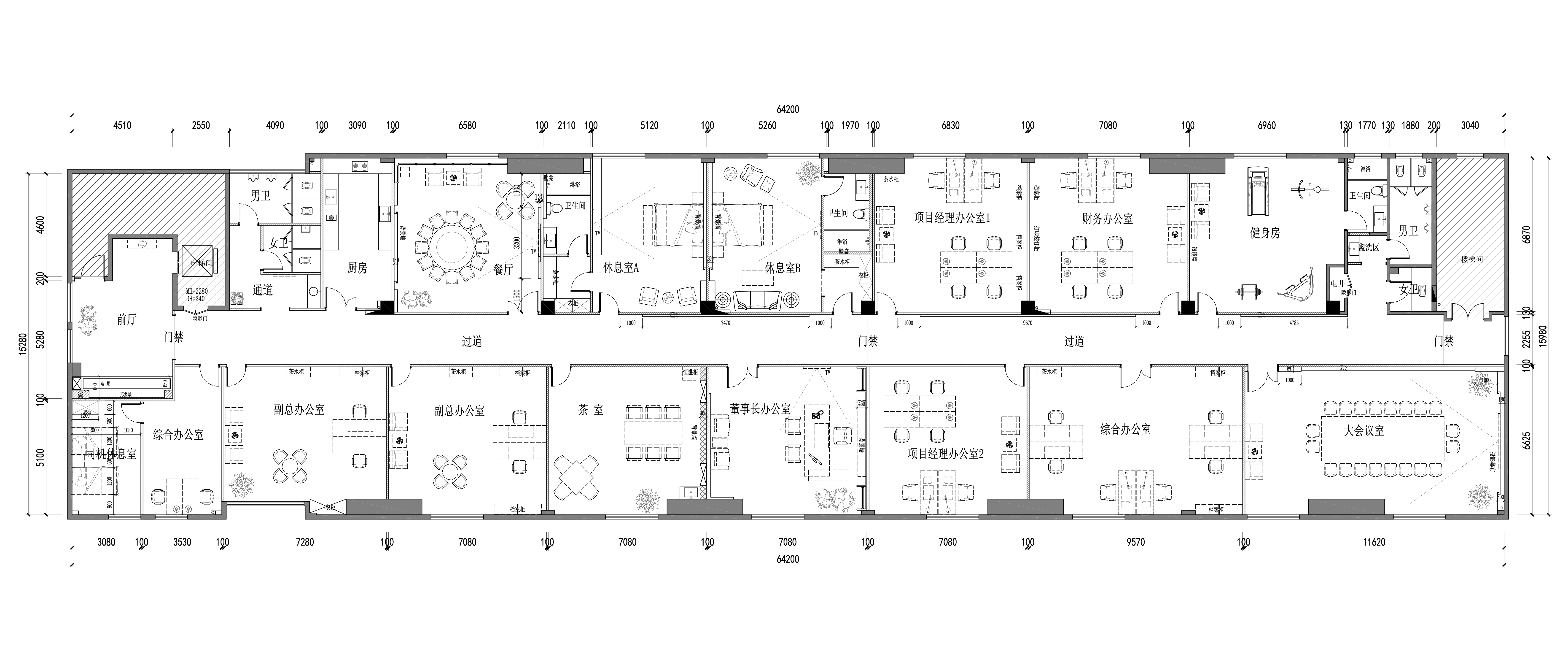
项目定位:本案毗邻全国最大的城市内湿地公园——九里湖国家湿地公园,环境优美。
在此处设立高端商务办公空间,合理的布局,流畅的动线,雅致的艺术氛围,自在的空间气度,借用材质分割,将空间浓淡调整、场域的气息与平稳格局一气呵成,满足办公、会议、接待、洽谈的多重需求。 -
空间意境:业主是一位成功男士,热爱高雅且有品味的生活方式。设计选择了新中式风格,融合现代情怀,让每一位来者都能有诗意的体验。
-
空间布局:整个空间布局对称均衡,端正稳健,注重细节,富于变化。每一处陈设都有艺术的渗透,在配饰上精致端庄,尊重品质。
-
设计选材:木色与布纹搭配的走廊将每个空间都划分成不同功能空间,集办公,会客,洽谈,休闲,宴请于一体的多场景空间。总裁办公室的硬装设计延续公区的简洁与硬朗,实现了整体元素的连贯性。硬朗的原木风提升了整个房间的气势。传统的东方艺术和现代材料的硬朗,居于其中,感受温文儒雅的气质。
办公室空间设计以块面的设计手法,让空间干净整洁,结合现代的办公家具,提升了整体空间的格调。
茶室以“群贤毕至”为理念,提供私人的专属休闲空间,或品茶看书、或畅聊人生、或商务办公,工作之余的短暂放松。
餐厅空间整体设计均显露着典雅的氛围,时尚现代的家具与中式金属屏风相融合,营造沉稳高雅的就餐氛围。
休息室在细密有致的排列中缀以灯带,使光影的明暗与线条的层序性形成对比。表达个性化的室内空间,突显场所不拘一格的优雅。 -
用户体验:立足于新中式风格,打破传统,将东方美学传承到生活和工作的每一细微之处,带来不一样的办公空间体验。
0
0

认证 · 让您身份增值