江苏徐州·羊千岁酒店
6
作品说明
- 项目类型:餐饮
- 项目地点:徐州市
- 建筑面积:2000㎡
- 项目造价:1260万元
- 竣工时间:2022-05-05
- 设计机构:江苏平衡艺术设计有限公司
-
项目定位:羊千岁新中式主题餐厅——以水为媒,以绿为脉,和谐共融.
-
空间意境:沛县是滨湖之城,以湖为始,傍水而生,“微山湖畔彩云低,薄雾蒙蒙草木齐”。水流成源,天下太平。
设计对当地地域文化、项目理念与人文精神的梳理,挖掘徐州地域内对水与自然共生的理念。借水之意向探索及表达物我、城市空间与人的关系,从视听触嗅多维度打造契合除了满足餐饮空间基础功能外,复合满足各人群需求服务,打卡式、具有真实生活感、功能体验感的新型用餐空间。 -
空间布局:整体空间动线流畅,可视化厨房,增加互动性,包间分布突出重要空间,廊道绿化,增加延伸感和呼吸之感,水墨晕染的石材楼梯,精致矗立。
-
设计选材:流水石、假山、发光夹丝玻璃、金属吊挂、木饰面、石材,现代与仿古,刚劲与柔和碰撞,流水的灯光使静态的材料活了起来,充满生机展示着人与自然的平衡之美,表达出文明生生不息的孕育,形成人与自然和谐共生的理念。
-
用户体验:以水入境,造一涌泉,垒一座山,筑一间舍,似水流年,未入室内,潺潺流水已入侧耳,还原东方审美下的自然美景。
一层大堂前台1
一层大堂前台2
一层大堂水景1
一层大堂水景2
一层大堂水景3
一层大堂雅座+可视厨房
一层大堂雅座1
一层大堂雅座2
一层大堂雅座3
一层大堂休息区
一层包间1-顶面1
一层包间1-顶面2
一层包间1-1
一层包间1-2
一层包间2-1
一层包间2-2
一层包间2-3
一层包间2-3
一层大堂水景+楼梯
楼梯
二层廊道1
二层廊道2
二层廊道2
二层廊道3
二层包间15-1
二层包间15-2
二层包间15-3
二层包间15-4
二层包间15-5
二层包间15-6
二层包间13-1
二层包间13-2
二层包间13-3
二层包间17
二层包间16
卫生间
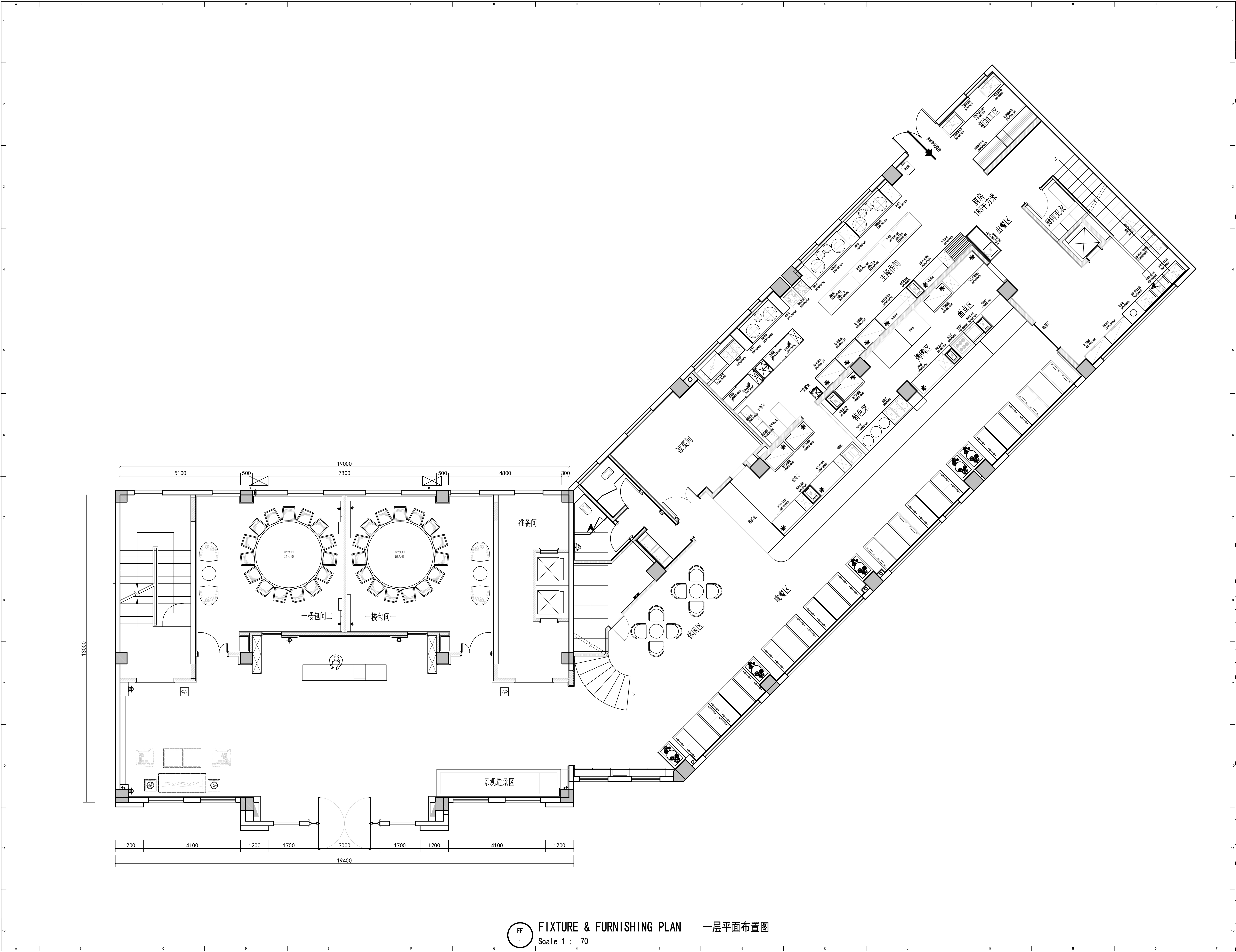
平面布置图1
平面布置图2
0
0

认证 · 让您身份增值