奇妙的法式私宅


作品说明
- 项目类型:住宅公寓
- 项目地点:广州市
- 建筑面积:250.0000㎡
- 项目造价:200.0000万元
- 主案设计师: 曹劲麟
- 参与设计师:曹劲麟、梁镇江
- 竣工时间:2023-02-14
- 设计机构:广州市正在室内装饰有限公司
-
项目定位:优雅从无缺席,浪漫永不落幕。业主是一对海归新婚夫妻,他们对生活和爱情也有着他们独特的追求。
我们希望这个空间更像一个载体,静悄悄地见证故事的发生与延续,恋爱,庆生,婚礼,小朋友出生,每一帧重要的时刻,每一次甜蜜的触动,都能在这里留下终身美好的记忆。 -
空间意境:考虑到入住者为年轻夫妻,在这即将开启新的生活篇章,空间以白色作为自然情绪力量的表达,传递出它从中蕴含的多样性、无限性和包容性。
即使再细碎的生活片段,也从不怠慢。怀古的浪漫情怀与现代审美的需求相结合,让时间的维度,在空间中一一串联,却又各抒其怀。 -
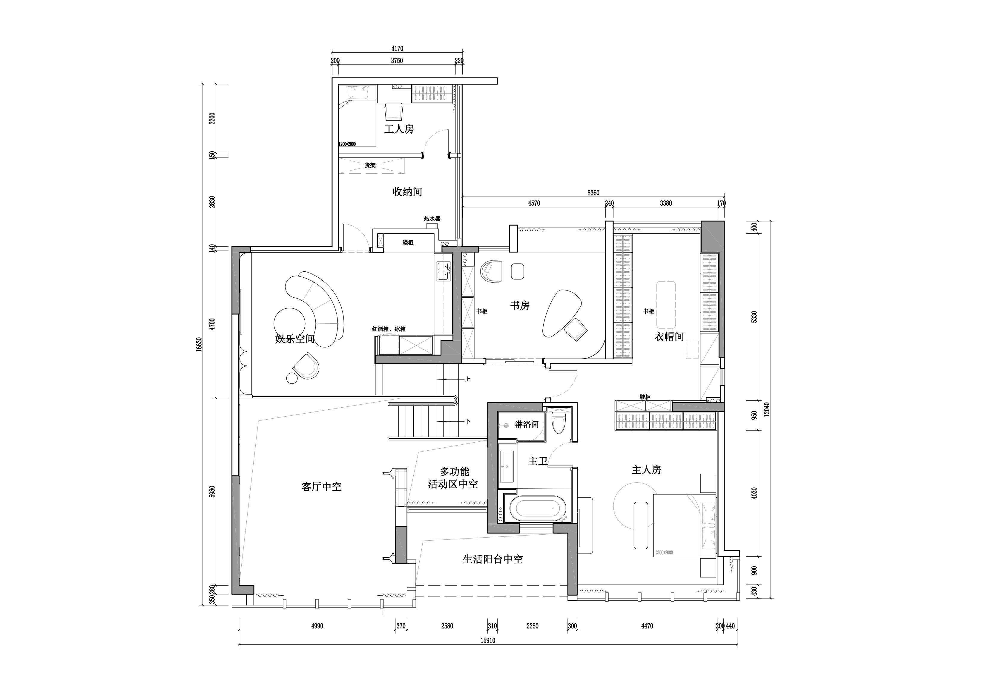
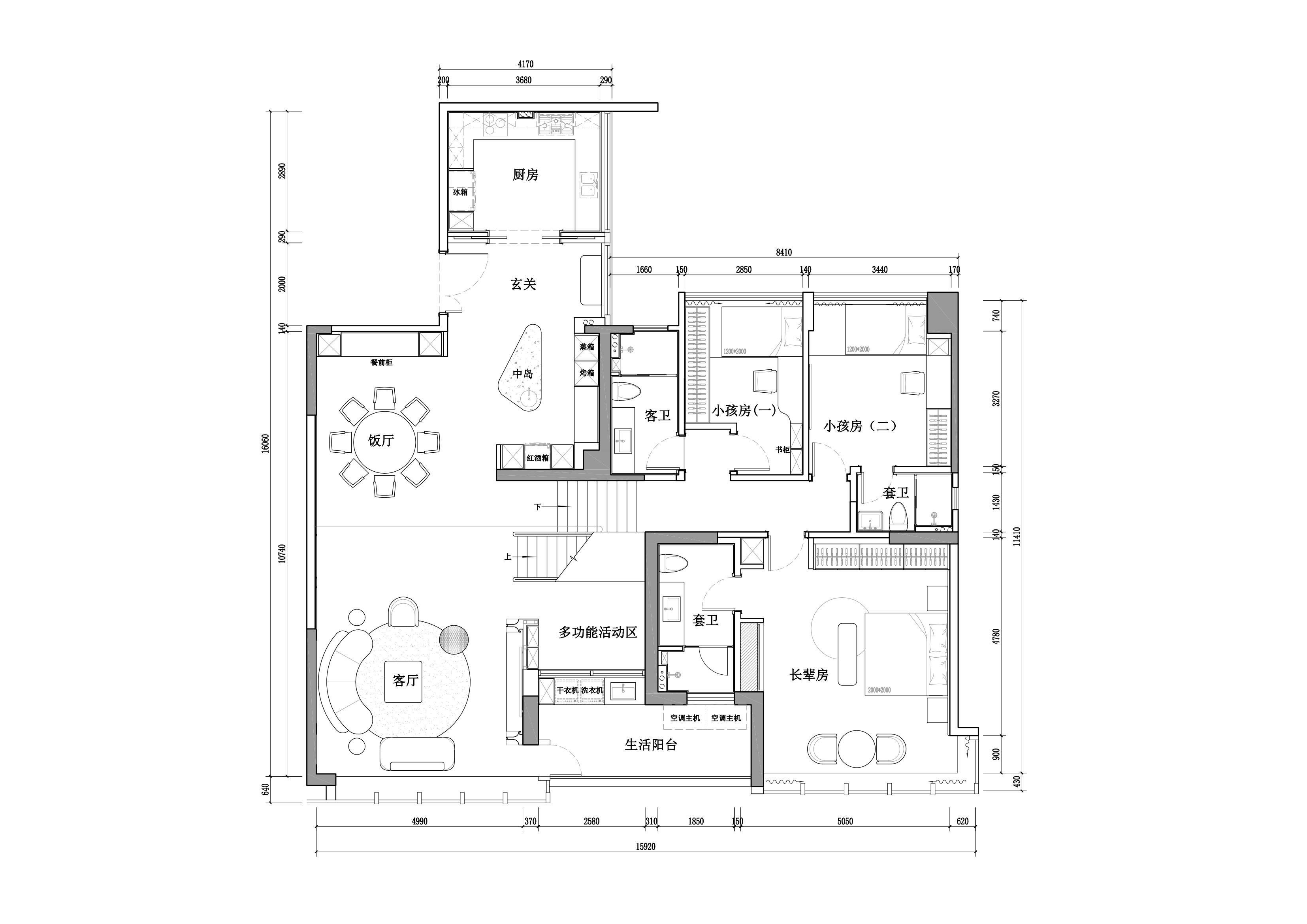
空间布局:客厅、餐厅、吧台及中西厨,各场域之间相融且彼此独立。餐厅,是一家人欢声笑语的主场,也兼顾亲友欢聚、社交宴请等多种功能,于人间烟火处中唤起人与人之间的情感共鸣。
餐桌与厨吧台的组合设计,让放松与惬意在此处无声演绎,打开家门,奔波一天的身心得以在回家的那一刻,开始收获极致的放松。
圆桌与紧邻西厨中岛,融合东西方生活方式。在这里,可以随时切换进日咖夜酒的休闲模式。
开场明亮的厨房空间,在准备美食时也能与家人或亲友进行交流互动。内部模块化的储物空间组合,为烹饪美食提供了整洁清爽的操作空间。 -
设计选材:空间的流动,一方面得益于布局上的贯通,一方面仰仗于大面积采光的多向呼应。在核心的功能组件之外,大量的留白,反向聚焦了家庭的动线焦点,亦让家的相处有了更多极具呼吸的通透,功能与精神皆可自由生长。
不经意流露优雅自然,从细节中体现精致。我们利用素色和自然光去突显空间感,由质感与颜色中着手,显露家居主人随性中自然流露的高雅。 -
用户体验:看到业主验收时脸上幸福的笑容,我知道我们达标了。

