麻省后院Mini威士忌鸡尾酒吧


- 项目类型:餐饮
- 项目地点:成都市
- 建筑面积:310㎡
- 项目造价:50万元
- 参与设计师:何雨晴
- 竣工时间:2023-08-22
- 设计机构:东己壤设计研究室
【项目背景】:
蜀地,是千年来的“噫嘘唏,危乎高哉”,是诗句里繁华的锦官城,是赵雷《成都》路尽头的小酒馆,这座城市兼具江湖锋利与诗意寂寥。
项目坐落于成都市新都区毗河绿道泥巴沱森林公园,这里茂林修竹、美池古树、清流激湍,映带左右,远眺雾中雪山。
两年前,这里开了一家名叫麻省后院的三层综合体,这是一处2380㎡、主营涮羊肉、咖啡与棋牌的生活中心。客来客往,这里始终缺少一处沉浸饮酒空间。两年以后,麻省后院决定扩增一处酒吧,新址选择了原有综合体旁,带有院子的独栋建筑。我们被这里的松弛与诗意所打动,于是决心延续这里的意境,能够强调麻省后院的秩序,同时衔接新旧两处的情感。
【设计理念】:
在进行这处酒吧构思的时候,我们希望这里不仅能为客人提供珍馐美酒,同时也能够给予灵魂片刻的休憩。原本的房屋结构为简单方正的玻璃盒子,呆板无趣,与周围环境的边界十分生硬。我们并没有将重点放在“酒吧”“餐饮空间”这种符号与类型学的字眼中,而是围绕“之后”的或独处或社交的线索下多种情境的展开。因此我们从空间的氛围感出发,设计出“曾经”“当下”“未来”的生活气息与气质变化,空间在叙事中多变复杂,想象与现实在此处结合。
【立面改造】:
建筑立面的灵感来自于建筑师伊东丰雄的理念,他主张每个场所都有它的时间感与空间感,场域自由生长,功能在迭代中和人产生关系以及特定的意义,随性反馈着建筑与自然生态、社会、人群的连接。
每一处的界面都是我们精心设计的结果,始于建筑,终于环境,建筑的边界恰好停在了环境让它停下的地方。
通过对自然光影、建筑表皮的重新规划,最大程度的强调建筑与环境的共生延续。侧面的檐廊,在太阳的光照下,婆娑树影与建筑之间形成了跳跃的对话。
与三层综合体相对的檐廊外部设有步道,保证了公园空间的连续,也促进了新旧建筑之间互相凝视,情绪彼此渲染。外搭柱廊,将两个长方形体块灵活搭接起来,对三层综合体的人群进行视觉引导。
变化的体块,仿佛是一个趣味性的艺术展览之旅,建筑在各个方向上,不趋同不附和不拒绝。
主入口正对着毗河绿道公园,河水平静如初,犹如深绿色的丝带柔软的缠绕,杨柳低垂的树枝轻柔的摇晃。加建檐廊仿佛一个框景,将荣盛苍翠的公园作为整个建筑的背景。几何的体块与光影互相塑造,拿捏自如的体块下,光线进行着神奇、恰当而又绝妙的表演。春秋的夜晚,吸引着人们在此驻足、停留。
贯穿整个空间的落地窗外,塑造了独属于麻省后院的庭院,遮挡视线的同时,也为两个包间创造了私人庭院氛围。
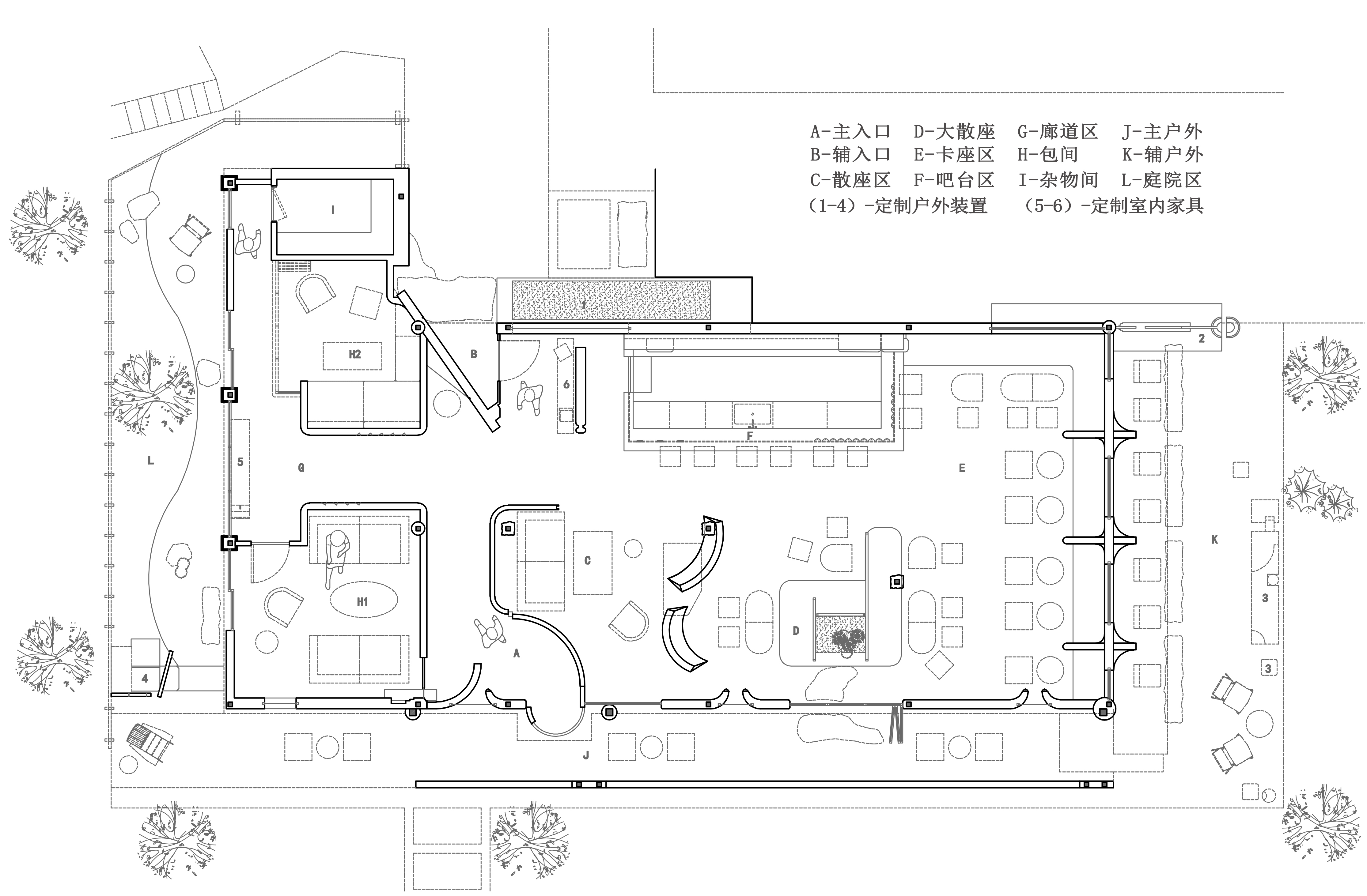
【空间改造】:
在进行功能划分的时候,我们探索了空间的很多可能,最终形成以吧台为中心,其他区域互相穿插的空间形态,而原始的结构在空间之中被消隐。
入口的灰泥墙面与青竹,是强烈的水墨丹青,也是场域的起点,看似张扬,但在材质的选用、光线的引入上,都是内敛、寂寥的。
当人群一进入空间,立刻就能看到空间的中心--吧台,但当人们在这里驻足,凝视整个场所,这里又不仅仅是一间酒吧。
吧台自然地延续到墙面与屋顶,生长出陈列各色美酒的酒架,与肌理圆润质朴的木梁。
弧形吊顶的灵感来自中国传统建筑中的构件--青瓦,无限放大后获得深邃含蓄的形态。吊顶在房梁两侧连续,组成了老旧民居的曲顶飞檐,古朴而又沉寂。
自由宛如波浪般的红色灯条,与吧台立面蓝色的孔灯,是赛博朋克机械感与侘寂诗意碰撞出的独特篇章。
落客区我们打破了传统的酒吧大空间布局,通过不同程度的开放,形成了多变的空间体验,增加空间的趣味性。
木柱、青松、枯枝、锈迹斑斑的铁罐,安静的器物与光影交叠,是杯酒少年复杂情绪的追问,是娓娓道来平静的情愫,在不经意间回归深情。