一抹蓝



作品说明
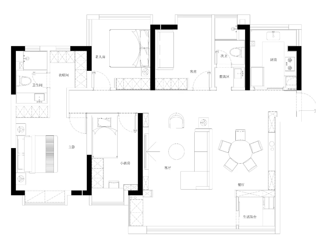
- 项目类型:住宅公寓
- 项目地点:德阳市
- 建筑面积:153.0000㎡
- 项目造价:30.0000万元
- 参与设计师:黄晴
- 竣工时间:2022-11-15
- 设计机构:德阳市名屋室内设计建筑有限公司
-
项目定位:软硬装一体完成,落第性强
-
空间意境:黑白灰基调增添一抹蓝,在理性中孕育温情
-
空间布局:为生活增添仪式感
-
设计选材:简约设计
-
用户体验:客户一家很满意,给孩子一个自律又温情的成长环境

