闹世景致
281
作品说明
- 项目类型:酒店
- 项目地点:桂林市
- 建筑面积:188.0000㎡
- 项目造价:220.0000万元
- 主案设计师: 王秋兰
- 竣工时间:2022-01-01
- 设计机构:广东星艺装饰集团桂林分公司
-
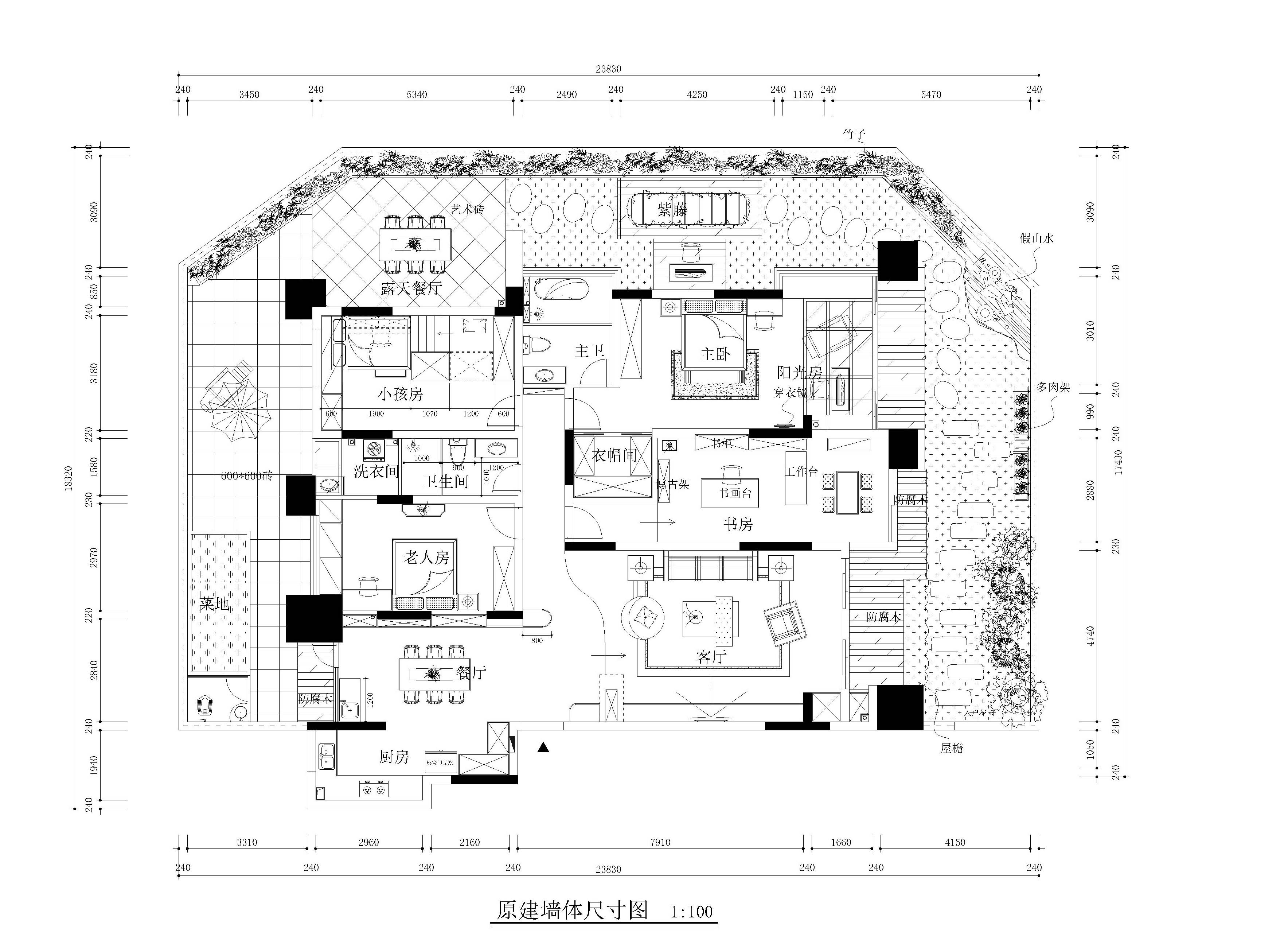
项目定位:3面庭院的规划做成了小而精的苏州园林式风格;让业主在这里养老幸福的生活;
-
空间意境:去繁就简;
-
空间布局:利用空间的高度,做了些曲线的优化分配客餐厅,也在小孩房利用空间的高度做成了多变化的灵动变化;
-
设计选材:瓷砖,木地板,进口涂料;
-
用户体验:客户 很满意现在的空间生活,庭院是她倾心打造的地方,客厅是她们喜欢蜗居的中心,书房是他们的生活点滴;
0
0

认证 · 让您身份增值