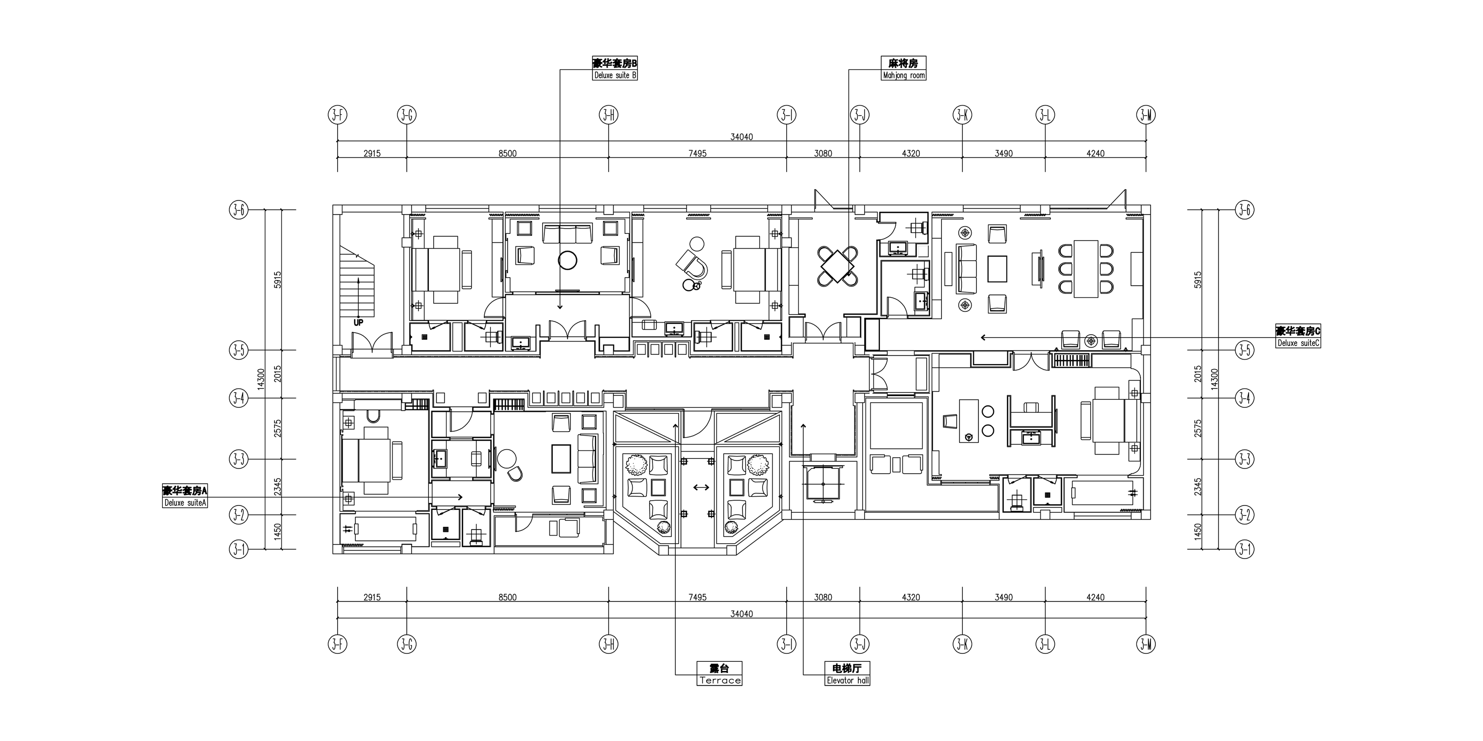
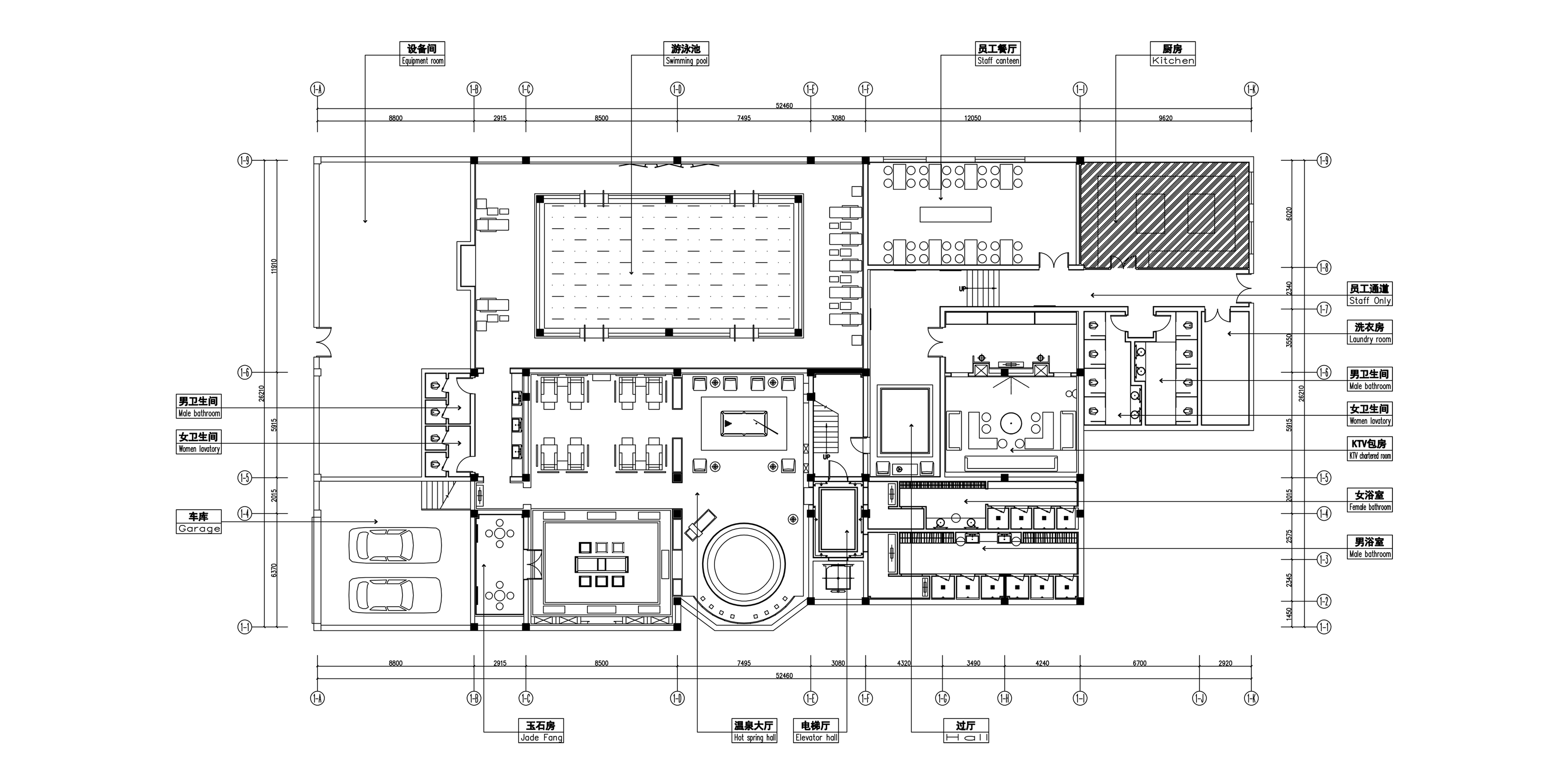
集团接待中心



作品说明
- 项目类型:休闲娱乐
- 项目地点:大庆市
- 建筑面积:3000.0000㎡
- 项目造价:2000.0000万元
- 主案设计师: 张磊
- 竣工时间:2022-11-22
- 设计机构:张磊设计工作室
-
项目定位:项目策划在原有建筑的基础上,打破空间的束缚,定位为世外桃源般的心灵居所。
-
空间意境:项目打造中式民国风设计,不同于传统中式在审美上的疲劳及新中式在稳重感上的缺失,意在突出奢华感的同时保留一分低调。
-
空间布局:空间上要协调好楼层之间的互动关系及打破空间的高度限定,是人在空间中完成不重复有不复杂的游历过程。
-
设计选材:大面积采用铝板材料,在耐久性及防潮防火等多方面都有及其良好的表现。
泳池及温泉都采用当地特有的天然温泉水,木基材则选取了竹炭木基层纤维板,造价降低的同时又达到了环保低碳。 -
用户体验:用户会经常举行高规格级别接待,对整体空间效果非常满意。来访宾朋也赞不绝口。

