NASA2077



作品说明
- 项目类型:休闲娱乐
- 项目地点:银川市
- 建筑面积:510.0000㎡
- 项目造价:96.0000万元
- 主案设计师: 唐凡琦
- 竣工时间:2021-10-10
- 设计机构:宁夏熹择装饰设计工程有限公司
-
项目定位:1977 年,NASA 发射旅行者 1 号探测器到太空,希望探索人类以外的文明。探测器携带了一张名为“The Sounds of Earth”(地球之声)的镀金唱片。2013 年 9 月 12 日,这张唱片随着旅行者 1 号离开了太阳系。在接下来的 10 亿年里,它将驶向永恒的未知。
“未知”,是人类生活中最美妙的事。跟“已知”相比,未知从来不是安全的,就像在吊桥上走猫步,你必须投入全部的感官。不意外,在 NASA 的当代神话故事里,人类会选择音乐做“未知”的使者。音乐是感官中的感官。
此店为NASA 2077银川现代城店,走入电动门,入眼便是如同进入了赛博朋克2077的角色场景。赛博朋克(英文:Cyberpunk)又称作“赛伯朋克”,是“控制论、神经机械学”与“朋克”的结合词。该背景大多描绘在未来,建立于“低端生活与高等科技结合”的基础上,拥有先进科学技术,再以一定程度崩坏的社会结构做对比。
本案意图为年轻人创造一个城市夜生活新体验中心 -
空间意境:拥有五花八门的视觉冲击效果,比如街头的霓虹灯、街排标志性广告以及高楼建筑等,通常搭配色彩是以黑、紫、绿、蓝、红为主,但霓虹灯等只是其中标志,并不是所有霓虹灯相关的都称为赛博朋克。
-
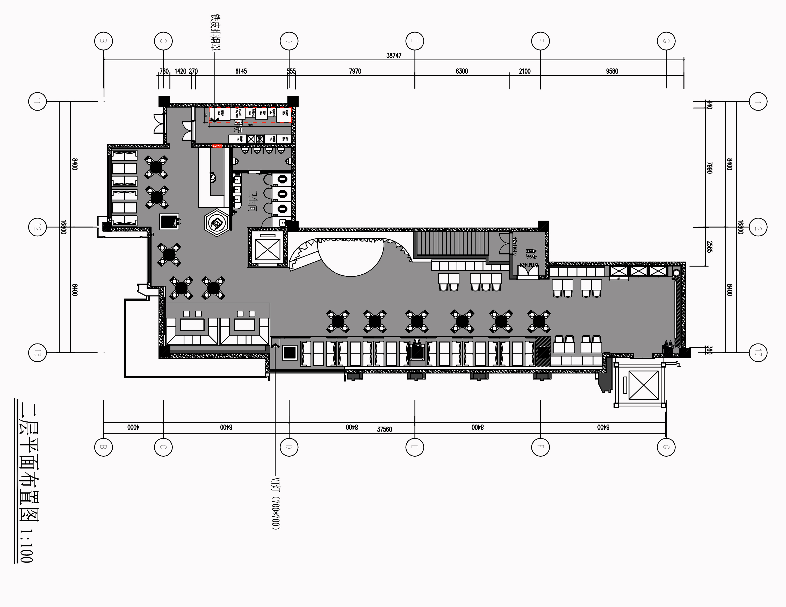
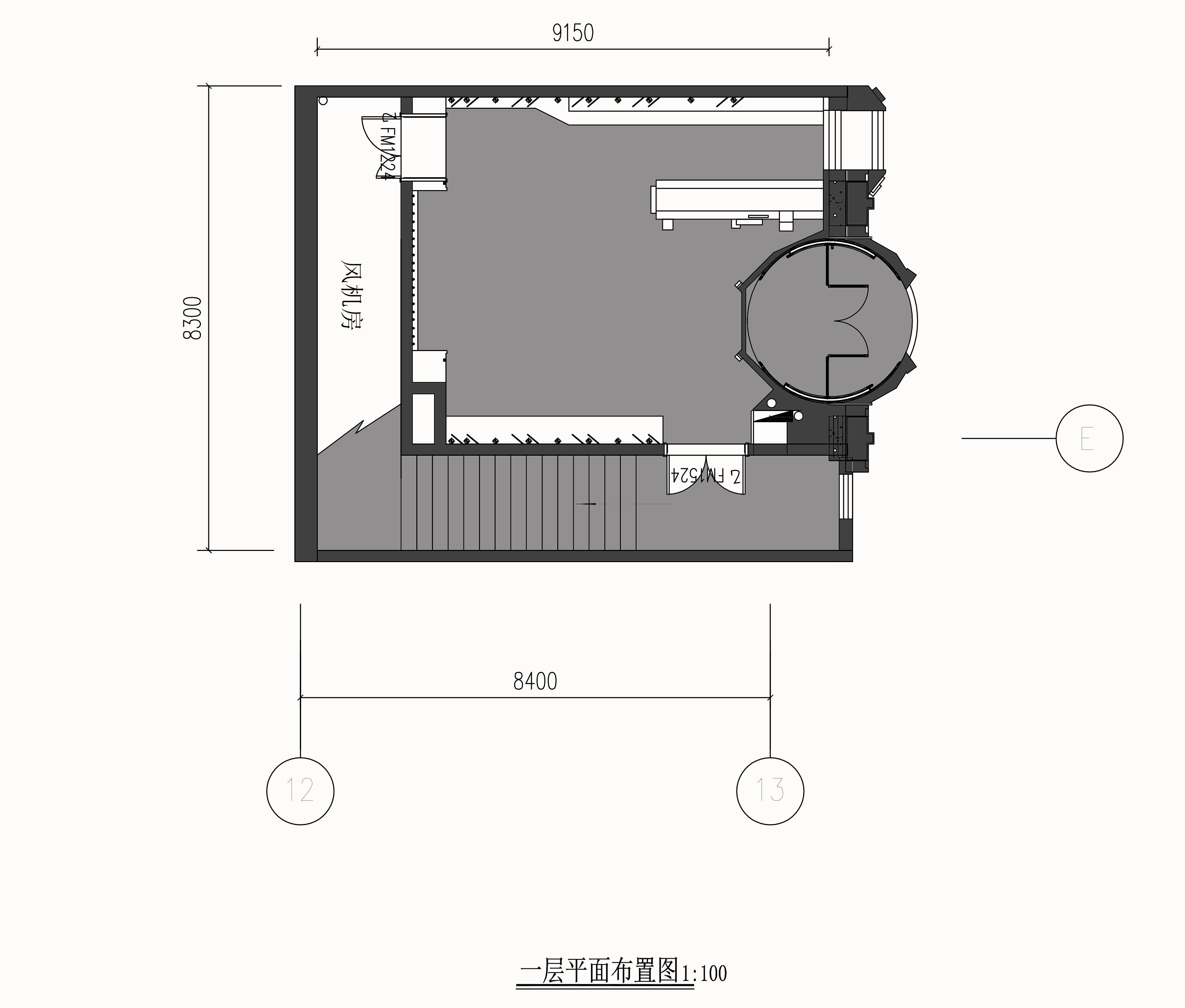
空间布局:由于建筑结构给到了一个一层步行楼梯上二层结构,入口做了一个很大的过渡空间,由小门进入开阔的前厅充满期待,再由消防门上至步行梯。水纹灯点亮甬道般的楼梯,没有多余修饰裸露原本钢板的纹路质感。楼梯的尽头又是一个充满光阴的活度前室再进入热闹如街区般的大厅。
-
设计选材:仿佛置身于未来世界体验者们分别将通过声光电,体验共有五个属性,分别是力量、反应、技术、智能、镇定这五个方面的属性体验感观。
-
用户体验:一个城市夜生活的新体验中心

