昨夜星辰昨夜风
757
作品说明
- 项目类型:别墅
- 项目地点:湖州市
- 建筑面积:200.0000㎡
- 项目造价:150.0000万元
- 主案设计师: 胡剑伟
- 竣工时间:2022-04-18
- 设计机构:湖州庭美装饰有限公司
-
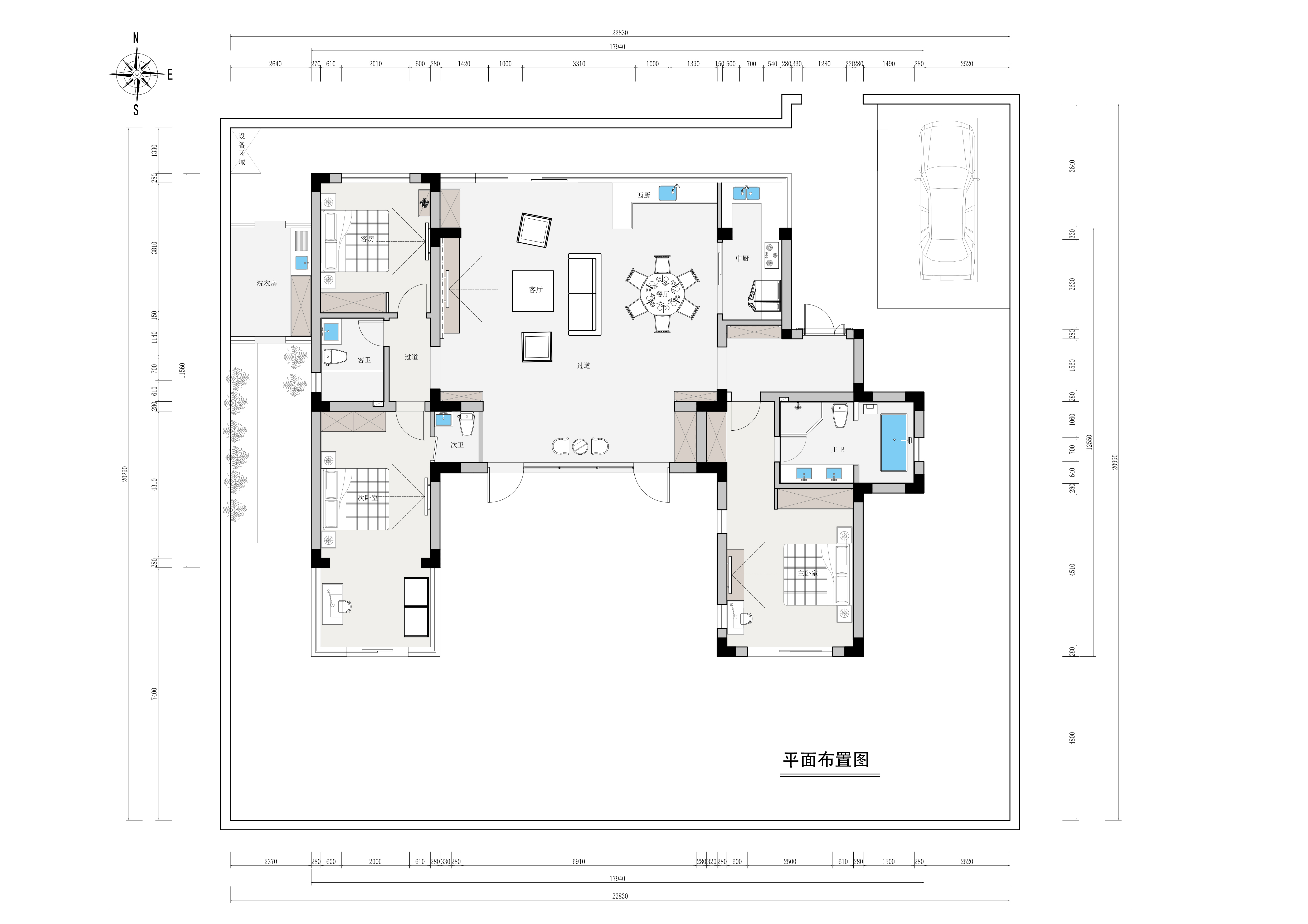
项目定位:该案例的空间以亮白色为主,加以浅灰色,土黄色给人以平和自然之意。中性色调的灰色地面,柜体木纹饰面结合,素雅简约,赋有层次感。
-
空间意境:卧室设计延伸客餐厅风格,打造素雅,沉稳空间。不一样的床背景设计带来不一样的视觉效果,由装饰灯带打造的空间更具现代时尚感。
-
空间布局:异形顶面设计,稍加入灯具点缀,便十分有设计感。内藏的厨房吊轨移门不占用空间面积,考虑到后期需要封闭式厨房用途的时候,可以将移门拉起来,成为一个透光的封闭空间。
-
设计选材:暂无
-
用户体验:卧室简单的设计,给人以放松、休闲的心理暗示,当身体卸下一天的疲惫,在舒适的空间,更容易进入睡眠。
0
0

认证 · 让您身份增值