星河
2255
作品说明
- 项目类型:住宅公寓
- 项目地点:镇江市
- 建筑面积:140.0000㎡
- 项目造价:40.0000万元
- 主案设计师: 张仁健
- 竣工时间:2022-03-03
- 设计机构:阔达装饰
-
项目定位:初见女主夫妇,女主活泼健谈,男主沉默寡言。并没有像往常聊很多房子改造的细节,那天聊了很多关于他们的生活状态,小到孩子在哪上学,成绩怎么样,小孩与父母之间相处的细节。仿佛在用另外一种方式告诉我房子的设计方向。SO! 第一次见面就确定了进一步的合作。
本案并没有给他们提供风格定性参考图,只为了给他们所述的幸福“量身定制“。
-
空间意境:造型优雅的弧形沙发与小体量的圆弧天花给一丝灵动、甜美的印象,餐桌上方的“比翼双飞“天花象征爱情,在技术上弱化了餐桌上的梁。
象征美好的潘多拉凝练了空间大多色彩,希望能给他们带来好运。朴实无华的直线与曲线勾勒了简约实用的空间,奶油色的主体色奠定了明亮温馨的氛围。 -
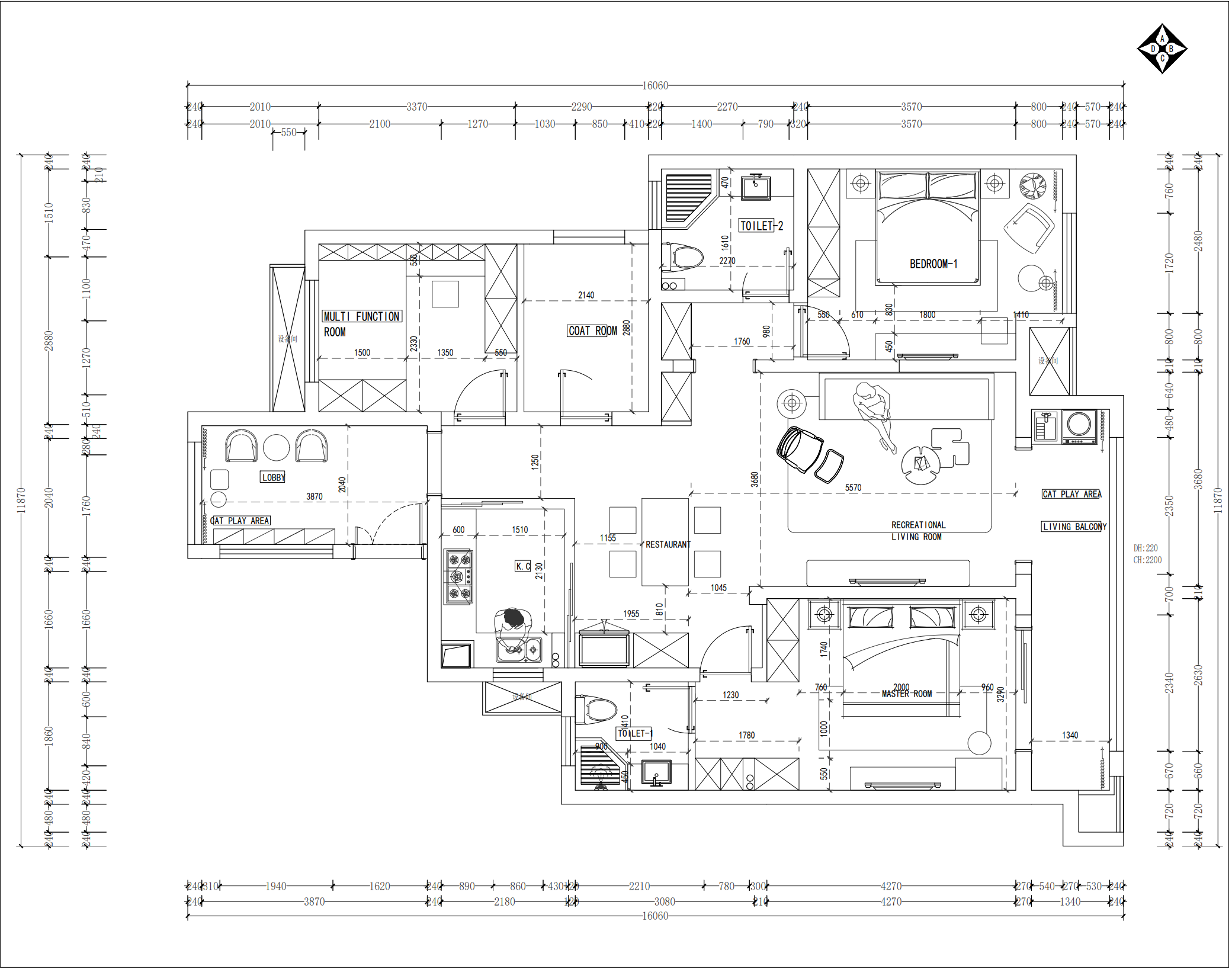
空间布局:厨房布置l形转角移门,打开时,厨房作为开放式厨房,烧菜的时候可以关闭
-
设计选材:选用东芝中央空调,双转子压缩机最低启动功耗百分之十,相较于传统百分之三十的启动功耗,节能降耗。
-
用户体验:客户很满意,并且发了很多朋友圈。
设计师本人八九的,有点丑,有点瘦的男人。 本案位于江苏省丹阳市翡翠林社区,建筑面积142㎡,总造价45万(基装+主材+软装)。设计风格:现代简约。 初见女主夫妇,女主活泼健谈,男主沉默寡言。并没有像往常聊很多房子改造的细节,那天聊了很多关于他们的生活状态,小到孩子在哪上学,成绩怎么样,小孩与父母之间相处的细节。仿佛在用另外一种方式告诉我房子的设计方向。SO! 第一次见面就确定了进一步的合作。 本案并没有给他们提供风格定性参考图,只为了给他们所述的幸福“量身定制“。 本案希望呈现的是女主所述幸福甜美的三口之家——所念皆星河,星河皆是你。 造型优雅的弧形沙发与小体量的圆弧天花给一丝灵动、甜美的印象,餐桌上方的“比翼双飞“天花象征爱情,在技术上弱化了餐桌上的梁。 象征美好的潘多拉凝练了空间大多色彩,希望能给他们带来好运。朴实无华的直线与曲线勾勒了简约实用的空间,奶油色的主体色奠定了明亮温馨的氛围。 本案设计理念:有经历过感性,也有经历过理性。跳脱了风格的限定,在预算之下,用更多感性的认知去复刻了他们幸福样子。总结:不经历过感性的项目,难有直击灵魂的喜爱。
0
0

认证 · 让您身份增值