Teatales坐茶02


作品说明
- 项目类型:餐饮
- 项目地点:重庆市
- 建筑面积:300.0000㎡
- 项目造价:80.0000万元
- 竣工时间:2021-06-13
- 设计机构:治木设计
-
项目定位:我们期待在这里,时间和空间的交融惬意漫长,空间营造的氛围可以让我们唤起过去的记忆和未来的梦想。有别于老店在文创区的慵懒惺忪,空间克制精神饱满,独立于世,隐于喧嚣。
-
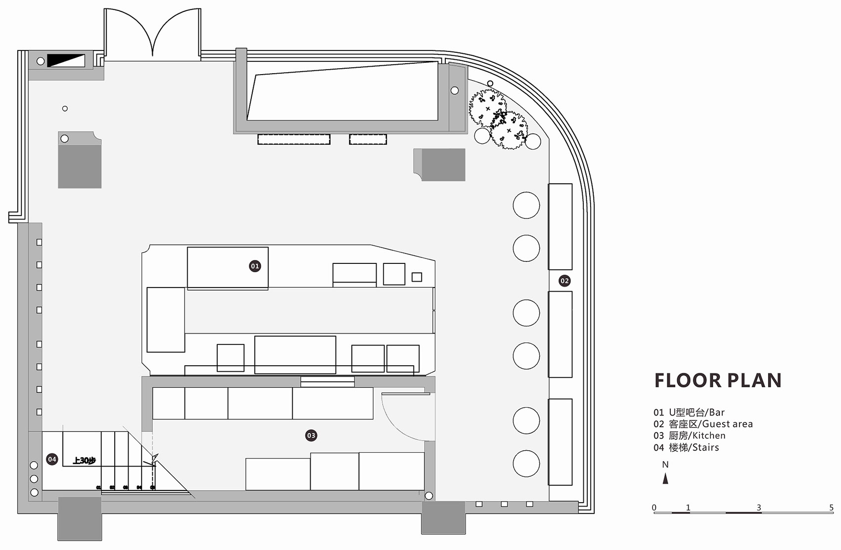
空间意境:出于对服务动线的把握,我们分别在一、二层都设置出餐吧台。一层空间临近商场入口广场,为快消客群提供便捷的茶饮服务。
为化解场地限制,我们对吧台进行几何切割,空间尺度更为舒适。等待区内置,吧台和落地窗以透景的方式形成变幻丰富的视觉观感,窗外穿梭的人流和静态的室内犹如一处赏心悦目的风景,我们愿意照顾到每一位等待取单的客人的情绪。
为客户提供更优质的服务体验是我们和Teatales坐茶的共同价值观。以服务和客户体验作为出发点,二层整体采用以吧台为服务轴心向四周辐射的布局模式,满足客户随叫服务随到。不同的功能体抽象成大小不一的体块,在扁平空间堆叠形成立体观感。为减轻大体量的体块笨重,我们运用类似雕塑的手法对其进行分解、咬合和挖除,再运用大地系材料进行附着,最后形成一个简洁明快的有力形体。
传统茶体验区的设置,我们思考可以以一种年轻的方式进行茶文化的传承。茶,作为一类最常见、最普及的传统药食同源物品,以Teatales坐茶的LOGO茶包造型结合传统中药药柜形式演变而成的储茶收纳柜。 -
空间布局:通过对自然光线深浅变化的感知,巧妙将楼梯藏匿于吧台之后,从而让通道形成由明及暗,到再次明亮的层次变化,客人通过从小尺度通道拾阶而上到步入二楼的开阔空间所产生的视觉和心理体验,正如陶公笔下《桃花源记》中描述“林尽水源,便得一山,山有小口,仿佛若有光。便舍船,从口入。初极狭,才通人。复行数十步,豁然开朗。”神似而不拘泥与形。
-
设计选材:环保砂岩涂料附着墙面,地面选用薄片天然石材铺贴,木质选用天然贴皮,节约造价同时注重低碳环保。
-
用户体验:空间氛围营造延续Teatales坐茶“侃天说地,歇脚喝茶”品牌基因。一盏清茶,一刻清闲。烟火人生,慢煮岁月。

