暗色系的独白


作品说明
- 项目类型:住宅公寓
- 项目地点:唐山市
- 建筑面积:175.0000㎡
- 项目造价:70.0000万元
- 竣工时间:2022-05-05
- 设计机构:炕沿儿设计
-
项目定位:在设计前期业主就明确要用三款单品样式:Flos的Arco落地灯/2097吊灯和一款凤凰壁纸,从而得知空间的主调是意式风格。 之后结合预算和克制表达的设计初衷,简要的遵循了意式家具展厅的部分意向,通过家具呼应硬装的策略来满足业主表达自我的品质需求,比如让沙发形式与硬装木作呼应让空间在平面上充满向外的张力,让餐桌的材质形式与顶面结构形成对衬关系使得空间丰富耐看,最终用设计的方法来突破条件的限制表达设计意图。
-
空间意境:在环境风格上用构成的手法来平衡“黑白”两个系列的材质: ①在客厅用“手枪手势”来延展沙发背景(伸出去的食指代表东西横梁、中指无名指小拇指代表弧型的壁纸墙); ②在餐厅用平面构成的手法雕琢白墙; ③在玄关用立体构成的手法设计隔断来分割光影。
-
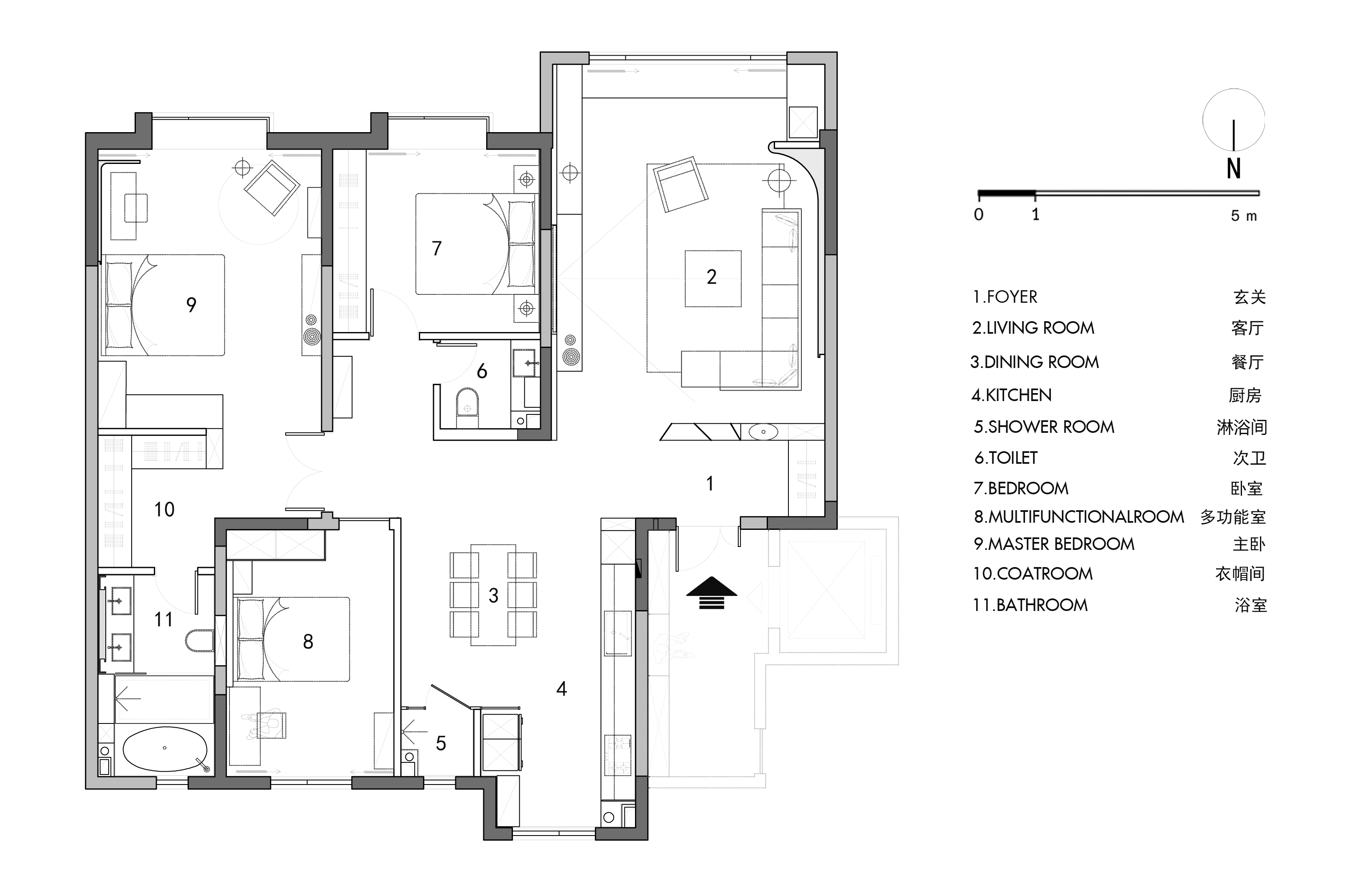
空间布局:在布局处理上用“框形结构”的概念来处理关键的三处局部: ①客厅的L型沙发与地柜及地台连成的L型成咬合对峙态势; ②厨房配置近5米的”一“字型组合橱柜; ③主卧门改成通顶的双开门, 在保持看似独立的同时又相对统一,以此凸显空间大气的本质。
-
设计选材:空间整体在保持白墙的同时分别用黑胡桃/壁纸/石材/金属板做了局部立面,通过局部应用高品质材料的手段来呼应低碳与经济学。
-
用户体验:新家满足了简约的、大气的、个性的居住氛围与期待一致

