自在致简,回归纯粹!
600 - 项目类型:住宅公寓
- 项目地点:常州市
- 建筑面积:137㎡
- 项目造价:168100万元
- 参与设计师:唐邓
- 竣工时间:2021-12-09
- 设计机构:金孔雀装饰
-
项目定位:业主故事:好的设计在每个人眼里的定义都是不一样的,对于美女业主一家三口来说,营造家的质感与温度成为本次作品的中心思想,本着设计服务于生活的原则,设计师带着业主一起挖掘内心最根本的需求和喜好,共同打造出有温度有幸福感的空间作为他们进入新的人生阶段的美好开端。
-
空间意境:软装装饰处理方面,着重用简洁有质感的材料来处理造型,不做复杂造型避免给日后保洁增加烦恼,事实证明,即便是现代简约风格,也能有其独有的韵味。
-
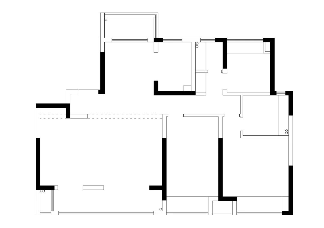
空间布局:设计思路/设计亮点: 本案一梯一户,黑牡丹经典户型,在户型改动方面把原来大横厅改成更实用的三房朝南,最小的北房间划入主卧室改造成衣帽间,比例过于大的内卫恢复到该有的状态。能利用的区域统统敲掉合理分配,在空间和功能上处理更合理。
-
设计选材:电视背景墙没有繁杂的背景墙与墙面装饰,黑色大理石块融入其中,打破了简白木饰面的单调,呈现黑与白相互平衡的舒适感。中间摆上BearBrick装饰,内嵌灯带增加氛围感。为了不破坏电视背景墙的整体性,次卧选择了隐形门设计,流畅简约的设计语言更增添了些许艺术感。
-
用户体验:很喜欢设计师的整体设计,设计师结合简约风格与实用主义,满足了我对家的个性化需求
业主故事:好的设计在每个人眼里的定义都是不一样的,对于美女业主一家三口来说,营造家的质感与温度成为本次作品的中心思想,本着设计服务于生活的原则,设计师带着业主一起挖掘内心最根本的需求和喜好,共同打造出有温度有幸福感的空间作为他们进入新的人生阶段的美好开端。 设计思路/设计亮点: 本案一梯一户,黑牡丹经典户型,在户型改动方面把原来大横厅改成更实用的三房朝南,最小的北房间划入主卧室改造成衣帽间,比例过于大的内卫恢复到该有的状态。能利用的区域统统敲掉合理分配,在空间和功能上处理更合理。软装装饰处理方面,着重用简洁有质感的材料来处理造型,不做复杂造型避免给日后保洁增加烦恼,事实证明,即便是现代简约风格,也能有其独有的韵味。
走进客厅,清爽的奶油白迎面袭来,色彩的点缀是客厅最强“软装”,温馨的暖意给灰白基调带来了许多生机与活泼,不再单调乏味。 奶白色豆腐块皮沙发,搭配一盏简约线条感落地灯,黑白花色地毯,客厅空间多了些艺术感。一幅抽象装饰画如同平静水面上的粼粼波光,为空间注入灵动魅力。
没有繁杂的背景墙与墙面装饰,黑色大理石块融入其中,打破了简白木饰面的单调,呈现黑与白相互平衡的舒适感。中间摆上BearBrick装饰,内嵌灯带增加氛围感。为了不破坏电视背景墙的整体性,次卧选择了隐形门设计,流畅简约的设计语言更增添了些许艺术感
原餐厅没有配置柜体,在综合考虑收纳需求和尺寸后,沿阳台墙面做柜体,嵌入冰箱,补充餐厅的收纳。延续黑白主色调的餐桌椅让空间更为硬朗,艺术。
厨房空间虽然不大,但功能齐全,使用感极佳。U型操作台面确保了操作空间,白色吊柜搭配灰色地柜,连厨房都散发一丝丝精致感。
卧室延续着低饱和度的色彩,极简的线条、浅色与深咖色木饰面,内敛而素净,通过不规则抽缝处理彰显出主人的生活品味,从材质和造型上放大卧室的美学意义,为屋主营造舒适的休憩时光。
蓝色调的儿童房,有趣的装饰挂画配合同色系床品。简洁的色彩更利于培养孩子的审美,形成舒适的空间氛围。靠窗做组合书柜书桌一体,给孩子独立的学习环境,培养良好的行为习惯。
0
0

认证 · 让您身份增值