自由之地,美学与舒适感的统一
611 - 项目类型:住宅公寓
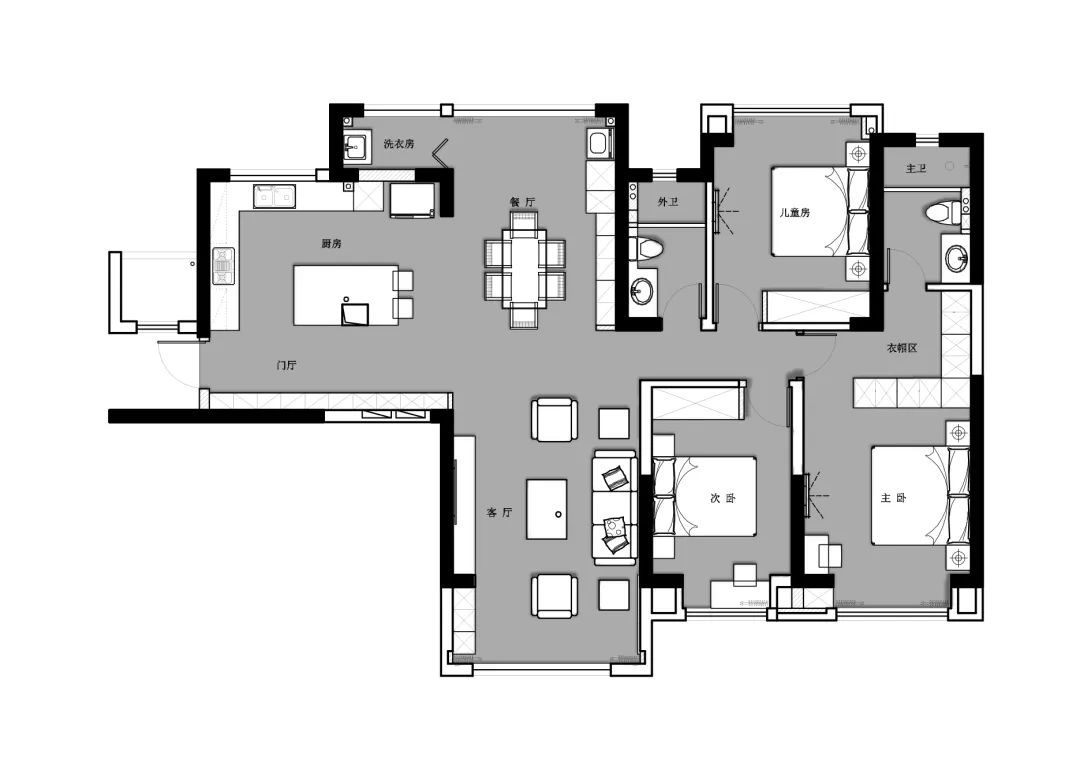
- 项目地点:常州市
- 建筑面积:142㎡
- 项目造价:181000万元
- 参与设计师:汤雨倩
- 竣工时间:2022-04-06
- 设计机构:金孔雀装饰
-
项目定位:屋主心声:想要换一处稍微大一点的房子,是在我们二人有了孩子之后一直在计划的事情。源自多年的工作影响,希望居家氛围惬意自在,有着都会现代氛围格调,但一切的出发点又必须基于“围绕家庭日常生活上开展。”
-
空间意境:淡雅的素色空间里,流畅的曲线装饰带来更具起伏的韵律与节奏,与家具软装一同在温润的木色基底上,绘制出宁静和谐的画卷。
-
空间布局:将住宅设计回归居住本身,以追求美学与舒适感的统一。
-
设计选材:在具有鲜明的现代风格色调的基础上,融合大理石材、木材、艺术漆、玻璃等多种材质,通过细致的布置,让空间富有阔达的精神气质。加强屋主对居住空间的认同感,在实用性与格调之间找到恰当的平衡,与孩子一起,完成一场成长中的陪伴与自我发现。
-
用户体验:看着房子一点点蜕变成自己想要的样子,那种感觉很好。专业的事交给专业的人做,没毛病,重要的是跟团队品味要相互契合。 感谢所有人的努力,这一切都刚刚好。
屋主心声:想要换一处稍微大一点的房子,是在我们二人有了孩子之后一直在计划的事情。源自多年的工作影响,希望居家氛围惬意自在,有着都会现代氛围格调,但一切的出发点又必须基于“围绕家庭日常生活上开展。” 在具有鲜明的现代风格色调的基础上,融合大理石材、木材、艺术漆、玻璃等多种材质,通过细致的布置,让空间富有阔达的精神气质。加强屋主对居住空间的认同感,在实用性与格调之间找到恰当的平衡,与孩子一起,完成一场成长中的陪伴与自我发现。 将住宅设计回归居住本身,以追求美学与舒适感的统一。 淡雅的素色空间里,流畅的曲线装饰带来更具起伏的韵律与节奏,与家具软装一同在温润的木色基底上,绘制出宁静和谐的画卷。
灰色奠定空间宁静的基调, 米白色意式沙发同色系的单人沙发 与大理石纹茶几与整体氛围和谐共生, 绿植、摆件...以细微处的变动打破沉闷,光影穿梭于室内, 与纯粹的木色一同展现出惬意安然的姿态。
无主灯设计让整个空间的视觉表现更为清爽简洁; 体积不大的茶几方便移动。 实用,开阔且方便小孩玩耍,便是居者对客厅空间的期待。
视线转换,餐厅与西厨,灰色与木色穿插组合; 开放式的中西厨与餐厅连为一个整体, 嵌入烤箱、冰箱等家电,以令人愉悦的美学方式整合空间。 素灰色的基底铺陈出简约的气质,酷感十足的黑灰色系, 呈现出极具质感的绅士派头。 长形白色的岛台让餐厨空间动线灵活流畅, 令空间多了丝不拘一格的随性。
通透开阔的空间内, 黑白配色的餐桌椅搭配着同色系后现代极简个性吊灯, 温润的木作、葱茏的绿意,共同承载起餐厅的氛围营造。
主卧,稍显低调的高级灰与质朴的木材搭配起来, 总是这样默契,经久耐看。
次卧,当阳光穿透素色的空间,温暖总会如期而至。
次卧2延续了整体的现代风, 高雅柔和的海军蓝丝绒床则自带高级感, 一同将空间装饰得优雅又慵懒。 午后斜阳静静照在床上,令空间呈现出静谧惬意的氛围; 在理想的私人空间内体会难能可贵的温馨与自由。
0
0

认证 · 让您身份增值