凝萃时光



作品说明
- 项目类型:住宅公寓
- 项目地点:南京市
- 建筑面积:330.0000㎡
- 项目造价:260.0000万元
- 主案设计师: 李光政
- 竣工时间:2021-11-18
- 设计机构:北岩设计
-
项目定位:该项目位于南京河西CBD区-德基世贸壹号小区,小区周围环境优渥,商业繁华,本案业主亦是一位商界人士,事务繁忙,家是心灵的驿站,城市的暂歇地。
撇开繁华回归宁静,追求艺术的开阔和轻盈感,本案我们试图营造一种繁华中的别样风景。没有太多色彩,回归内心宁静,通过营造室内空间秩序感,安放居住者内心,搭建舒适丰富的生活场景,成为屋主的心灵修养地。
私宅设计的丰富之处在于,除了感受物质实用之处,我们又希望着眼于更高处,试图探寻自身对于意义、价值、自我、社会的定义和排序。 -
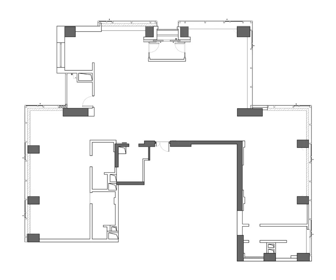
空间意境:住宅四面落地窗,坐拥城市极佳景观,原始户型为框架结构,我们根据居住者需求重新规划空间:入户门厅、客餐厅横厅、中西厨岛台、四房三卫,满足居住者未来家庭成长需求。
-
空间布局:该建筑原本全部规划均为商业办公,后部分变更为私人住宅,属于框架结构,地产商预留了消防管线及厨卫空间,其他均为打开状态,设计师根据业主需求进行了功能空间布局,保证居住的舒适性、品质感。
-
设计选材:门厅
深色木饰面三面围合,自然形成了入户门厅区,大幅蓝色调抽象派画作让空间充满艺术气息,略带斜度的石材地台在灯光的托举下轻盈敦厚,透出一丝不世故的雅趣。
客厅
阳光透过落地窗肆意洒入室内,自由折射弥漫,简约的家具设计,空间动线自如,刻画出大平层特有的优雅从容。
绒面布艺沙发带来家的温暖感,开阔的视野,点缀其中的艺术品,让人于宁静之中寻找内心的安定。
简洁的空间处理手法、色彩的明暗对比、藏于块面之中的灯光勾勒,温柔闲雅的家私设计,仿佛是复刻的某段时光切面,精华凝萃此处。
悬浮式半墙将客餐厅自然分区,形成两面环绕的动线,深色木饰面通过对称设计,刻画出空间秩序感,氛围稳重凝练,适量的灯光植入,生出家的暖意。
克制的精神背后,是对物的用途理解,每一件物品在场域中都发挥着它的作用,不同的材质肌理形体,散发着独属它的美丽,在空间相互交融,最终被人所吸纳。
餐厅
设计师将大幅面积规划给公共空间,餐厅区设计出了丰富的生活场景,中央岛台搭配圆形抽为空间带来海派生活方式。中西厨有序衔接的背后亦是居住者生活方式的读白,若事务繁忙,不妨和家人一起蒸煮轻食,亦是健康之道,情感维系。
大平层住宅最稀缺的地方在于开阔的空间感,也是大平层住宅优于别墅之处,所以设计师在设计中谨慎使用“分割”的方式,在公共空间尽量隔而不断,虚实相间,互为画印。
岁月鎏金向希微,烛火不熄待天明。
从门厅隔断望向餐厅一禺,行云流水,处处为景。
主卧
宽裕的主卧室配置阅读区、化妆区、卫生间、两处衣帽间,于舒适尺度中寻求内心的安定自若,享受都市繁华中的片禺闲意。
主卧由过厅进入,再移步转折至睡眠区,形成微妙安全的空间心理缓冲。
来自Zieta的单椅经典俏皮,仿佛充满了气的气球,感受童稚可爱。
主卫,双台盆设计,入墙式龙头、浴缸,静享舒适生活。
书房
书房安排在西侧睡眠区和公共区域之间,实木定制桌椅搭配简约家具设计,沉稳儒雅。
-
用户体验:家里感觉很简约但又充满高级感,很喜欢

