陌上栖山庭 · 上叠
305
作品说明
- 项目类型:别墅
- 项目地点:承德市
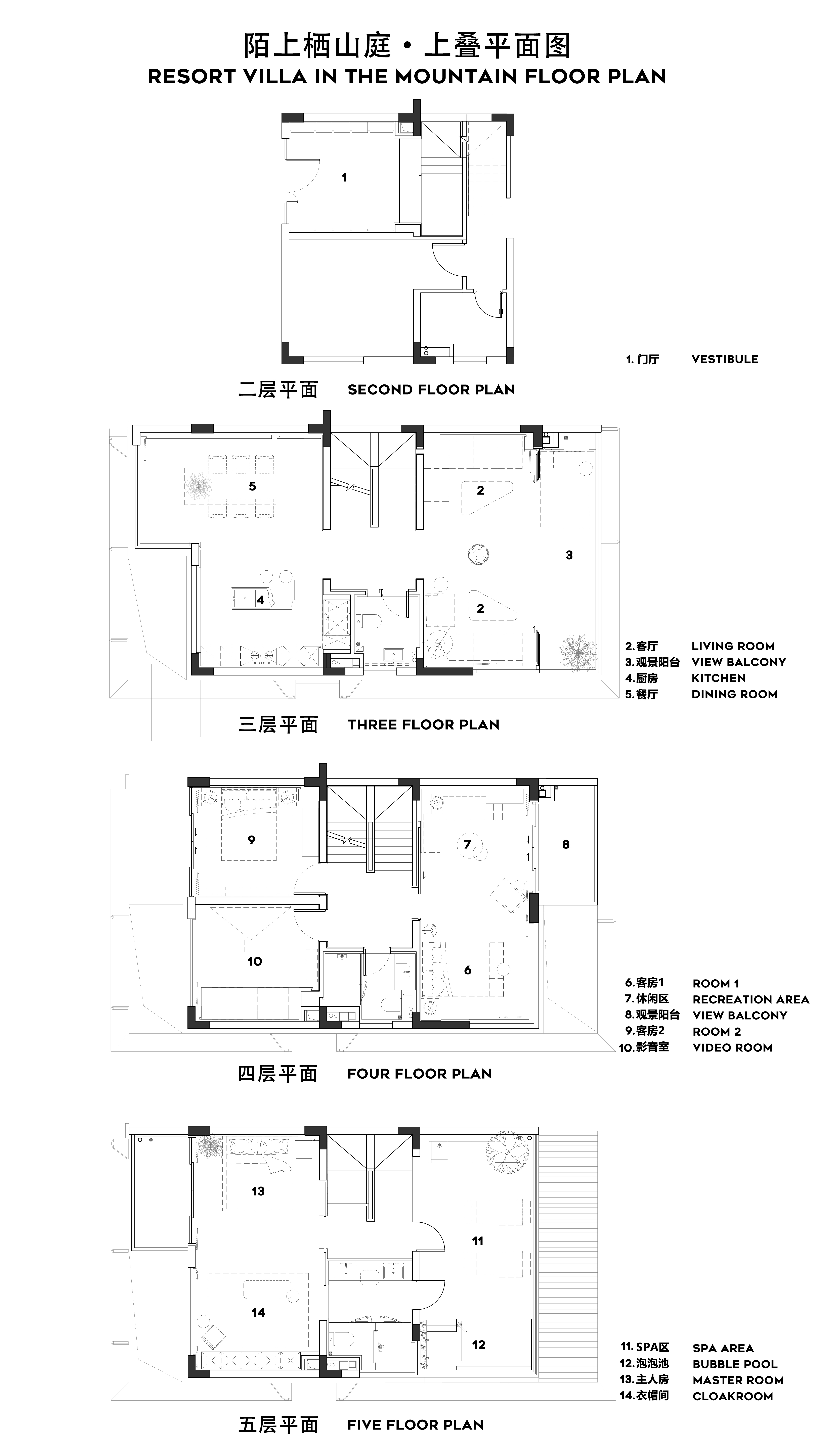
- 建筑面积:220㎡
- 项目造价:300万元
- 参与设计师:叶华锦 林素婷
- 竣工时间:2021-10-19
- 设计机构:观致设计(广州)有限公司
-
项目定位:项目位于丰宁满族自治县,地处南方中原农耕文化和北方畜牧文化的中间地带,其文物特征容南、北文化为一体。既有红山文化,又有龙山类型;既有中原细腻、灵巧的风格,又有草原粗犷、朴实的特色。观致设计重视拥有厚度与深度的事物,创作时的态度如此,打造空间时亦是如此。在设计的创作下,大自然创造的全色谱之美有迹可循,一种最初的感动演变成一个空间作品。空间中每一厘米的色彩、图案和肌理,都被倾注了设计师的灵动语言,精挑细选的艺术和设计,让物件相互形成和谐或冲突的有趣对话。
-
空间意境:通过对大自然的不同元素解构与重组,运用不同的材质工艺,原石、金属、木材经手工打造后显露风格,空间与大自然生长的气息自然重叠,空间的场景兼具现代细腻与原始粗犷。
-
空间布局:空间中多以有机雕塑感元素来装饰,结合自然的铁锈肌理,让室外的光线以温暖而空灵的光芒向外扩散,发出呼吸的声响,让室内各个布局富有光影变化,赋予空间更戏剧、更有趣的灵魂。
-
设计选材:设计选材除了关注色彩与图案,面料的原料、克重、触感,都会影响效果,综合考量后才有更好的舒适度与质感。空间中自然矿物的色彩从墙面倾泻而下,模仿了大地的肌理,唤起的感觉从抽象转化到自然。多用特殊材质——原石、金属、木材等不同的材质相互碰撞,散发出原生却细腻的气息。
-
用户体验:空间中富有视觉冲击力的奔放色彩充满张扬和澎湃的生命力,不同的色调使人唤起的情绪在平静与动荡的凹凸空间内不时变化,热烈的蜕变与肆意生长的力量感扑面而来,在这里可以享受空间给予倾听自然的快乐。
0
0

认证 · 让您身份增值