LINK律师事务所



作品说明
- 项目类型:办公
- 项目地点:郑州市
- 建筑面积:900.0000㎡
- 项目造价:360.0000万元
- 主案设计师: 刘明帅
- 参与设计师:刘明帅、张千千、郭森、马亚军
- 竣工时间:2022-07-26
- 设计机构:河南集物所建筑设计有限公司
-
项目定位:本案位于河南郑州东区的一个商业区,处于整栋建筑的顶层,光线自然是极好的,现场优势在于空间挑空区开阔,墙体可拆改,目前是毛坯的原始结构和空间矩阵的承重柱,劣势在于顶面梁体的错综复杂,高低不一,左右两侧无法形成空间二维层面的交界。但,劣势亦是优势。
空间围绕着打造垂直关系的立体氛围和框架结构的设计思路,整个方案,采取完全的独立体块和合二归一的非强化式的固定延续,注重结构之间的规整关系和功能之间的相互衔接,求破规制内的思维惯性而分割的功能分区,让动线更倾向于‘自由化’式的环绕行为有趣且无限延伸。 -
空间意境:秩序控制光,光影表达秩序
法律的概念,使空间属性具有相对的定义,我们以相对平述平化的方式来阐述其内在诸多的复杂可能性,挖掘更多不同的办公方式和探讨对人性的再思考,让空间更具可考究及情感共鸣的再建立...光的塑造是这个空间的原点,整个空间的开展逐步演绎而来。时间,对每一个生命来说都是一种奢侈品,而空间,则是与人共度时光的载体。 -
空间布局:我们一直期望以简单的方式来阐述其内在诸多的可能性,所有感官的认知都是物质空间体验的基础,而设计的开始,是对建筑的敏感和对设计的严谨。
在原本高低不平的错层关系上,想要去实现双层空间,最核心的点在于它的入口和整个功能的衔接,所以在整个布局的设计上,运用了回字形的动线和单独的一个垂直关系中所存在的独立体系。 -
设计选材:主要材料:金属网、瓷砖、木饰面、钢构、木地板、乳胶漆
整个材料,除了必要的钢构组成围合的垂直空间所必要的建材以外,大面积的瓷砖和弱化冰冷温度的木饰面,形成两种固态和匹配的中和。很少出现为了形式主义达到的表面美观,我们一直觉得,材料和结构是一致的,必须有他的使用逻辑和建构逻辑。所以在选材上,力求达到质朴中的高级和经济主义下的环保。 -
用户体验:整个围合和营造,让空间中存在对话,每一个所处的办公人员,在忙碌的工作中,可以感受到空间带来的生命力和属性相匹配的氛围,同时相对轻松和谐的办公,让LINK的理念更加聚焦。
项目设计背景 ▼ 本案位于河南郑州东区的一个商业区,处于整栋建筑的顶层,光线自然是极好的,现场优势在于空间挑空区开阔,墙体可拆改,目前是毛坯的原始结构和空间矩阵的承重柱,劣势在于顶面梁体的错综复杂,高低不一,左右两侧无法形成空间二维层面的交界。但,劣势亦是优势。 空间围绕着打造垂直关系的立体氛围和框架结构的设计思路,整个方案,采取完全的独立体块和合二归一的非强化式的固定延续,注重结构之间的规整关系和功能之间的相互衔接,求破规制内的思维惯性而分割的功能分区,让动线更倾向于‘自由化’式的环绕行为有趣且无限延伸。
方案延展思路模拟
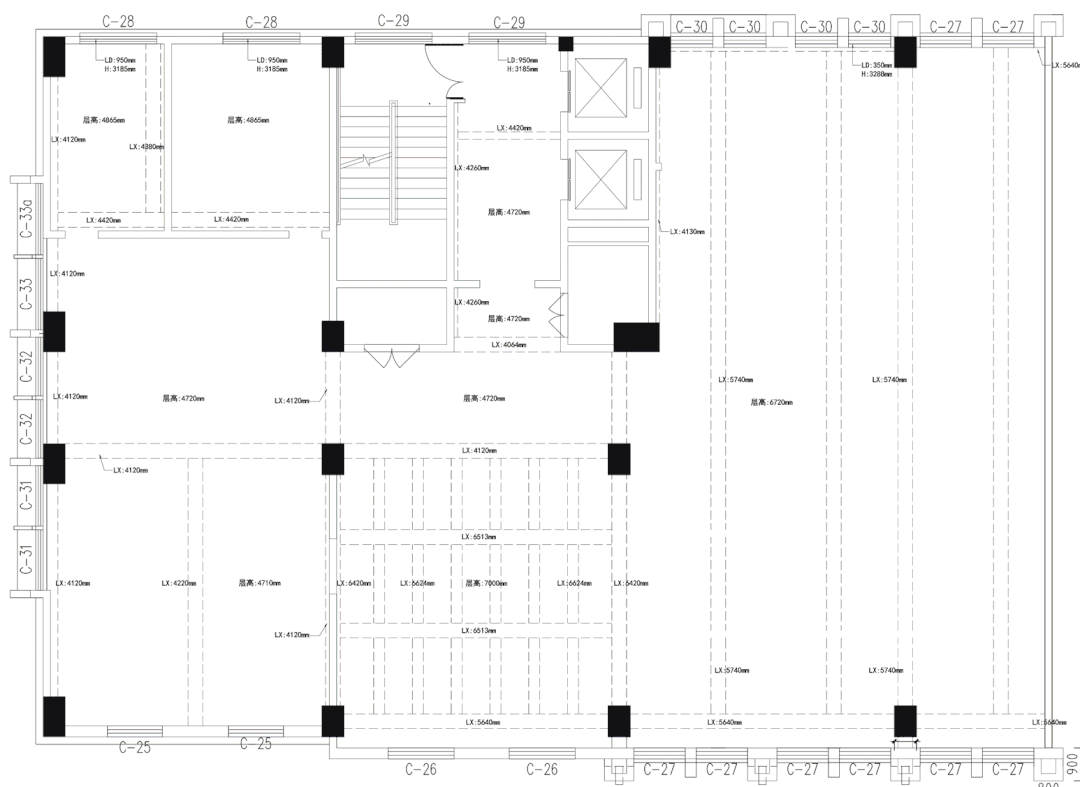
一层布局/梁体对应关系图
二层布局/梁体对应关系图 ▼ 秩序控制光,光影表达秩序 法律的概念,使空间属性具有相对的定义,我们以相对平述平化的方式来阐述其内在诸多的复杂可能性,挖掘更多不同的办公方式和探讨对人性的再思考,让空间更具可考究及情感共鸣的再建立...光的塑造是这个空间的原点,整个空间的开展逐步演绎而来。时间,对每一个生命来说都是一种奢侈品,而空间,则是与人共度时光的载体。
美的标准 = 秩序 × 复杂性
项目信息 Information ━ 项目名称:LINK律师事务所 设计机构:集物所建筑设计 项目地点:河南 / 郑州 建筑面积:900㎡ 主要材料:金属网、瓷砖、木饰面、钢构、木地板、乳胶漆

