星辰大海
887 - 项目类型:住宅公寓
- 项目地点:成都市
- 建筑面积:260㎡
- 项目造价:110万元
- 参与设计师:张月 李海龙
- 竣工时间:2022-06-17
- 设计机构:成都初一美学空间设计
-
项目定位:此次案例的屋主最开始确定让我们服务之后,因为家人意见不同。最好纠结对比了之后又折返回来确认让我们落地此案。屋主是一位温柔美丽的多才多艺的女孩,设计之初屋主就热切的表达了她喜欢的设计元素与自己期待的空间的文化。虽然此次服务的对接更多为异地设计服务,但是整体的设计+落地对接过程,客户相当信任我们。因为我们与屋主彼此高度的信任以及屋主深信不疑的购买执行,才保证了此次案子的实景。
-
空间意境:①结合原始结构梁体,适当的造型在解决空间使用功能的同时,最大的保证了空间的美感。
②层级的空间构图让空间保持干净利落的同时,最大化的丰富了空间的情绪。 -
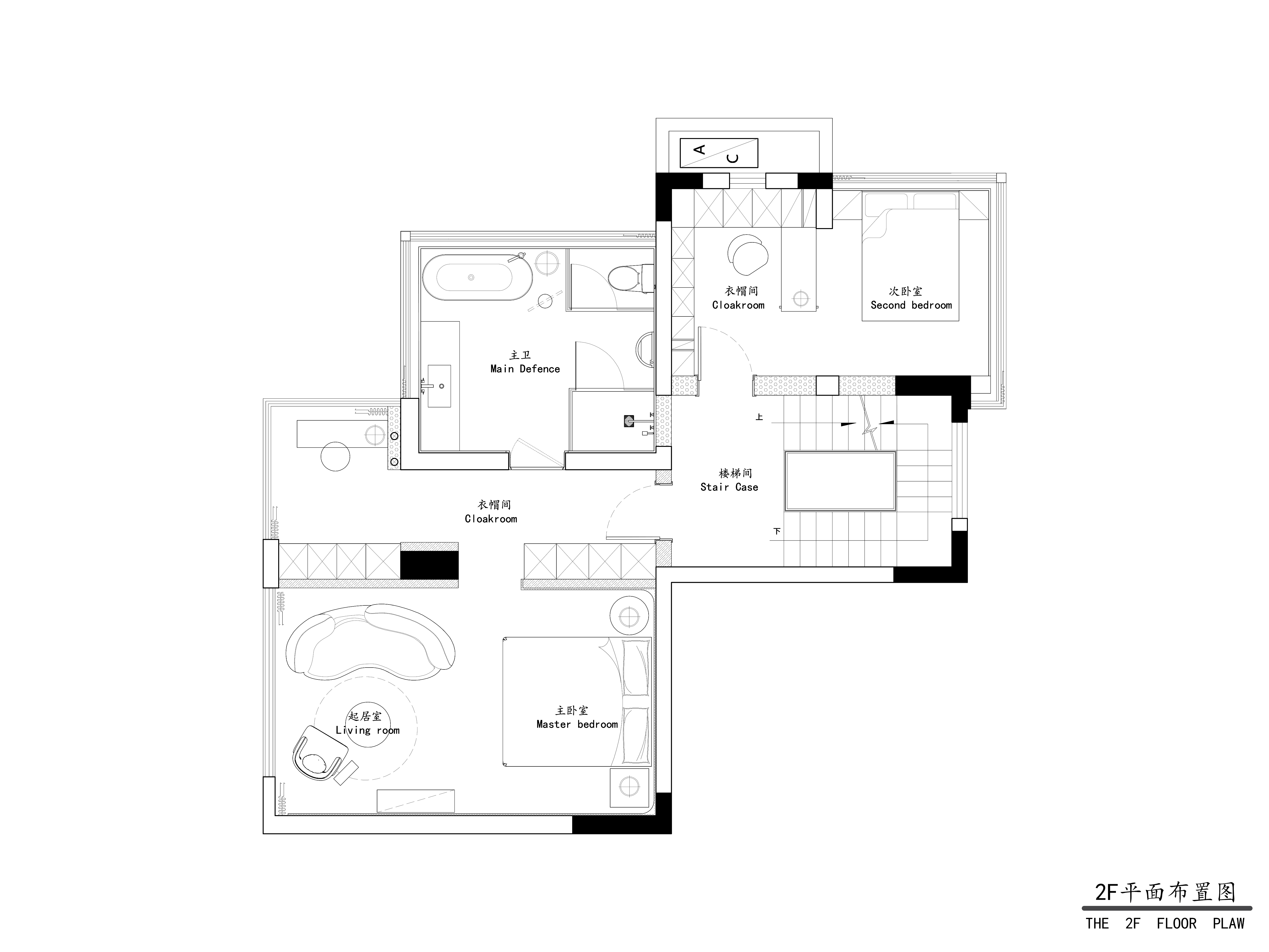
空间布局:①合理的运用原始空间搭建出新的阳光房区域,解决了业主需要卫生间的高配置生活的同时光的注入让空间有了温度。更多的自然风光进入室内,建筑、环境与人也因此可以有了更多的“对话”。
②最大化的将室内采光引入室内,让空间变的通透又舒适。 -
设计选材:因为空间原始梁体交错,为了最大化保证空间使用,大胆且适量的裸露了部分梁体,降低了吊顶的面积的同时也最大化的保证了空间的层高。
-
用户体验:屋主很认可此次项目落地之后的居住体验,对设计的整体细节很是细化。
玄关区域通过合理的功能区的划分,干净利落的配色让空间轻盈中透着高级。
层级的空间构图让空间保持干净利落的同时,最大化的丰富了空间的情绪。
定制的电视金属架与单品的配色相互呼应,让空间更具有情绪性。
感觉利落的空间,配色调温和的家具单品,让每一件单品的气质都感觉高级不少。
客厅与餐厅之间通过矮墙的设计,让两个不同的空间得以区分的同时,也得以互相融合。
一抹绿色引入眼帘,米调与透明色的餐椅呼应极简空间,极简不是缺乏设计要素,它是一种更高层次的创作境界,其表现方式是丰富的。
现代简约的吊灯设计极具艺术感搭配,餐桌侧面的钢板柜展示柜增加空间的层次感,简约明洁而不简单。
楼梯是连接整个空间的纽带。
设计师化作操纵光的魔术师,以简明的阶梯为容器,方形的面将光线引入室内,整个楼梯的空间形态呈现在眼前。
百叶窗分割过滤光线,所得到的光影在空间内安静平和的漫散开来,减少强烈夺目的白光,给空间带来安宁,寂静,营造良好的室内光影氛围。
主卧的休闲厅是业主下班后最喜爱待的一角,是属于她的音乐小天地。
房间里硬朗的线条与丰富的色彩相互交叠,适度的留白,交给主人的音乐装饰,为住人筑造属于自己的一方天地,在自己的天地释放追求的热情与理想,静谧的空间里流淌着文化濡染与艺术熏陶。
以白色为主搭配以实木工艺,给纯净的白融入温暖,使房间达到平衡,简单实用不失温馨。
合理的运用原始空间搭建出新的阳光房区域,解决了业主需要卫生间的高配置生活的同时光的注入让空间有了温度。更多的自然风光进入室内,建筑、环境与人也因此可以有了更多的“对话”。
岩板一体盆的运用搭配异形镜增加了空间的艺术氛围,当然我们也置入天窗帘+空调设备解决夏天热冬天冷的情况。
1F原始结构图
1F方案布置图
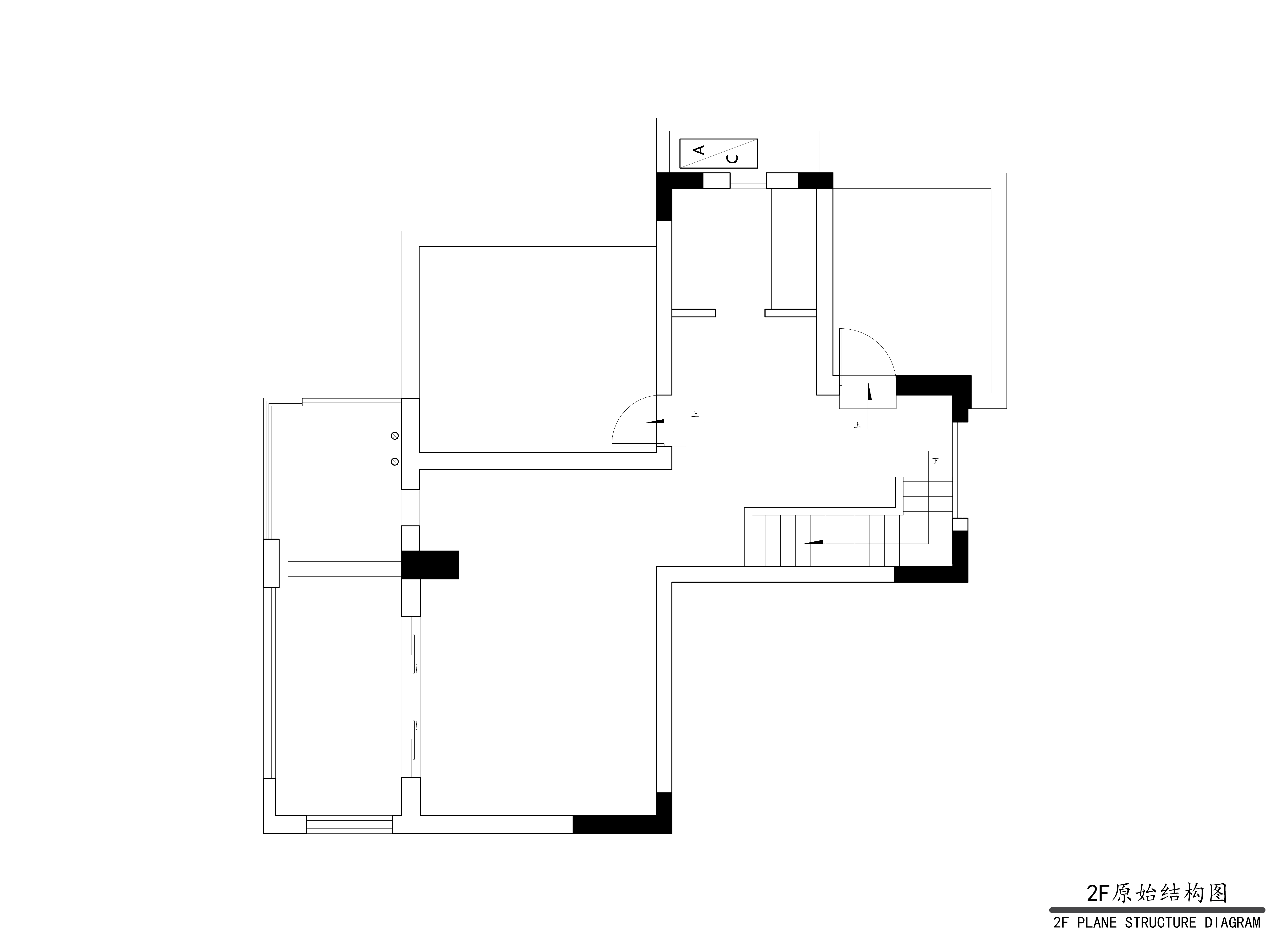
2F原始结构图
2F方案布置图
3F原始结构图
3F方案布置图
0
0

认证 · 让您身份增值