遇见西岸.展厅设计
772
作品说明
- 项目类型:展示
- 项目地点:成都市
- 建筑面积:400㎡
- 项目造价:128万元
- 参与设计师:张月 李海龙
- 竣工时间:2022-03-10
- 设计机构:成都初一美学空间设计
-
项目定位:该项目为综合性全屋定制展厅,以柜子、窗户、窗帘等为主要售卖点。整体的设计考虑以展陈为空间的依托,以画廊的形式使空间的展现出自然、有律动的宽窄变化,并利用大小、节奏与组合方式的不同,形成多种自由空间展陈形式。
-
空间意境:①独特的斜角线条营造出一种和谐的美感,元素不断重复,形成极具秩序感和仪式感的走廊,带来更多视觉美和趣味性。“抑”与“扬”的对比,用纯粹与遮蔽的方式,吸引人们的视线,诱使人们窥视空间的奥秘。
②以‘游廊为趣,浸浴为魂’。让客人在此空间中寻找真趣,体验为主,产品为辅,意境营造与产品陈列相互融合。 -
空间布局:①方圆结合,虚实镂空,平衡功能与美感,弧形线条与多元材质给空间增加了层次和趣味。
②空间设计利用量体的堆砌与分割,弱化量体厚重感。多角度的线光源包围,搭配着色彩丰富的产品展示,让空间更有趣味性。 -
设计选材:空间设计的产品都有二次售卖的考虑,让空间的设计与经营可以更好的结合。同时也更好的帮助甲方控制预算。
-
用户体验:客户反馈整体空间的功能很到位,也很便于使用。整个空间的布局细节也考虑的很到位,灯光设计灯细节也为空间增色不少,对于销售的帮助比较明显。
独特的斜角线条营造出一种和谐的美感,元素不断重复,形成极具秩序感和仪式感的走廊,带来更多视觉美和趣味性。
“抑”与“扬”的对比,用纯粹与遮蔽的方式,吸引人们的视线,诱使人们窥视空间的奥秘
步入展厅先抑后扬,映入眼帘的是红到橙的渐变窗帘艺术装置,形成了强烈的视觉冲击,丰富了空间语境。
静谧和沉思的光线从竖百叶开口洒落,精神上的沉浸并不意味着物质的贫瘠,而是在人与人、人与空间的交互感受。
方圆结合,虚实镂空,平衡功能与美感,弧形线条与多元材质给空间增加了层次和趣味。
以‘游廊为趣,浸浴为魂’。让客人在此空间中寻找真趣,体验为主,产品为辅,意境营造与产品陈列相互融合。
垂直动线的楼梯,下层利用量体的堆砌与分割,弱化量体厚重感。多角度的线光源包围,搭配着多边形的楼梯,引导动线往上延续。
步入二楼展厅以红色的灯光艺术装置串联了整个空间,通过展示不同形式的艺术玻璃门形成自然的洽谈区隔断,形成了视觉延伸感,丰富了空间语境。
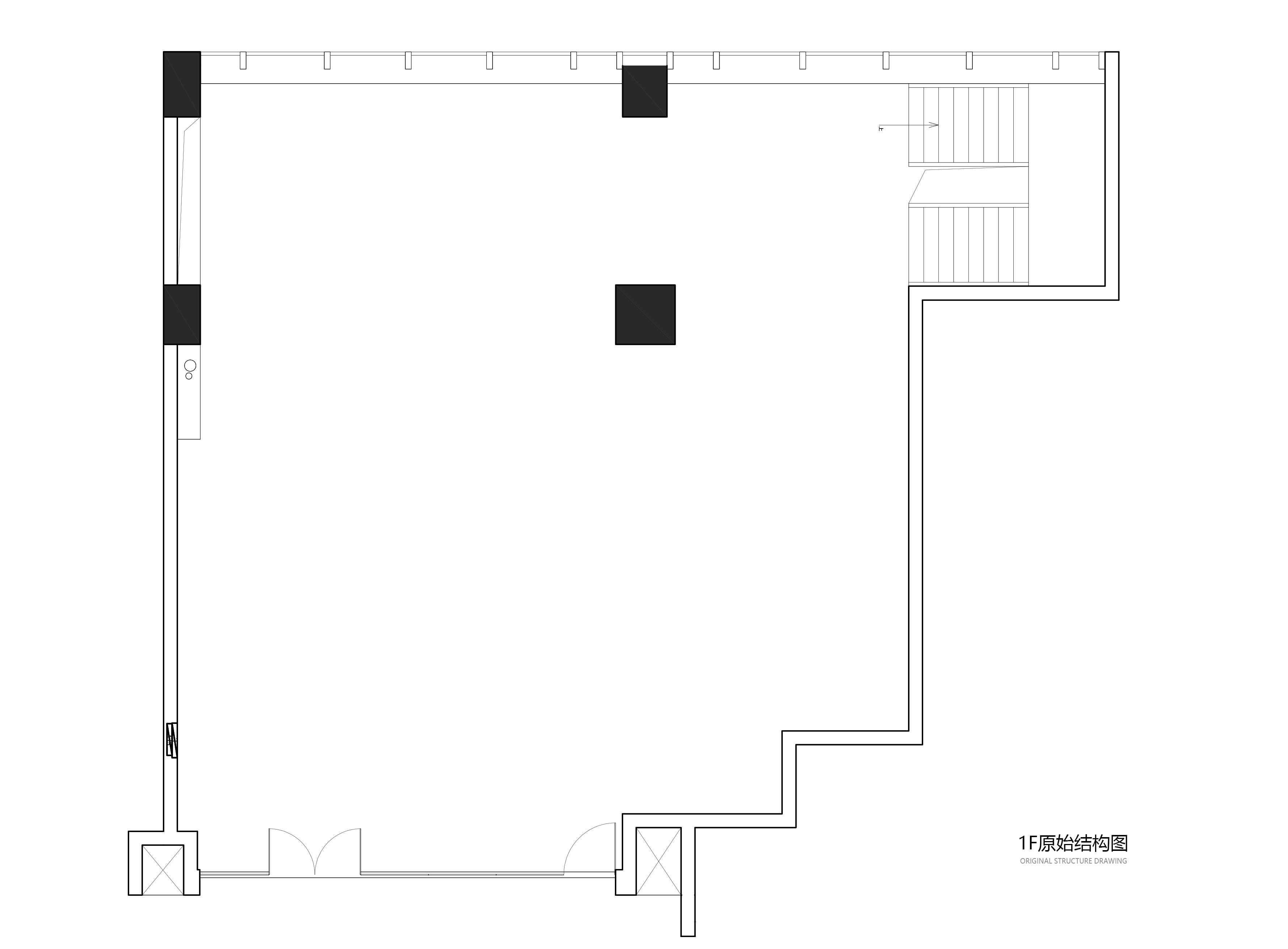
1F原始结构图
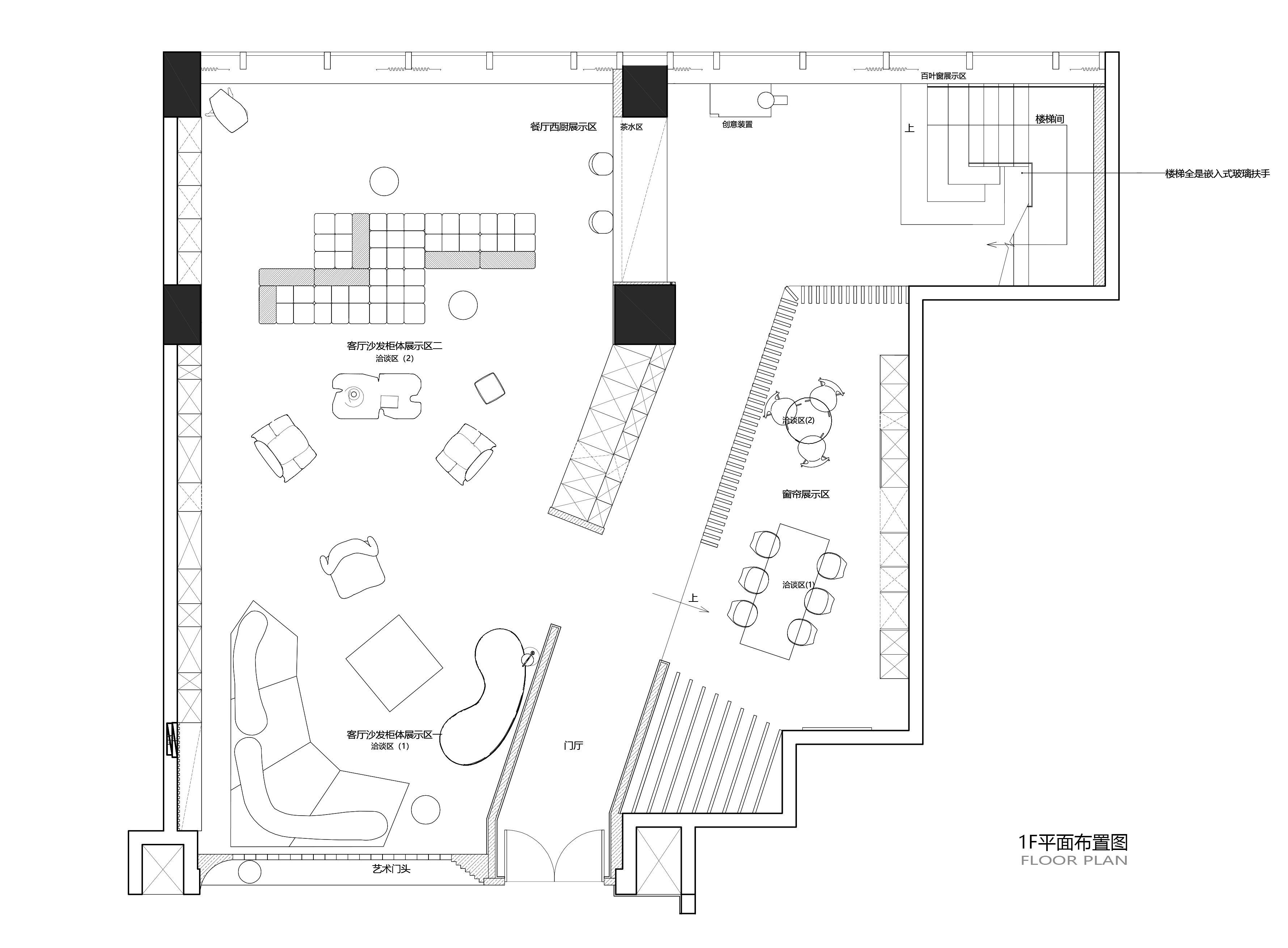
1F平面布置图
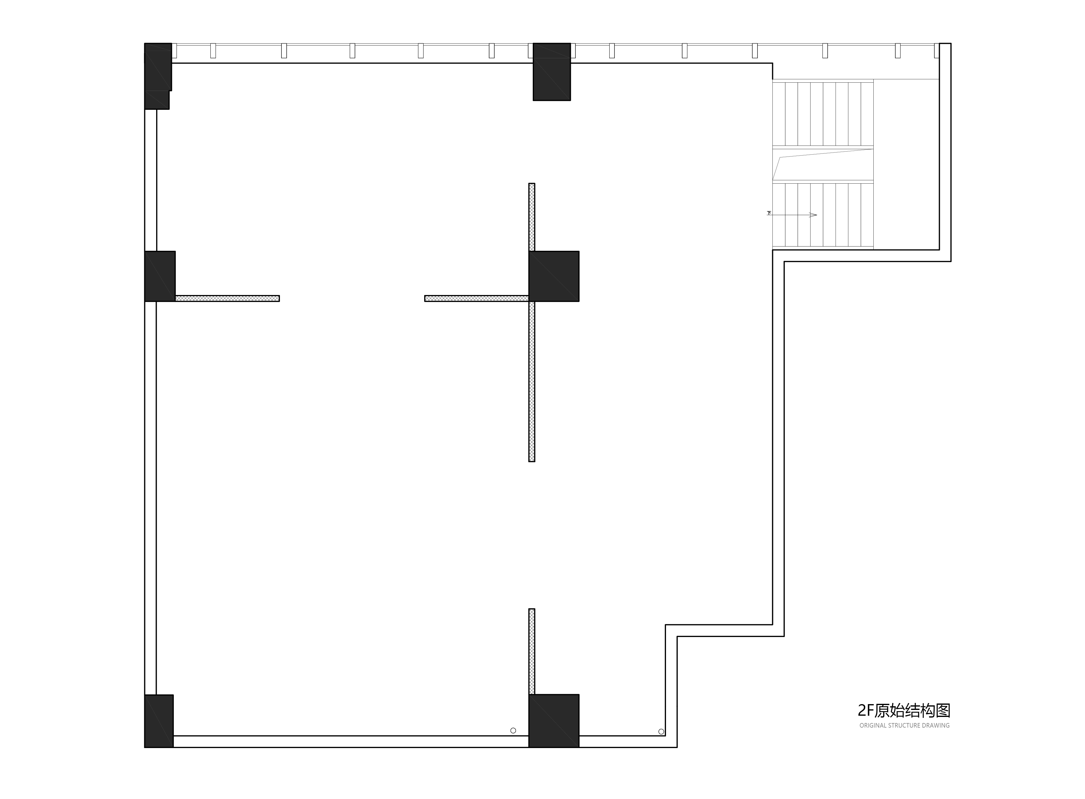
2F原始结构图
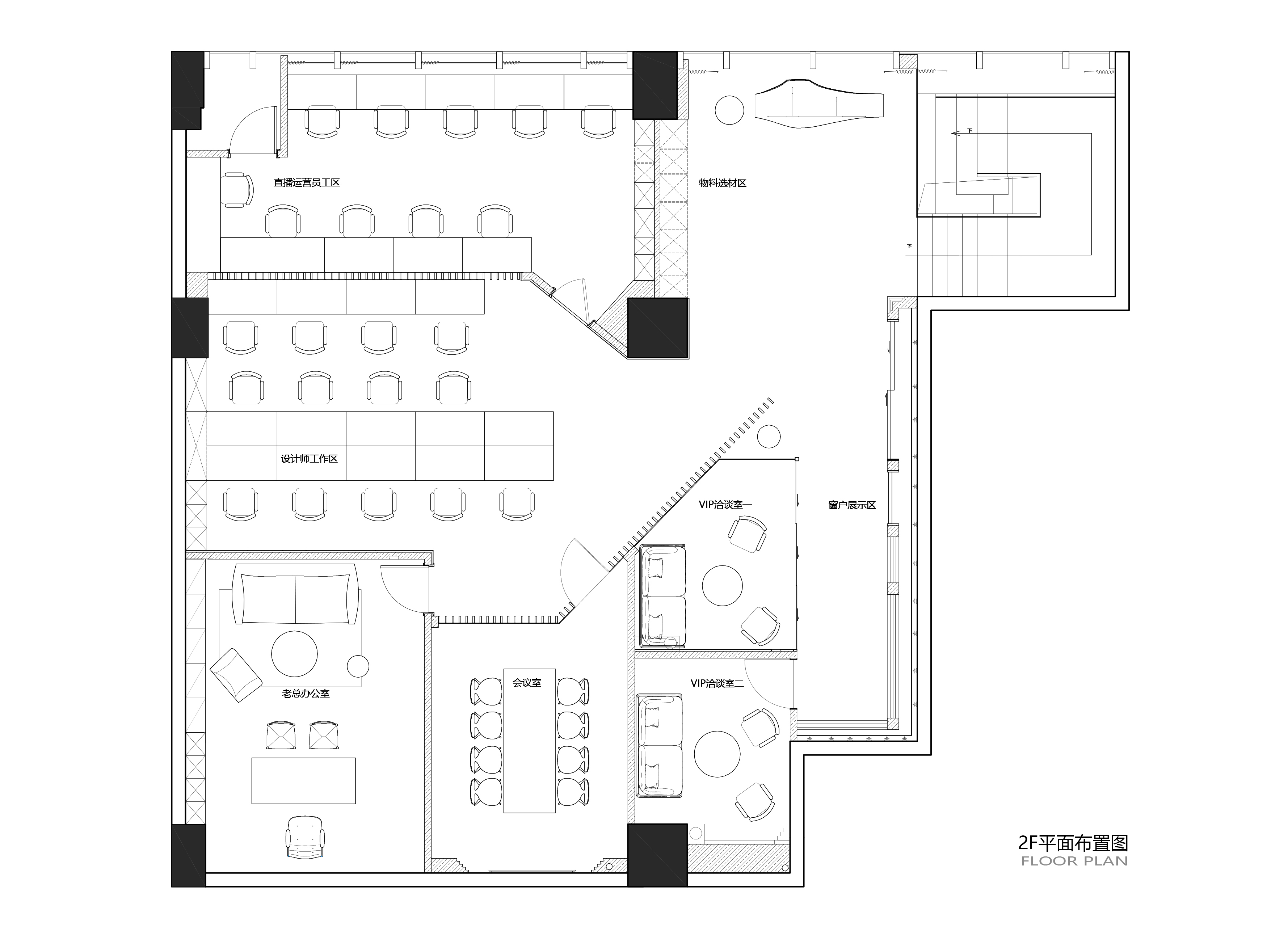
2F平面布置图
0
0

认证 · 让您身份增值