栖


作品说明
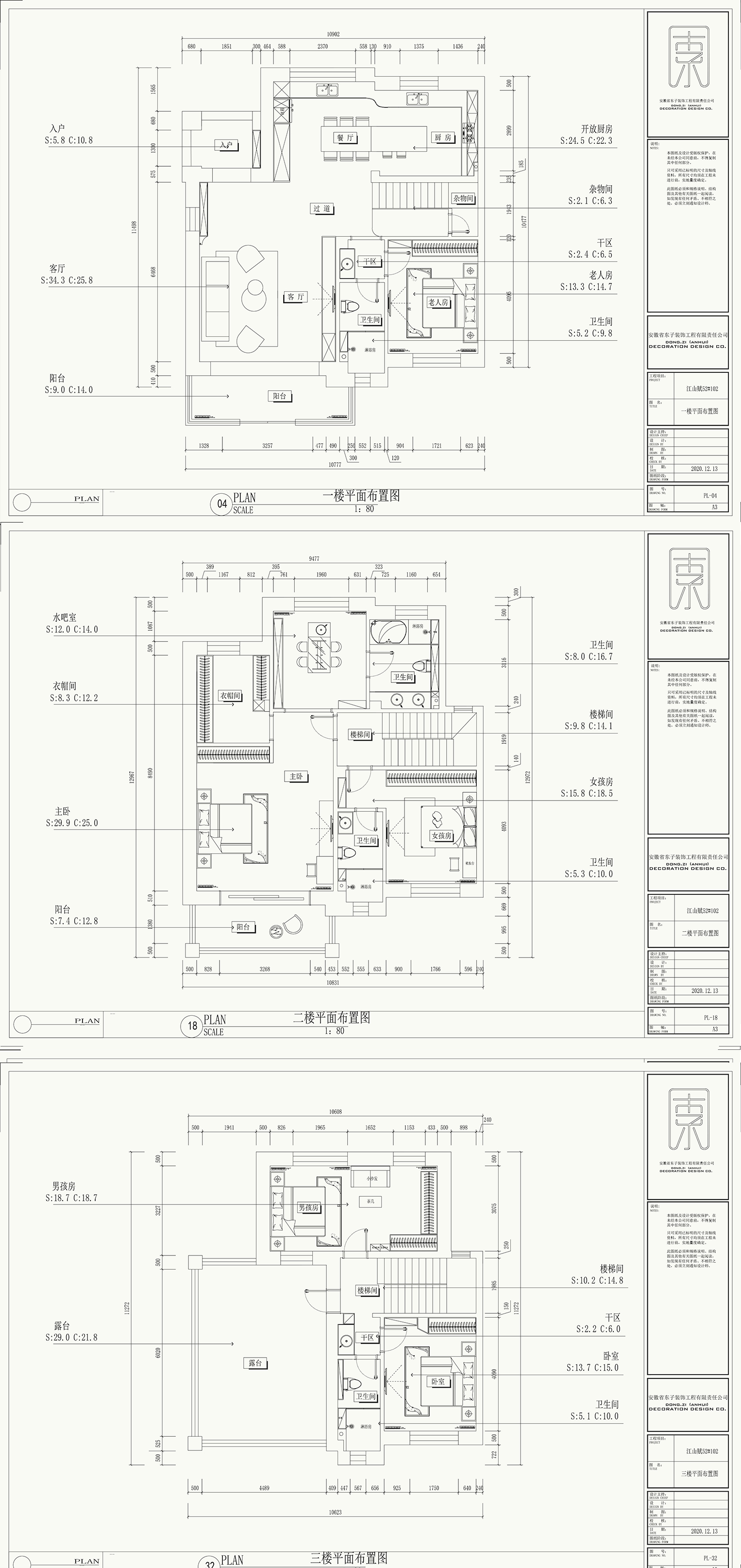
- 项目类型:别墅
- 项目地点:亳州市
- 建筑面积:260.0000㎡
- 项目造价:150.0000万元
- 竣工时间:2022-07-01
- 设计机构:东子设计事务所
-
项目定位:“栖”
是一种生活方式和状态
寻找有趣的空间灵魂是设计者的心之所趋
设计与艺术于空间而言有着永恒的魅力
让梦想照进现实
在人与空间自对话中开启一段传统与当代的浪漫诗篇 -
空间意境:生活的仪式感,是将每一件普通的小事演绎的熠熠生辉。摒弃传统的玄关,使开敞的空间形成吧台的格局,是设计师的巧思所在,创造一种归家的仪式感,告诉你:生活在这里。
-
空间布局:业主是一位95后,对居家环境与生活质感有着自己的理解和追求,更倾心简洁、艺术、现代、调性的空间。他期待的家,拒绝公式化或标准化,要体现自己的个性、品味与审美,懂得积蓄和释放,亦拥有细腻的情态与澎湃的力量。
-
设计选材:在方寸之间主张个性表达,让居住者在日常生活中倍感惬意,又能接收到源自生活的惊喜与意趣。
-
用户体验:我们不负所托,于诉求中剥茧抽丝、汲取灵感,以木色、灰白色系为主基调,配合精致且内敛的的软装和极富巧思的结构处理,最终为其设计出惬意自由且艺术审美并存的美好居所。
在工作、生活节奏越来越快的时刻,学会停下来进行独立的思考与放松,才能走得更远。

