亲密有间
581 - 项目类型:住宅公寓
- 项目地点:成都市
- 建筑面积:199.0000㎡
- 项目造价:85.0000万元
- 参与设计师:陈欢、吴丽辉
- 竣工时间:2022-05-24
- 设计机构:七间设计
-
项目定位:这是一套改善型住房,二孩家庭三代同堂,房子位于成都东湖畔,风景和视野绝佳。我们从日常生活的功能性、审美感、趣味性、互动性出发,让家这个容器,动能合家欢乐,静可自在独处。
-
空间意境:整体视觉以玛雅灰砖与暖色木饰面为基调,营造一种大气沉稳的空间情绪,少量金属材料的融入,增加一些精致的细节。通过空间的分割、比例的拿捏、材质的搭配、灯光的营造……共同构筑精致利落、温暖亲近的家庭氛围。
-
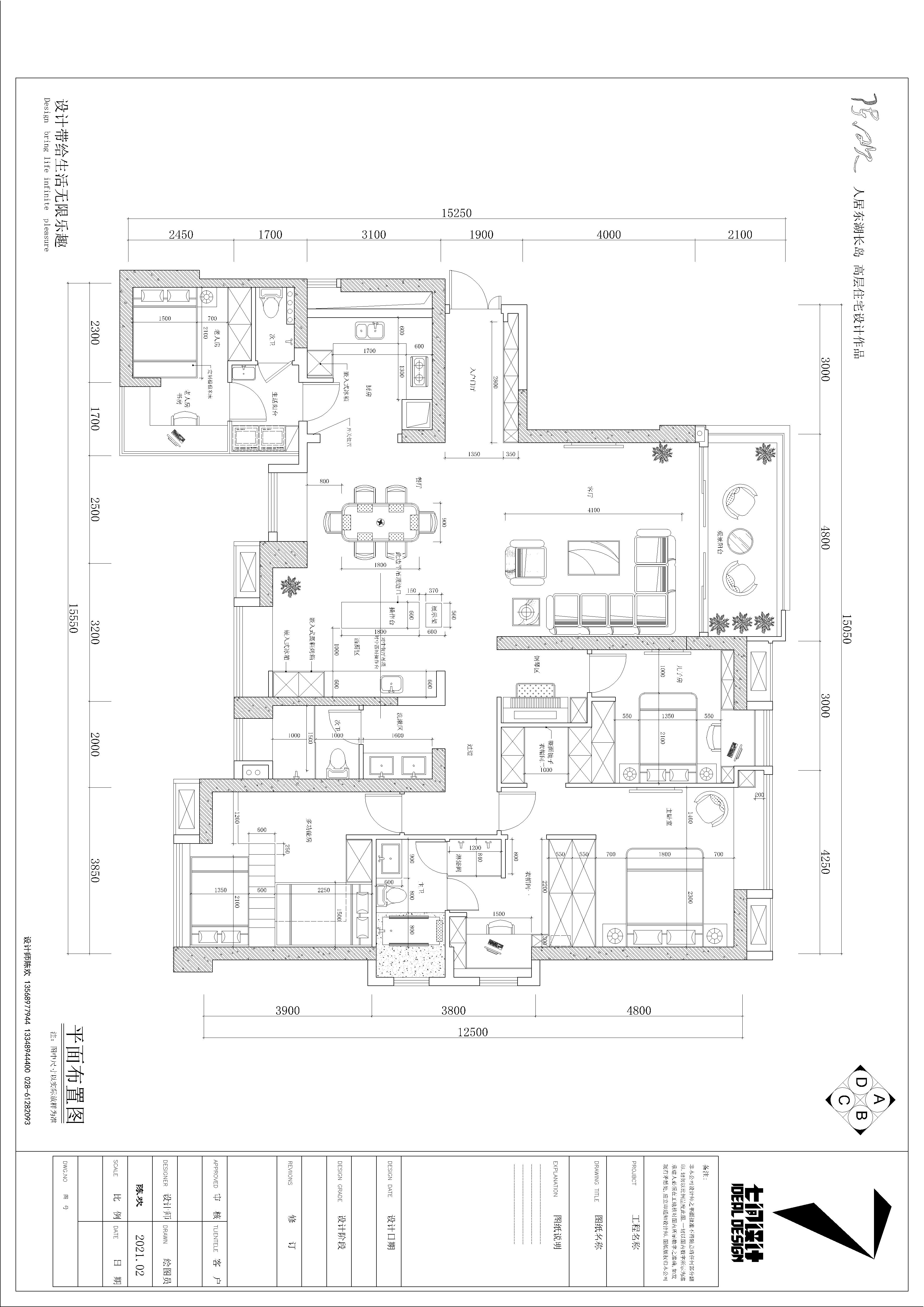
空间布局:整个公区是三代人亲密互动的核心区域,尽量展开空间,重新划分切割,赋予更多的功能以应对不同使用场景。私密空间则追随三代人的不同习惯而展开,老人套房注重安静、安全、方便;儿女房间注重童趣的同时兼顾可变性,满足不同年龄段需求;主人房则是一个兼具多重功能的复合空间。
① 打开与餐厅相邻的房间,植入西厨+吧台,分散中厨压力,让公共空间展开,尽显大宅气质;
② 客厅往阳台推移30公分,既拓宽客厅视野,又不影响保留一个与室外接触的绝佳空间;
③ 中厨拆除一面墙体,半开放的格局让这个区域与餐厅和西厨保持更紧密也更流畅的互动;
④ 分析三代人的日常生活需求,将四个卧室的尺寸格局全部做了更精准的调配与划分;
⑤ 将主卫和紧邻的卫生间合并,主卧得到两个衣帽间和一整排衣柜,满足储存需求;
⑥ 临儿童房的过道优化整合,将一直珍藏的钢琴安置于此,同时也让过道不再乏味。 -
设计选材:本案试图通过精简的选材来控制成本并创造高品质的空间,在硬装上仅用了瓷砖、木饰面、乳胶漆来构建主体,让形式服务于功能,不做任何多余造型。少量金属材料的融入,增加一些精致的细节。
-
用户体验:入住之后,业主拍摄了很长一条视频表达了对新家的喜爱和对设计师的感谢,我们采访了全家人对新家的使用体验。业主夫妇表示,整个设计解决了他们二孩家庭三代同堂人口众多的各项功能需求,同时也给他们的居家生活方式提供了丰富多彩的可能性,既可以包容油盐酱醋柴米茶的日常,也容得下书画琴棋诗酒花的乐趣。
整个公区是三代人亲密互动的核心区域,因此尽量展开空间,重新划分切割,赋予更多的功能以应对不同使用场景。
整体视觉以玛雅灰砖与暖色木饰面为基调,营造一种大气沉稳的空间情绪,少量金属材料的融入,增加一些精致的细节。
空间的分割、比例的拿捏、材质的搭配、灯光的营造……共同构筑精致利落、温暖亲近的家庭氛围。
踢脚线灯、LED洗墙灯、防眩射灯、T5灯带、装饰壁灯……夜幕降临,室内的灯光跟随场景和心情自由切换。
经过重新调整比例尺度后的客厅,更具有大宅的气质。
中厨、餐厅、吧台、西厨有序排列,给一日三餐带来多层级的使用体验。
自然光透过百叶窗帘带来变化和惊喜,让室内空间在不同时段感受到不同的色调氛围。
不同灯光氛围的切换应对着不同的使用场景。
半开放的格局让中厨与餐厅和西厨保持更紧密也更流畅的互动。
专属定制的金属酒架给空间与空间之间一种似是而非的隔断,无形中界定与调和空间的尺寸比例。
阳台上,高低错落的绿植和绣球在米灰色水泥盆中肆意生长,东湖的美景与城市的繁华尽收眼底。
略长的过道被钢琴区打破,这台跟随了业主多年的钢琴在新的房子里重新焕发活力,致来时弹奏一曲,温暖又治愈。
卫生间进行干湿分区并配置双台盆,极大地提升使用的便利性和舒适度。
家里的四间卧室均做了拆改,更精准地划分每一个空间的尺度。
主卧室为套房设计,温润的木饰面搭配3000K的氛围光,让休息空间更具舒适性与包裹感。
一贯延续的深色系基调,转场至儿童房,则变得明亮且富有童趣。
女儿房利用飘窗台做了高低床设计,将更多活动空间留出来。
墙面用磁吸白板漆进行处理,为孩子的天马行空提供更合适的用武之地。
孩子的空间不但要适应当下,更要包容不同年龄阶段的需求,随着孩子一起成长。
儿子房的飘窗同样不浪费,书桌+书柜给他创造出专属的学习领地。
原始户型图
平面设计图
0
0

认证 · 让您身份增值