解构主义 | 静谧之家,沉浸本真


作品说明
- 项目类型:住宅公寓
- 项目地点:阜阳市
- 建筑面积:154.0000㎡
- 项目造价:82.0000万元
- 参与设计师:程强 郭鹏涛 王馨悦 左一凡
- 竣工时间:2022-06-06
- 设计机构:大點長樂设计 大点文化艺术
-
项目定位:“时间会筛掉繁杂的装饰,简洁与自然是设计的最终归宿。”
-
空间意境:本案为意式简约风格的家装空间设计,意式极简以简单到极致为追求,整洁无杂乱的外观所呈现的质感非常令人舒适,摒弃复杂的形式,干净、纯粹,有一种恰到好处的高级感。
-
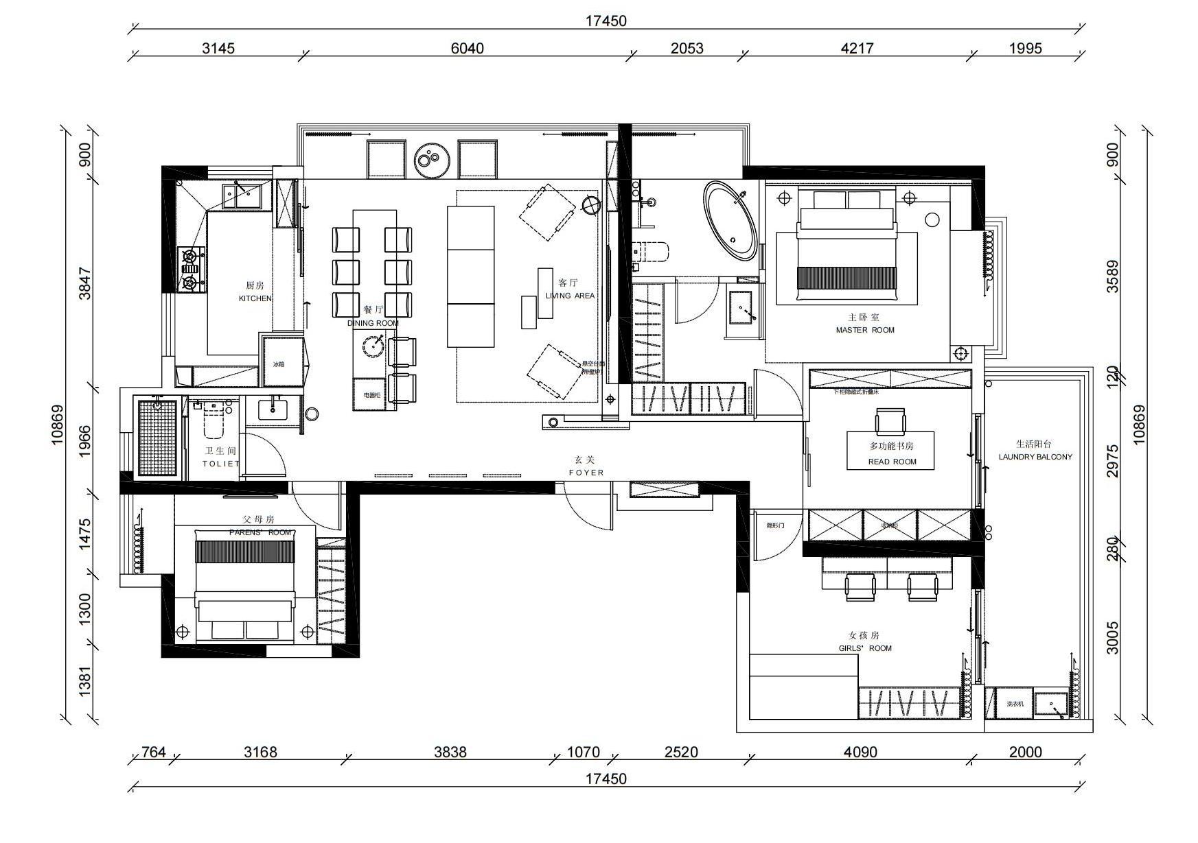
空间布局:此户型有些特色,客餐厅在一入门 同时有贯穿客餐厅的观景飘窗,南阳台在书房尽头,连通儿童房,空间尽可能优化了主动线, 书房成为静区中心,同时双面为移门 打开阳台与客餐厅的视觉景深,日常使用也更方便。老年房紧连公卫,适老化同时也更方便。
-
设计选材:所有卧室均使用了艺术肌理涂料,同时柜体选用了原木皮加二次木柜体环保低碳。
-
用户体验:全屋智能与一些感应配件 使用非常方便,之前全家不太注重喝水 补水 ,设计师全屋4处直饮系统(水吧 茶水柜 书房 厨房)改善了平时不注重喝水的坏习惯。

