三生有幸
1021
作品说明
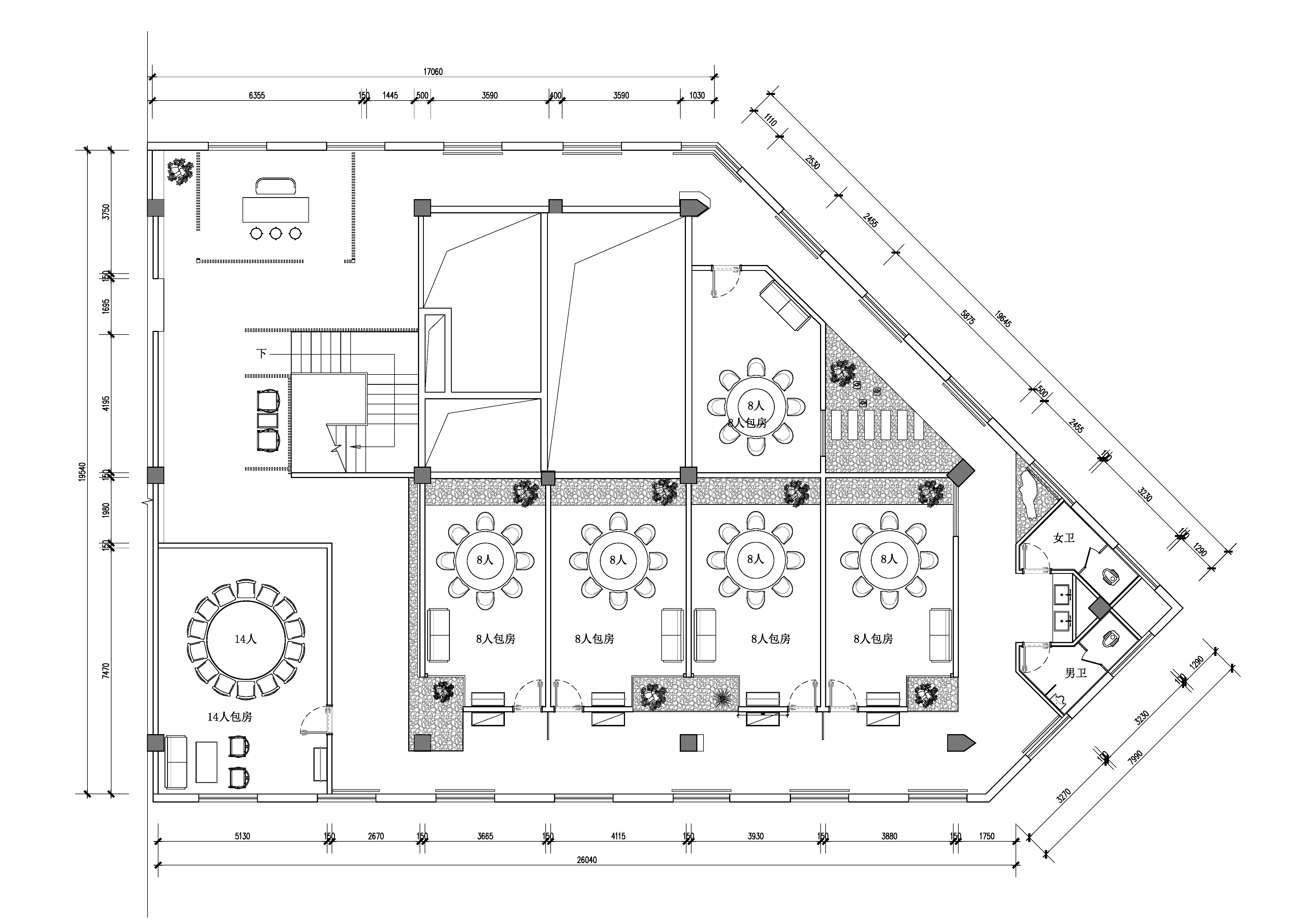
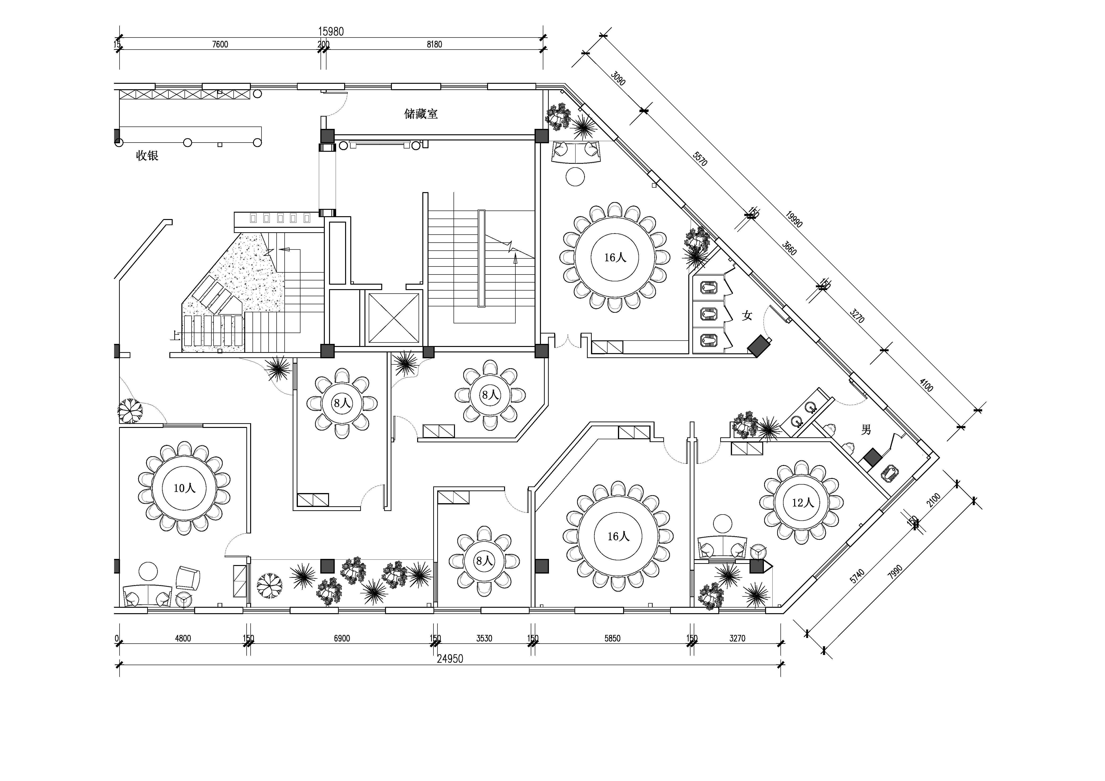
- 项目类型:餐饮
- 项目地点:周口市
- 建筑面积:1200㎡
- 项目造价:3200000万元
- 参与设计师:程远坤 徐鹏飞
- 竣工时间:2020-08-08
- 设计机构:河南牧之设计装饰工程有限公司
-
项目定位:在节奏越来越快的今天,人们越来越需要释放压抑的心境,空间恰好提供了一个涤荡身心疲惫的场所。
-
空间意境:设计师不满足于空间的纯功能需要,试图借助光影、色调、布局等,将艺术注入空间,使其成为品味的栖息地、精神的避难所。
-
空间布局:艺术从正襟危坐的神圣殿堂走进大众消费的场所,这确实是一种先锋性质的实验。
-
设计选材:多元化的材料融合层次、秩序、情调,强化空间的氛围感。
-
用户体验:展示着迥异于传统的艺术谱系,共同构筑起一个都市的异质文化空间。
0
0

认证 · 让您身份增值