香港路10号



作品说明
- 项目类型:办公
- 项目地点:天津市
- 建筑面积:600.0000㎡
- 项目造价:600.0000万元
- 主案设计师: 曲鹏远
- 参与设计师:曲鹏远
- 竣工时间:2021-11-07
- 设计机构:沐尚曲鹏远空间设计事务所
-
项目定位:坐落于天津洋楼建筑群五大道上的一所独栋别墅,在这里可以俯视不同风貌的建筑群。风格定位为现代中式与中古家具的融合,沉稳雅致,空间动线上行云流水。
-
空间意境:设计师对整体建筑内部空间从美观和功能角度重新规划布局,逐一楼层进行合理重塑,更大的空间更优的视角顺势而出,还为共享的大挑空带来满满的仪式感。
-
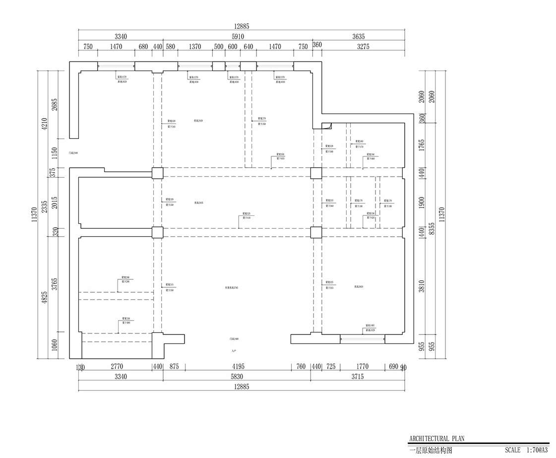
空间布局:设计过程中首要考虑了入户门的位置,从西南角改到了南侧(一层中间),因此共享空间顺势而出,入户共享的大挑空带来满满的仪式感。
-
设计选材:轻装修重装饰,整个方案采用节能产品和绿色材料,利用合理的设计把自然风、景观和采光巧妙的引入空间。
-
用户体验:原建筑是没有电梯的,四层楼的高度让业主对楼梯望而却步,设计师暖心的设计了电梯的位置,竣工后业主爆赞。
坐落于天津洋楼建筑群五大道上的一所独栋别墅,在这里可以俯视不同风貌的建筑群。本
案的业主是一位实现财务自由的成功人士,对五大道有独特的情怀。整体空间重新做了布局规划,为每层合理的梳理出各个功能空间。
设计过程中首要考虑了入户门的位置,从西南角改到了南侧(一层中间),因此共享空间顺势而出。入户共享的大挑空带来满满的仪式感。
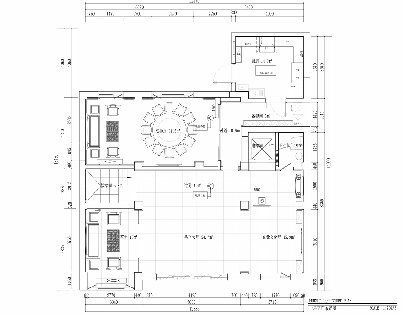
一层主要用于接待朋友,配有企业文化展厅和茶室,交谈品茶之余了解公司优秀文化。
北侧为宴会厅,窗外即是庭院小景,品尝美食的同时欣赏窗外惬意的景色。
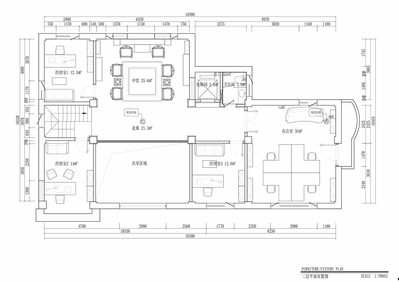
二层为办公区,配有中堂各部门经理办公室,中堂的设置,满足了工作区接待的功能,也使得空间气场沉稳,雅致。
会议室软膜天花吊顶搭配实木家具,整个空间显得沉稳大气又不会感觉到压抑。
又分为办公区和接待区,再加上整屋的古典中式红木家具,使的空间气场沉稳而有力
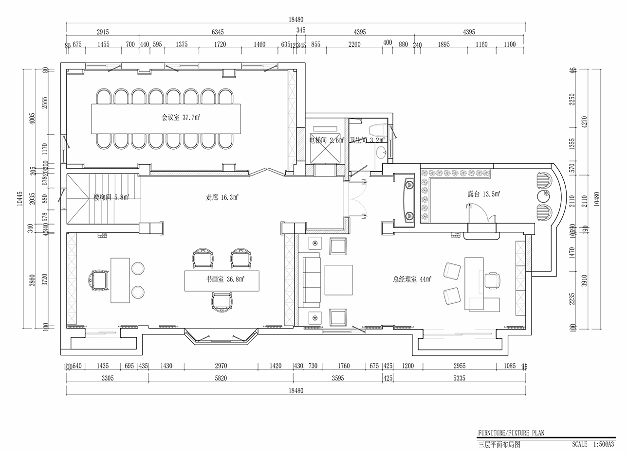
三层专为领导办公设计,走出电梯,左侧就是总经理办公,右侧是会客区。
总经理室空间大小得当,套有独立卫生间。
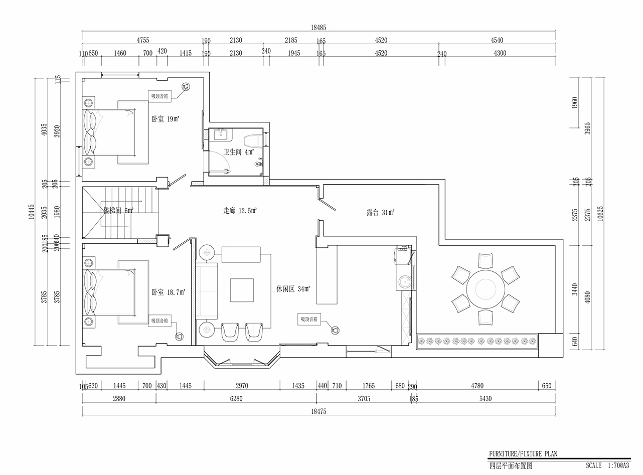
四层主要设计了水吧休闲区,保留了阁楼顶面的坡屋脊结构,利用建筑结构活跃空间的氛围。工作之余,约上同时点几杯饮品,闲谈叙事,无一不是最好的解压方式。
计师对整体建筑内部空间从美观和功能角度重新规划布局,逐一楼层进行合理重塑,更大的空间更优的视角顺势而出,还为共享的大挑空带来满满的仪式感,箱式电梯彻底碾碎了业主对爬楼的无奈,本案获得了业主及友人到业主的一致爆赞。
一层原始平面图
一层平面布局图
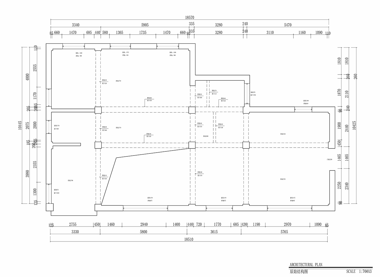
二层原始平面图
二层平面布局图
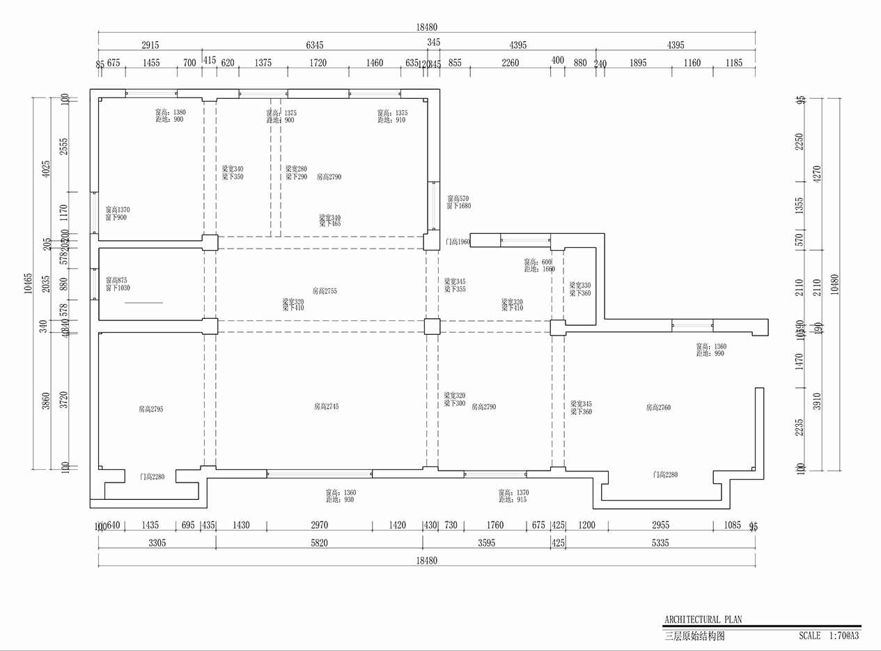
三层原始平面图
三层平面布局图
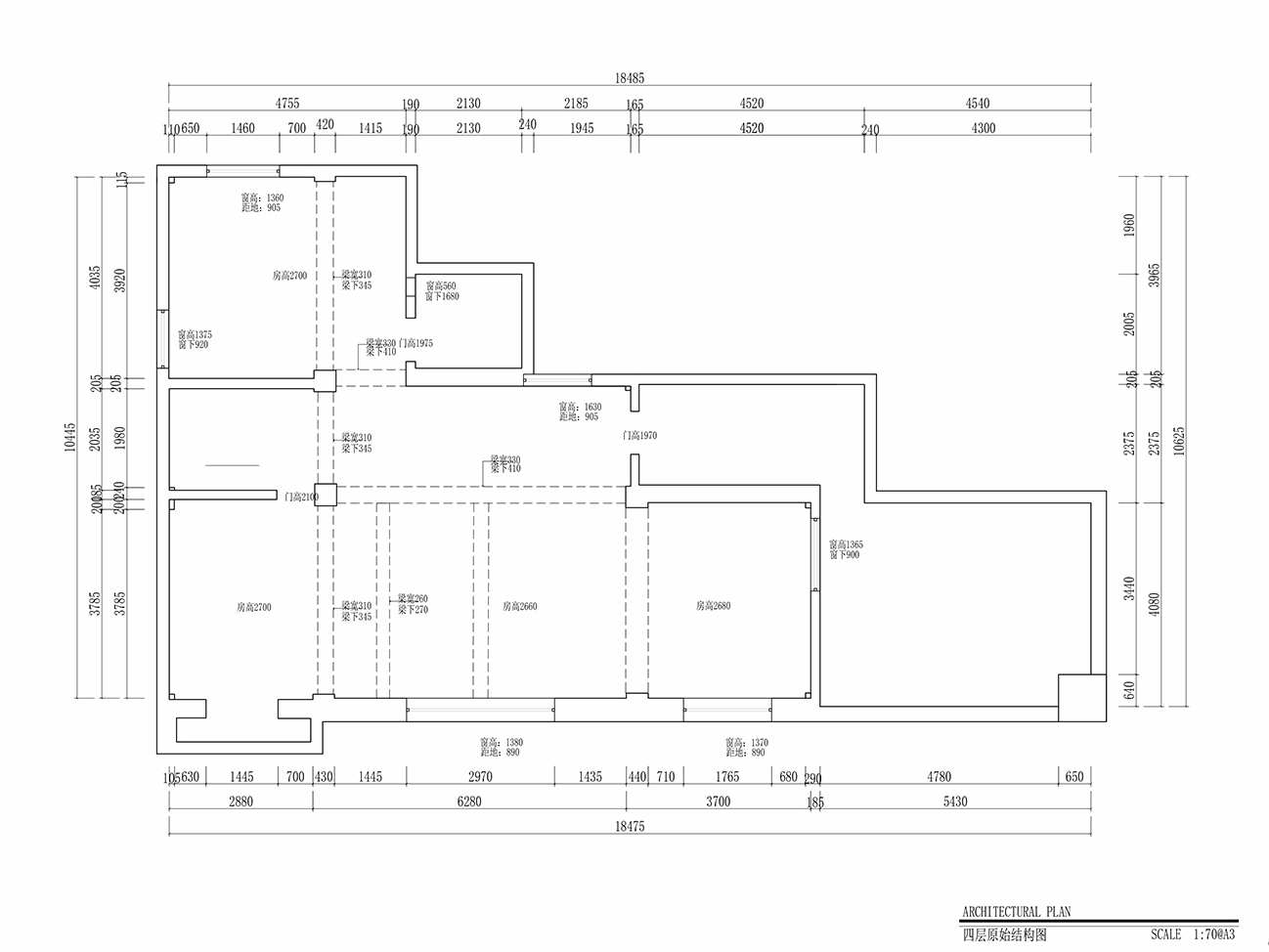
四层原始平面图
四层平面布局图

