乐普医疗银川展厅



作品说明
- 项目类型:公共
- 项目地点:银川市
- 建筑面积:200.0000㎡
- 项目造价:36.0000万元
- 主案设计师: 唐凡琦
- 竣工时间:2021-03-15
- 设计机构:宁夏熹择设计工程有限公司
-
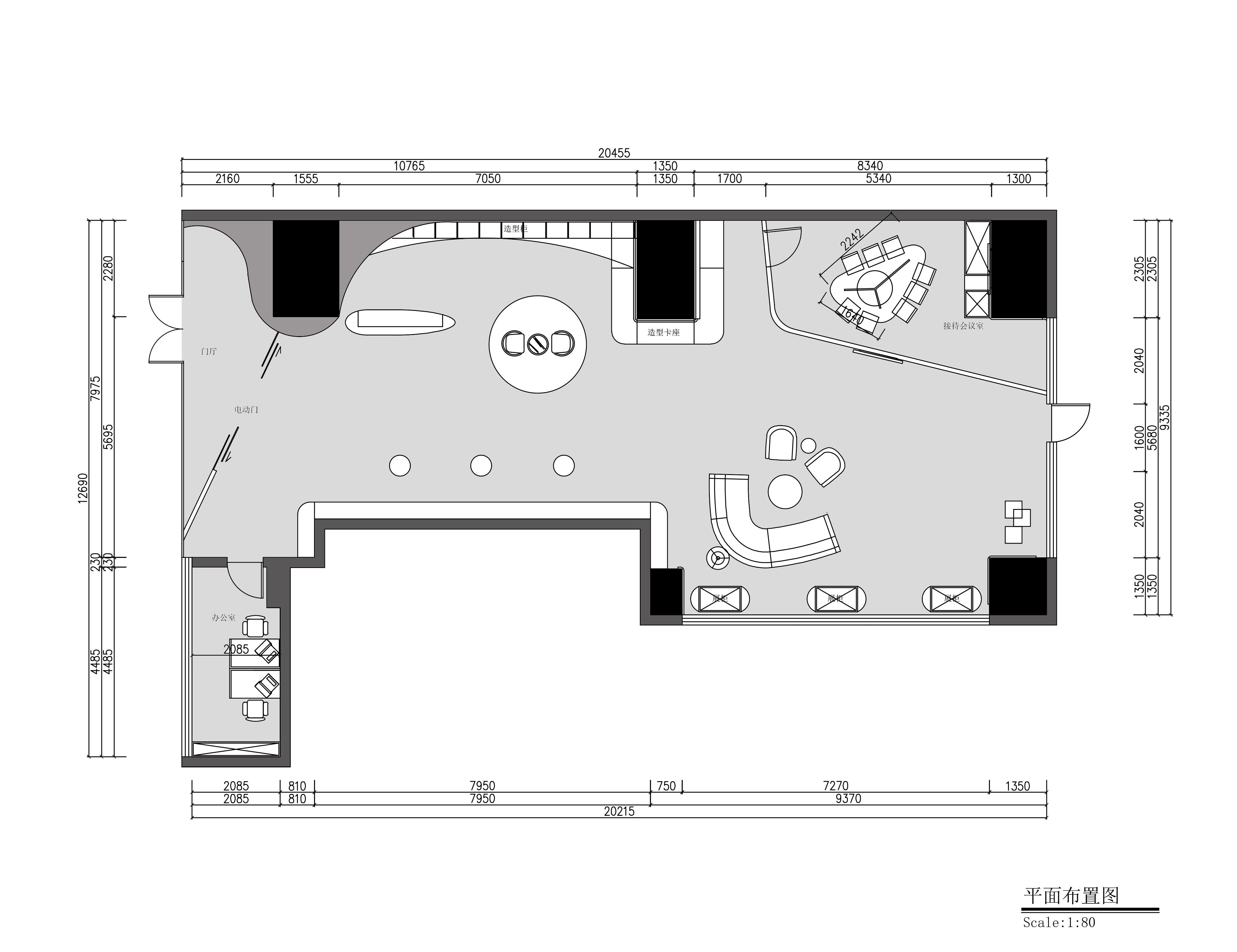
项目定位:此店为乐普医疗银川网络医院的旗舰店,走入电动门,入眼便是明亮柔和的蓝与白。象征着科技与白月光为主色调,让体验者即刻被曲线的温柔私密般的环抱。
-
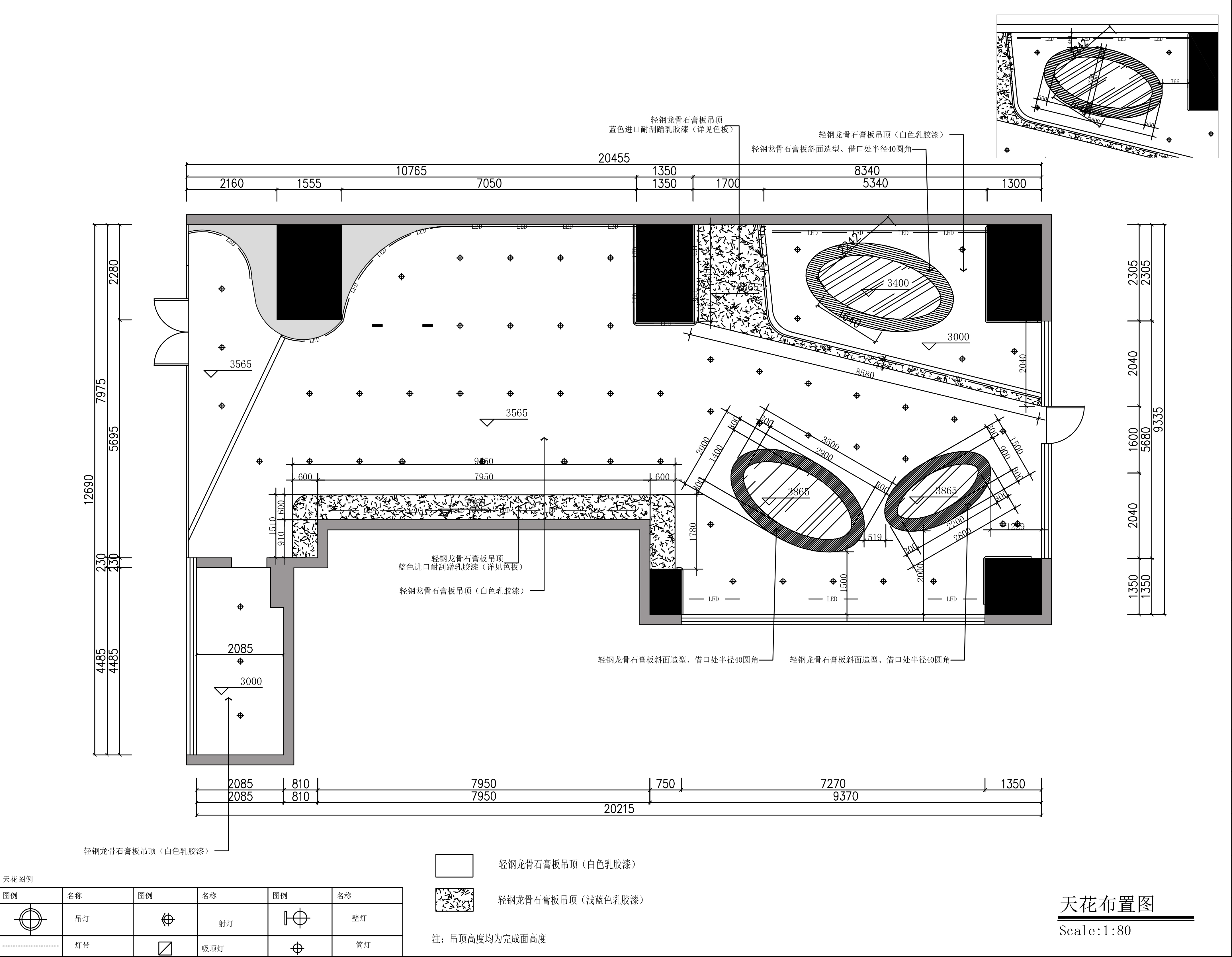
空间意境:暖色与冷色互相中和,不同材质发生对话,丰富了空间的层次感。通过视角的变换以及不同弧形,渐变元素的应用,椭圆环状装置软膜天花的灯光通过逐渐漫反射柔和的似天光,又像心灵的湖泊。
-
空间布局:平静且治愈。达到虚化过度,明亮柔和干净,强调主题的变化性和和谐感。因为墙面和顶面的分界线是模糊的,内外连接之处和深度的重要性从连续的弧形而得以体现。
-
设计选材:
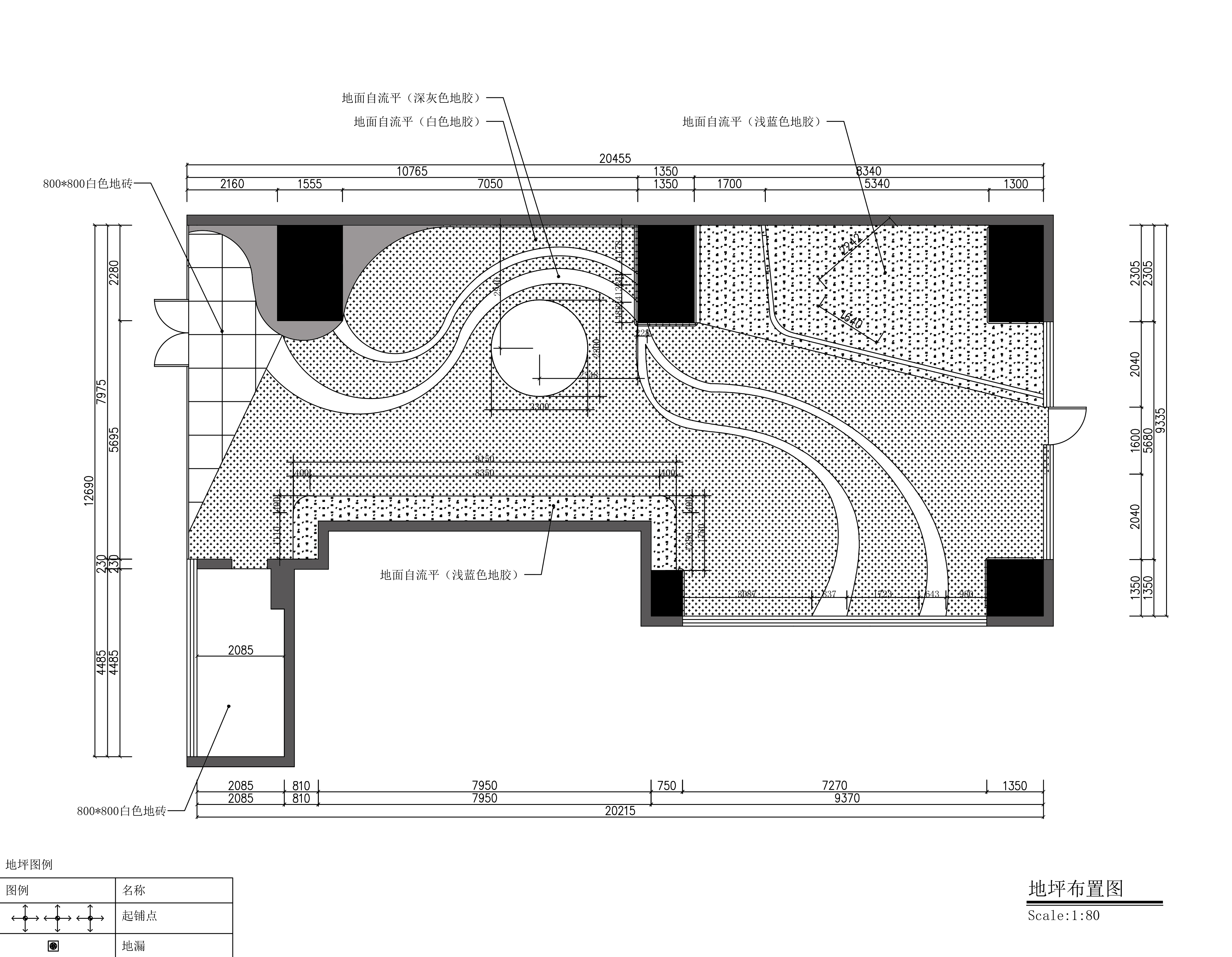
多处采用了自然木色作为基调,融入周边自然环境。为了反应医疗空间的柔和色彩元素应用的、白色的大块面水磨石纹理地胶偏爱自然材质的现代时尚审美,设计强化了内部平坦与空白的空间。 -
用户体验:空间的灵活性很强,软装进行调整后就可以多功能的使用大厅空间。此门店在众多互联网医院中,最为温馨柔和。很吸引人。
此店为乐普医疗银川网络医院的旗舰店,走入电动门,入眼便是明亮柔和的蓝与白。象征着科技与白月光为主色调,让体验者即刻被曲线的温柔私密般的环抱。
暖色与冷色互相中和,不同材质发生对话,丰富了空间的层次感。通过视角的变换以及不同弧形,渐变元素的应用,椭圆环状装置软膜天花的灯光通过逐渐漫反射柔和的似天光,又像心灵的湖泊。
平静且治愈。达到虚化过度,明亮柔和干净,强调主题的变化性和和谐感。
因为墙面和顶面的分界线是模糊的,内外连接之处和深度的重要性从连续的弧形而得以体现。
多处采用了自然木色作为基调,融入周边自然环境。为了反应医疗空间的柔和色彩元素应用的、白色的大块面水磨石纹理地胶偏爱自然材质的现代时尚审美,设计强化了内部平坦与空白的空间。
独立的诊室内是如家一般温馨的色调,查体用的床做在墙上是一个莫非床,打破医疗空间的刻板印象,做到轻松的诊疗环境。
原始平面图,一面临街一面写字楼内部通道。
平面布置图,西北考虑防风做了门厅
天花布置图,顶面多用软膜天花,造型宛如湖泊。光线柔和。
地面铺装布置图,地面平坦曲线环绕宛如拥抱着功能区

