广州美林天地


作品说明
- 项目类型:零售
- 项目地点:广州市
- 建筑面积:80000.0000㎡
- 项目造价:27000.0000万元
- 竣工时间:2020-01-01
- 设计机构:GLC
-
项目定位:
广州东是一块沃土,在地图上从“小蛮腰”广州塔画一条直线往东,到三溪地铁站停下来,那里蕴藏着新力量。美林M·LIVE天地以“家庭一站式休闲购物中心”为定位,在此区域构建了大体量的商业综合体,填补了地标MALL缺失的空白。
-
空间意境:
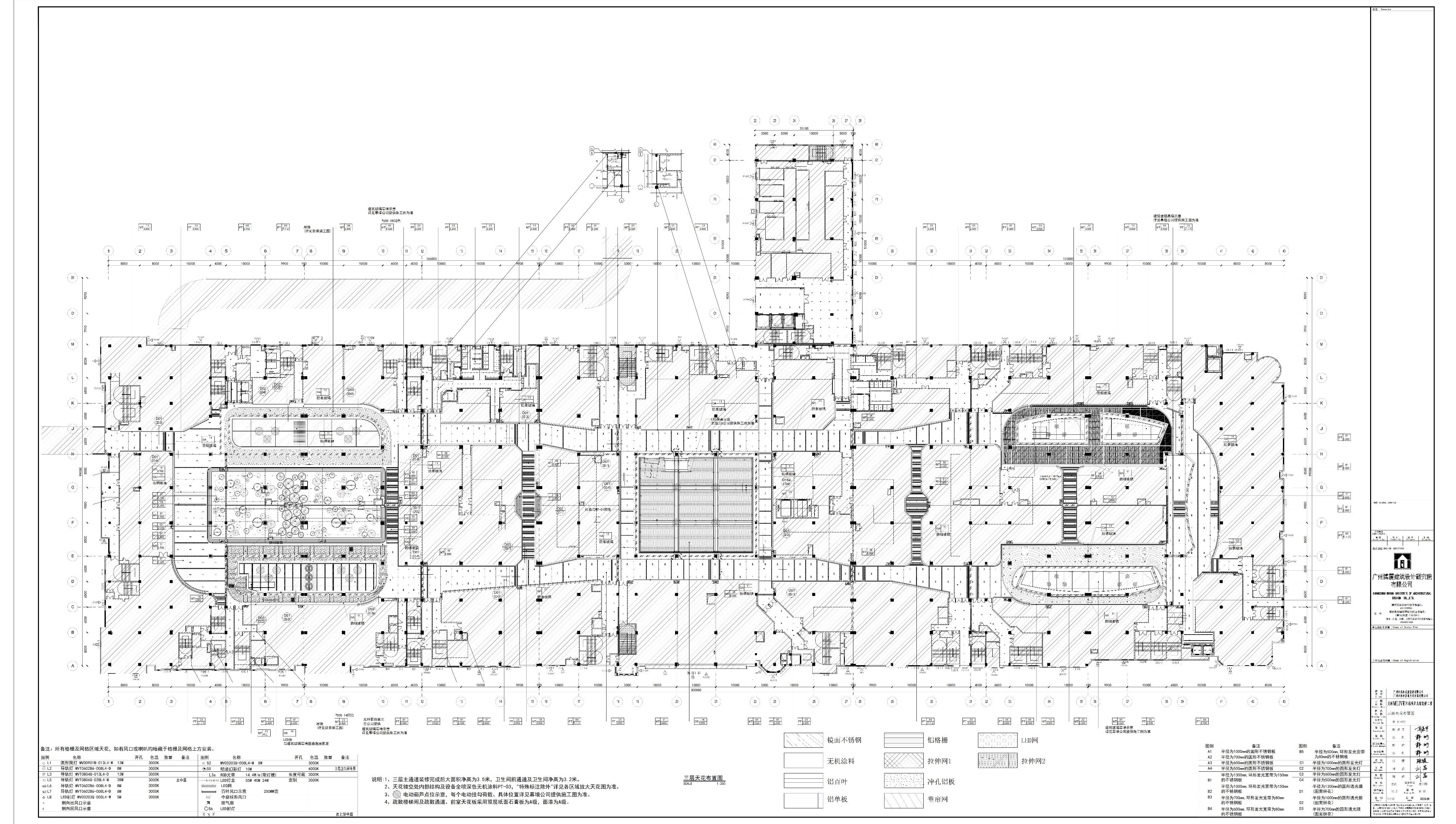
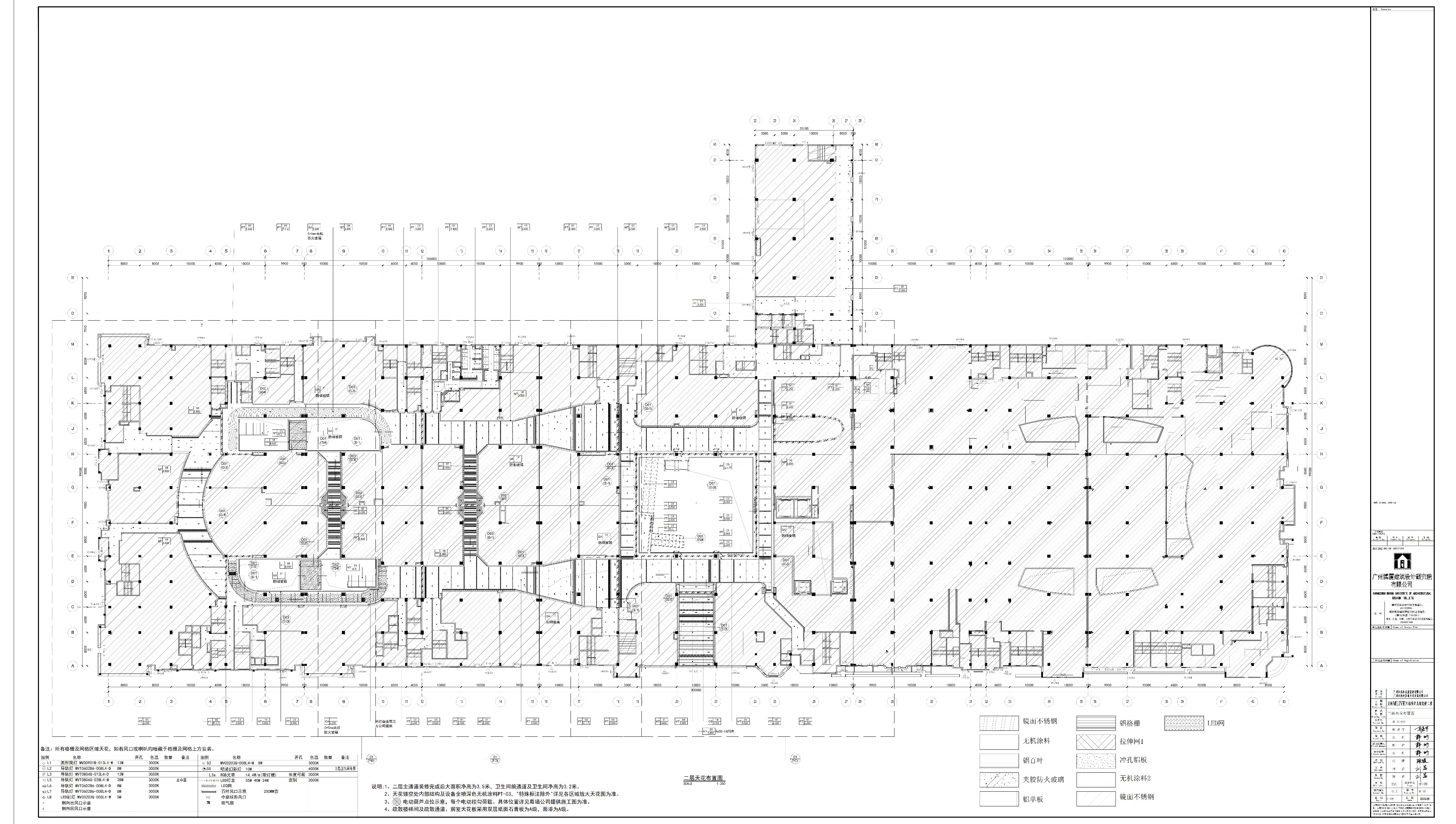
广州东是一块沃土,在地图上从“小蛮腰”广州塔画一条直线往东,到三溪地铁站停下来,那里蕴藏着新力量。美林M·LIVE天地以“家庭一站式休闲购物中心”为定位,在此区域构建了大体量的商业综合体,填补了地标MALL缺失的空白。内部空间色彩主导空间组织,战略品牌与之相称。MALL的主体空间要对中庭的枢纽作用进行视觉集中,以扶梯和区域形成的不同颜色分布,用色彩饱和度极高的进口卡布隆突出扶梯立面,形成心智标示,引导消费者产生空间记忆和坐标。不同颜色区域的天花板更是对应着不同的主题设计。
主中庭形成的缤纷烟火结构造型,旋转的点状造型在商业中心里难得一见,设计师突破了想象的界限,以更具艺术表现力、装置艺术般的构造在主中庭确立了视野重心,半围合彩片通透而富有秩序,形成弧面的螺旋上升,直通天花,缤纷多彩中散发着360度的光感,与SKYLINE顶面的玻璃和阳光形成绝妙搭配,彩色斑点洋溢在整个空间,随着时间不同变幻出不同的空间光线。
-
空间布局:国内首例购物MALL与宜家的结合。宜家的商业模式有着其固化的优势和独特的体验感,线性和垂类突出的内部空间是宜家的建筑特性,仅仅把宜家当做一个超级体量的主力店来考虑,是绝对不够的。与MALL之间的融合,关键在于出入口的设置,GLC将重要的流量“阀门”放在主中庭的一侧,形成与主购物空间的互动,这几乎是宜家从来没有过的尝试,也是新业态带来的创新动线规划。以整个项目的动线设计为视角,能看到人群的有效分布依旧遵循着经典商业业态的哑铃状,主力店分布在两端。从城市交通动线来看,人从西侧来,预留了很多位置在西侧给其他主力店,宜家放在了项目的东侧,方便消费者从西中庭进门后就可以享受凉爽,往主中庭走,不错过任何亮点。
-
设计选材:对外主干道的立面中整合了长度将近一两百米的led组,将形成酷炫的灯光效果,结合顶部老建筑所固有的轮廓线风情,晚上的美林M·LIVE天地会带来具有冲击力的视觉感官。扶梯和区域形成的不同颜色分布,用色彩饱和度极高的进口卡布隆突出扶梯立面,形成心智标示,引导消费者产生空间记忆和坐标。
-
用户体验:美林一期投入使用后,今年元旦项目客流突破38.6万, 销售总额达1740万, 刷新历史记录

