招商·雍景湾
113
作品说明
- 项目类型:别墅
- 项目地点:沈阳市
- 建筑面积:500㎡
- 项目造价:2000000万元
- 主案设计师: 赵岩
- 参与设计师:赵岩
- 竣工时间:2021-11-15
- 设计机构:赵岩设计研究室
-
项目定位:
为了让业主更多地体会到回家的仪式感,设计师在玄关的设计上不会从心理上给业主造成压抑感。在照明方面,设计师采用暖黄色的LED灯带和磁吸轨道灯,使门厅照明充足。
客厅作为室内空间中业主待人接客与休闲娱乐的重要场所,具有容纳全部家庭成员、彰显业主个性、营造整体空间氛围的作用。在设计客厅时,家庭成员的数量、访客量以及业主的个人喜好是设计师需要考虑的重要因素。在客厅的色彩方面,此次设计使用灰白色乳胶漆作为客厅空间的背景色。纯净的白色空间、温暖的原木色定制柜体、灰色沙发,为客厅整体定下了柔和而温馨的氛围基调。对面单人沙发使用饱和度高的克莱因蓝色点缀空间,米灰色地毯加上黑色的透明茶几,使整体空间氛围较为沉静。从深灰到浅灰,同色系不同明度色彩的过渡以及不同色系色彩之间的碰撞,使空间的层次更加丰富。在材质方面,石材的电视背景墙与圆弧造型电视柜给人以随性的亲近感,布艺沙发与柔软的毛绒地毯充满棉麻材质的温暖感、慵懒感,搭配独特设计的沙发背景墙,沙发背景墙由上边柜子与下边石膏板在背景墙中间做出圆弧造型,造型内暗藏虚光灯带,增加柔和之美,电视背景墙为悬空式背景墙,石膏板做圆弧造型, 与沙发背景墙相呼应。
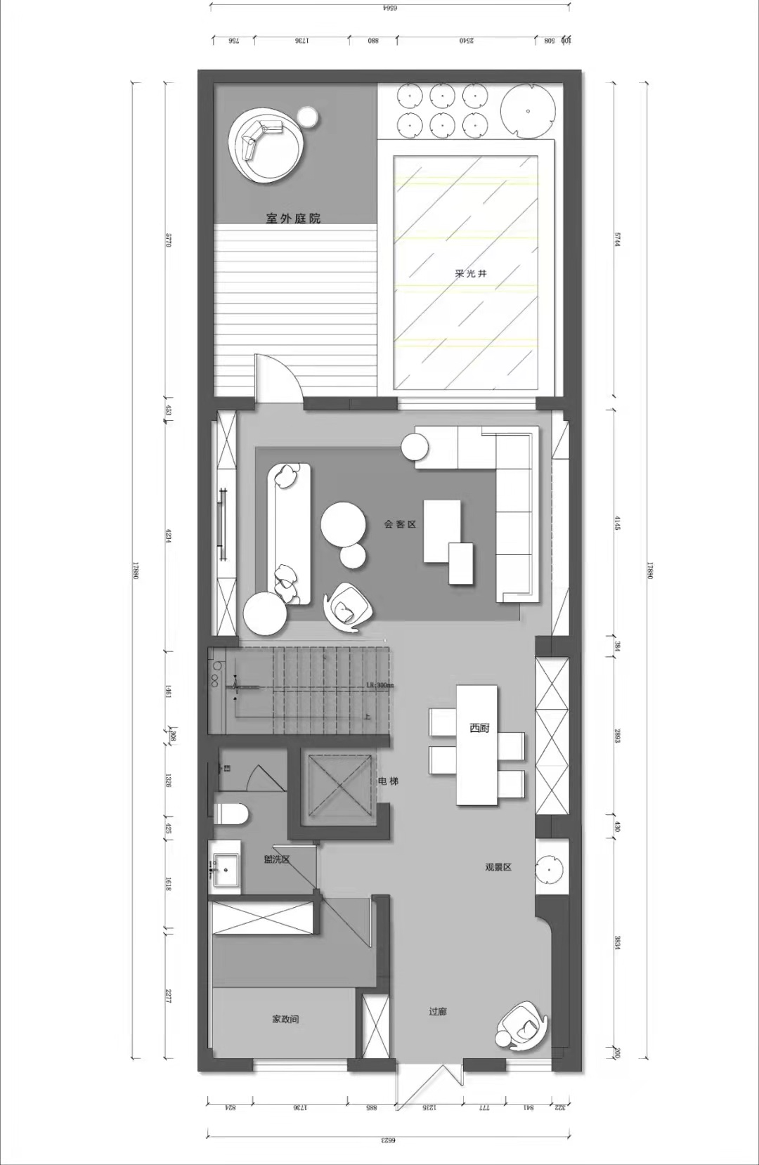
负一楼梯一下来对面则是一个长岛台和绿植景观,绿植景观的棚面采用软膜天花来进行模拟日光照明,设计师也将餐厅、厨房设置在了负一层,这样就餐娱乐、会客更加方便一些。设计师只在餐边柜上做了简单的开放格来增加的空间的趣味性,深色的木纹圆桌搭配暖灰色皮质餐椅,延续了客厅空间柔刚结合的设计理念。八人餐桌可充分满足业主休闲聚会的需求,圆形的桌面能够照顾到每一位就餐者的需求。在照明方面,设计师在棚面与圆桌对应区域做了7公分宽凹槽,内置50开孔的3000k值的筒灯。进行整体照明设计,暖光可使菜肴在视觉效果上更具风味;同时,用LED灯带进行局部照明,凸显酒柜陈设。负一的多功能房兼具了洗衣间和杂物间的使用。
在书房与客厅区域之间,设计师采用拱形隔断,在视觉上划分空间,在扩大公共区域的同时,也将自然光更多地引入室内的各个空间。设计师将现代元素与简欧元素相结合,用西式的雕花壁炉搭配抽象的壁画、大卫像、不规则的几何体等与客厅空间设计风格完全不同的元素,令人眼前一亮。书房左侧定制满墙的书柜,既能满足业主的储物需求,又能增强书房空间的装饰性;右侧以落地窗搭配纱帘与淡灰色窗帘,木制的书桌搭配金属材质的极细桌腿,主人可以在此阅读或者摆放茶具,以茶会友。书房的吊顶设计延续了客厅吊顶的简约风格,用局部的射灯打亮书柜,用铁艺主灯照亮整体环境。这样,设计师将整体照明与局部照明相结合,可以保证业主阅读时的亮度。
三层主卧地面铺设原木色地板,给人以亲近自然的温暖感。灰色布艺床搭配暖灰色床头柜,给人以沉稳、安宁的心理感受;同时选用白色和暖灰色的床品作为局部点缀,渲染静谧的氛围。简洁的艺术涂料墙面,有简约而不简单之感。卧室用香格里拉帘装饰,使主卧的环境通透。照明部分选用黑色格栅灯为主光源,床头左右两侧用虚光灯带作为氛围光,床头柜部分使用小的金属壁灯进行局部照明,开关置于床头,使业主在睡前阅读或起夜时只需开启局部小灯,便于使用。主卧内的卫生间选用黑色边框的长虹玻璃门。墙面和地面通铺暖灰色600*1200瓷砖。在淋浴房墙面地面部分,设计师使用600*1200的黑色净版瓷砖。在软装部分,设计师选用兼具储物功能和颜值在线的镜柜,使淋浴间充满时尚、摩登的感觉。此外,镜柜的补光设计可以满足女业主晨起时梳妆的需求。
二层女儿卧选用与主卧相同的人字纹地板,墙面选用色彩不同的两种漆饰:在上部的三分之二选用白色型材格栅板,在下部使用藕粉色的漆饰。灰色的床体使整体空间更加柔和,给人温馨之感。暖灰色书桌既可满足业主的睡前阅读需求,又便于放置装饰品、衣物等物品。床两侧放置成品藕粉色的床头柜,既富有设计感,又为将来更换留出更多的可能性,以摆放饰品、证件等。照明部分的设计使用白色格栅灯进行整体照明,用吊灯和筒灯进行局部照明,同时在书桌放置黄铜台灯,供阅读时使用。
厨房空间是一个正方形的区域,为了让业主有效地利用厨房空间,设计师在厨房做了U型定制整体橱柜,左侧为操作台区域,右侧内嵌烤箱与冰箱,中间做了岛台,既增加了储物功能也方便进行多人操作。这样能够在有限的空间中满足业主的多种烹饪需求。同时,设计师采用易清洗打理的水磨石设计操作台面,厨房墙砖采用与地砖同款进行铺设;顶面选用防水石膏板和防水涂料进行吊顶,顶面筒灯和格栅灯与墙上的暗藏灯带交相辉映,可满足不同的照明需求
一层卫生间的设计需要符合业主日常的生活习惯。设计师选用客厅同款白色600*1200瓷砖铺贴地面和墙面。基本款的白色瓷质洗手池搭配镜柜,低调又不失个性。淋浴间区域使用玻璃门进行干湿分离,顶面选用防水石膏板和防水涂料进行吊顶,用防潮筒灯进行照明。卫生间整体空间视野通透,干湿分离得当,可让业主有较好的使用体验。
玄关旁放置衣帽柜,可以方便业主出行前更换衣物。方便使用,并且具有较强的设计感,左右两侧设有柜体,中间放置单人沙发,供更换衣物时使用。右侧穿衣镜可体现出业主的时尚品位。 -
空间意境:此次现代简约风格室内设计选用线条流畅、简洁大方的家具造型,家具之间摆放并不紧凑,空间更加宽敞、通透。在色彩运用上,设计师以白色为主色调,搭配脏粉色、浅蓝色等莫兰迪色系,使用原木色、黑色等进行色彩上的碰撞;在材质的选用上,木地板、暖灰色免漆柜体、布艺沙发等给人以温暖、贴近自然之感,格栅灯、金属壁灯、大理石纹瓷砖又给人以时尚的现代感,每一处布景都具有随意和恬淡之感;在照明方式上,通过直接照明、间接照明相结合的方式,以及无主灯的设计点亮空间。此外,设计师在窗、桌椅、柜门、背景墙等组合搭配上注重相互呼应,以尽可能不显杂乱。
-
空间布局:该设计案例为五层500㎡的别墅现代简约风格室内空间,业主是一名私企老板,这套住宅将会和自己的爱人以及即将出嫁的女儿一起入住。在前期工作中,设计师主要以以下几点为切入点开展此次设计工作:首先,设计要满足空间的储物功能;其次,设计要符合现代简约风格简洁、时尚和年轻化的特点;最后,地下两层的设计要考虑会客和外孙的活动空间。
设计要摆脱千篇一律的简约风格,在细节中融入设计师的个人巧思,彰显业主的个性。此次设计在色彩与线条方面突破了以往简约风格的限制,取其简洁优雅之魂,去其冰冷生硬之感,形成了独具特色的现代简约风格室内空间。此次设计选用简洁干练又不失优雅、时尚感的现代简约风格。在空间划分上,案例房屋五层,设计师充分利用每层空间,以客户的角度想法所出发,完美还原了客户所需要的的各种要求,五层分别为一层会客厅,二层整个都是业主女儿的起居空间,包括卧室书房一体的空间,衣帽间、卫生间和榻榻米休闲区。三层南向则是主卧套房,北向是客房套间,负一为全家休闲娱乐聚餐的场所,负二是车库和观影及储物的地方. -
设计选材:通过石材额地面于木饰面的巧妙运用,中和硬朗的线条,提升整个空间的质感和气质,克制与平衡.表现和内在的矛盾统一,充分的表现出丰富而纯粹的设计本质。
建构北定义为“诗意的建筑”,适合用来解决入口处的“蔽”。墙体,既是屏障也是媒介,形成一条长廊,拉长空间动线,增加环游感,也能对外界由隐约感知。
-
用户体验:功能全面,细节贴心大气简约中不乏对生活的温柔体贴,充分保证了卧室的私密性与体验度,恰到好处的收纳空间。贴心的人性化设计将洗浴与功能区很好的融合,尽善尽美的布局,和谐温馨。每一个环节都经过细细揣摩,每一处细节都焕发着精致色彩,不只是一所房子,更是一个温暖的家。
0
0

认证 · 让您身份增值