韶光序



作品说明
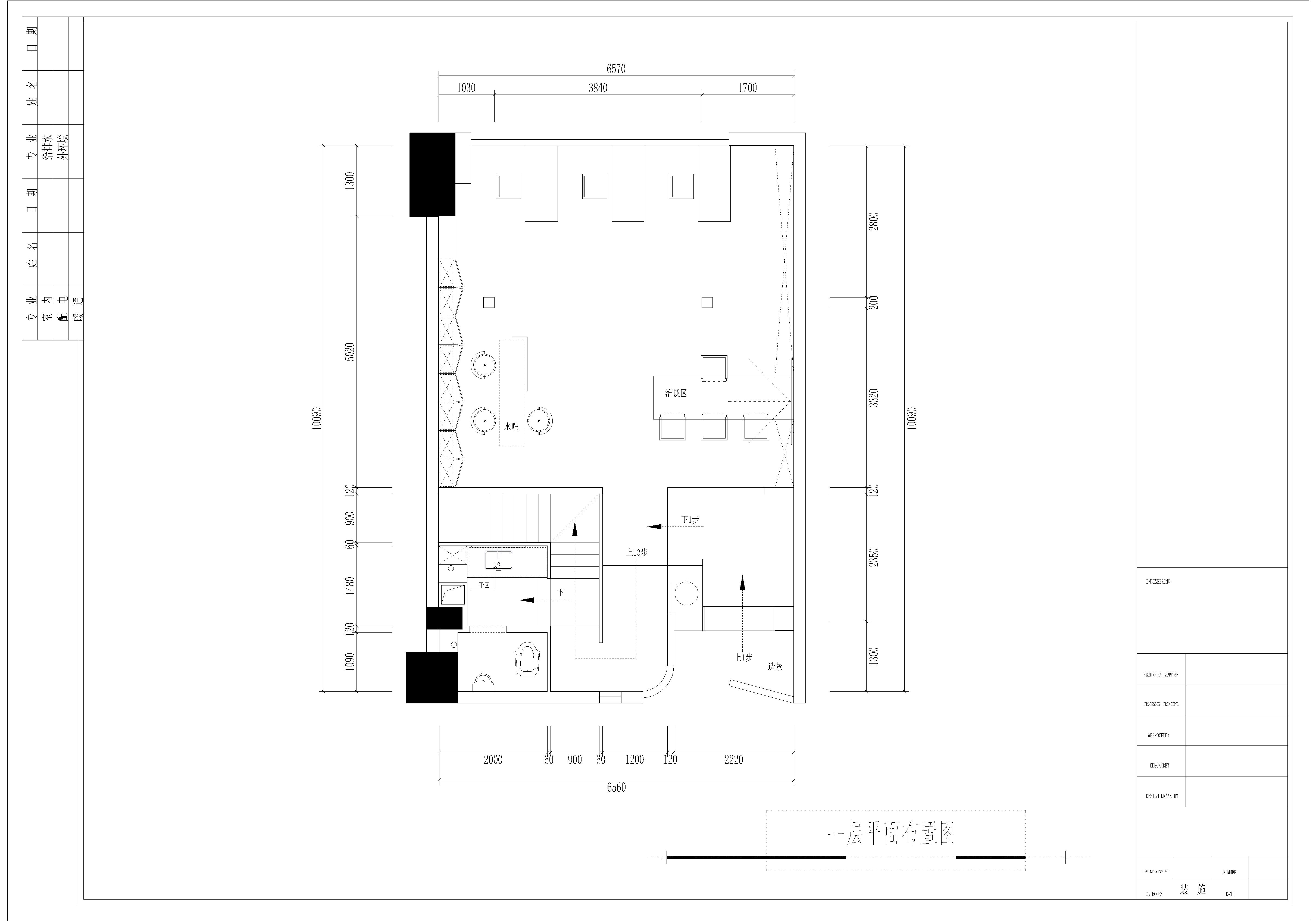
- 项目类型:办公
- 项目地点:福州市
- 建筑面积:80.0000㎡
- 项目造价:20.0000万元
- 主案设计师: 陈航
- 参与设计师:陈颖
- 竣工时间:2021-04-08
- 设计机构:福州市瑾诚装饰设计有限公司
-
项目定位:日月轮回往复,四时更替,古人向往山中无甲子,寒尽不知年的遗世独立,向往着采菊东篱下,悠然见南山的隐逸…………后来,我想我应该一直都是向往的。向往寻一处静谧雅致处,晨时,带着满心的愉悦开始一天的忙碌,落日,邀三五知己或看斜阳晚照,或看天外云卷云舒…………在这人间都市,忙碌有序,少了年少的初心,谓始衷不变,亦如在心中修篱种菊般,只能心之所至。
-
空间意境:楼梯扶手以及玄关的造型设计让空间的结构线条感极强,也是一种视觉享受,纯白色与微水泥的融合将极简主义渲染到了极致,没有混乱色彩的设计
-
空间布局:整个空间除了卫生间及休息区以外,全部都采用的开放式,让空间随性自由
-
设计选材:香槟金、黑色岩板、绿植,干净而时尚的精简理念,让设计回归纯粹的本质,在灯光的映衬下,营造出一个自然舒适的空间氛围
-
用户体验:静谧的工作场所,平静、自然、阳光,没有工作的沉闷,更像净心的港湾

