辰·露
700
作品说明
- 项目类型:住宅公寓
- 项目地点:长乐市
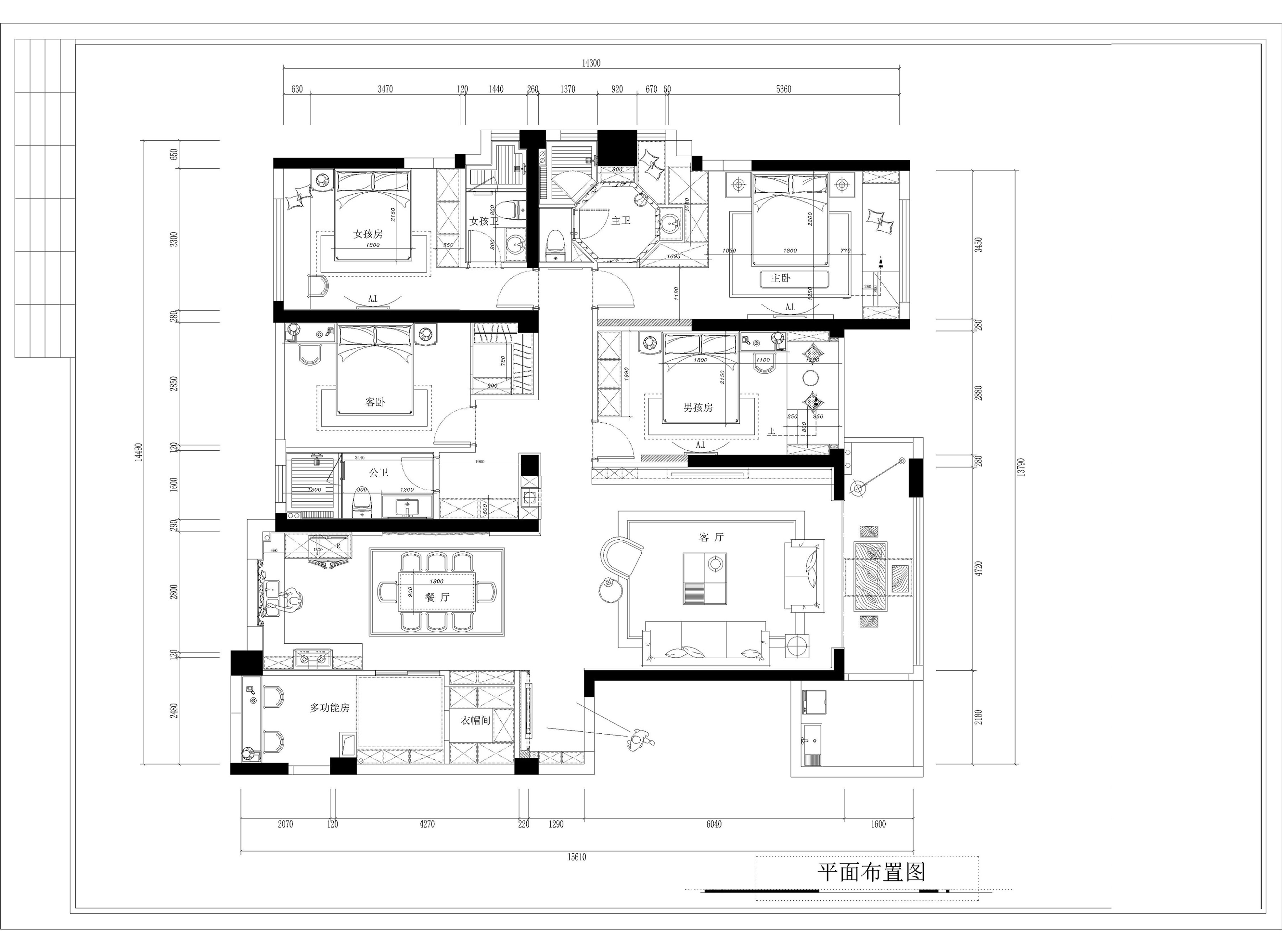
- 建筑面积:185.0000㎡
- 项目造价:85.0000万元
- 主案设计师: 陈航
- 竣工时间:2020-03-19
- 设计机构:福州瑾诚装饰设计有限公司
-
项目定位:无需刻意打扮生活,无需标榜立意,循着自己的心,追逐自己想要的烟火气息
-
空间意境:黑白灰的空间走着更深邃的视觉延伸感,沙发背后手绘缀饰,色调柔和的背景铺陈开来,在简洁的黑白灰空间里,显得份外恣意洒脱
-
空间布局:开放式厨房连接着餐厅,横向延伸出客厅,整个空间更加通透流畅
-
设计选材:餐厅的白色雕塑背景,若晕染开的水波,星光连绵,点缀着星夜,光芒围绕……又似少女的螺髻……立体生动。光影缠绕间,交错的线条刻画着生活的丰富多变,不同的材质在空间中相遇,奏着和而不同的生活乐章。
-
用户体验:不浮华不庸碌,松弛有度,日子过得踏实低调而不乏优雅
人生一半是清欢,一半是烟火。懂生活的人,日子过得踏实低调而不乏优雅。它可以不浮华、不庸碌,松弛有度。它可以行万里路,也可以破万卷书,无需刻意打扮生活,无需标榜立意,循着自己的心,追逐自己想要的烟火气息。 黑白灰的空间有着更深邃的视觉延伸感,沙发背后手绘缀饰……色调柔和的背景铺陈开来,在简洁的黑白灰空间里,显得份外恣意洒脱……餐厅的白色雕塑背景,若晕染开的水波,星光连绵,点缀着星夜,光芒围绕……又似少女的螺髻……立体生动。光影缠绕间,交错的线条刻画着生活的丰富多变,不同的材质在空间中相遇,奏着和而不同的生活乐章。
走进私人领域,别于公共空间的沉稳,换上轻盈的浅色系,原木材质抬高的榻榻米,空间温馨而私密,减压而放松。
儿童房用了鲜亮的彩色,童趣十足的休闲平台,放松自在的学习空间,寓学习于娱乐,在属于自己的世界里快乐成长。
0
0

认证 · 让您身份增值