出·尘
1183
作品说明
- 项目类型:私宅
- 项目地点:福州市
- 建筑面积:220.0000㎡
- 项目造价:110.0000万元
- 主案设计师: 陈航
- 竣工时间:2021-01-05
- 设计机构:福州瑾诚装饰设计有限公司
-
项目定位:大繁至简 极境至臻
-
空间意境:全屋的炝灰色岩板,搭配不锈钢和留白,整个空间都充斥着强烈的黑白灰三色对比,极具现代极简主义风格,红灰色沙发的大胆配色一下就抓住了你的眼球,中和了略显冷淡的气质,空间多了一份俏皮柔软,留白的背景,仿佛记录着成长路上的后知后觉,阅历,亦是年岁的沉淀,叹着不忘初心,继续着人间质朴的生活白描,平淡而幸福
-
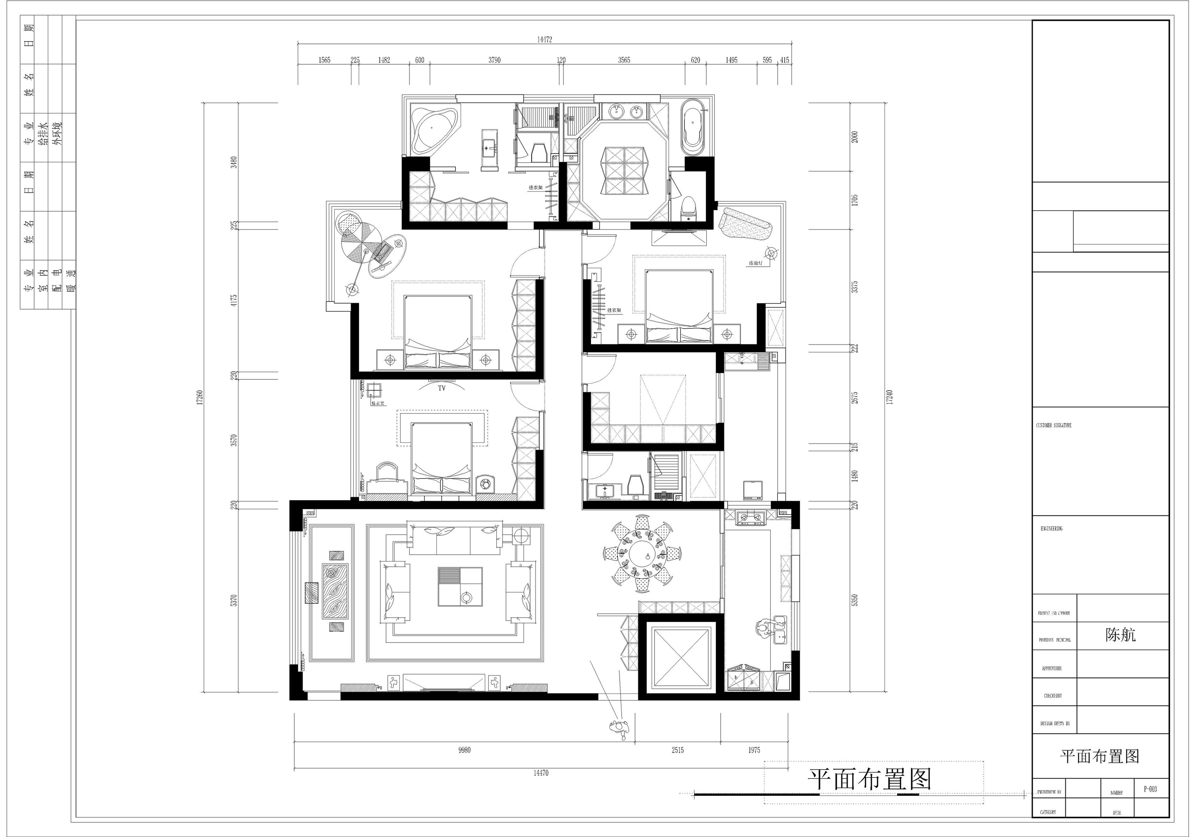
空间布局:厨房餐厅横向连接着客厅,让格局得到最宽敞的释放
-
设计选材:餐厅背景的木雕画,灰色玻璃的备餐柜,白色纹理的装饰隔断,不同的材质、纹理堆叠,线性、量体交织,丰富精彩,却又在同一个基调上不会显得过于繁重
-
用户体验:在风和日丽之时,从几净的窗户望去,映入眼帘的是缓缓变换的湛蓝天空和白云,窗外明媚的阳光和屋内柔和的光影,感受舒适的日光,静心阅读,享受时光,回归本元
大繁至简,极境至臻 ……。
榕城的春天风和,日丽,从几净的窗户望去,,映入眼帘的是缓缓变幻的湛蓝天空和白云,窗外明媚的阳光和屋内柔和的光影,鲜明的反差,恍惚间,竟觉入梦。。。。 全屋的炝灰色岩板,搭配不锈钢和留白,整个空间都充斥着强烈的黑白灰三色对比,极具现代极简主义风格,红灰色沙发的大胆配色一下就抓住了你的眼球,中和了略显冷淡的气质,空间多了一份俏皮柔软。 留白的背景,仿佛记录着成长路上的后知后觉,阅历,亦是年岁的沉淀,叹着初心不忘,继续着人间质朴的生活白描,平淡而幸福。
厨房餐厅横向连接着客厅,让格局得到最宽敞的释放,餐厅背景的木雕画,灰色玻璃的备餐柜,白色纹理的装饰隔断,不同的材质、纹理堆迭,线性、量体交织,丰富精彩,却又在同一个基调上不会显得过于繁复,这里,充斥着对食材的温柔,对烟火的向往。。。。
房间的灰色艺术涂料,绿植的点缀,闲暇,在窗边感受舒适的日光,静心阅读,享受时光,回归本元
0
1

认证 · 让您身份增值