静谧
160
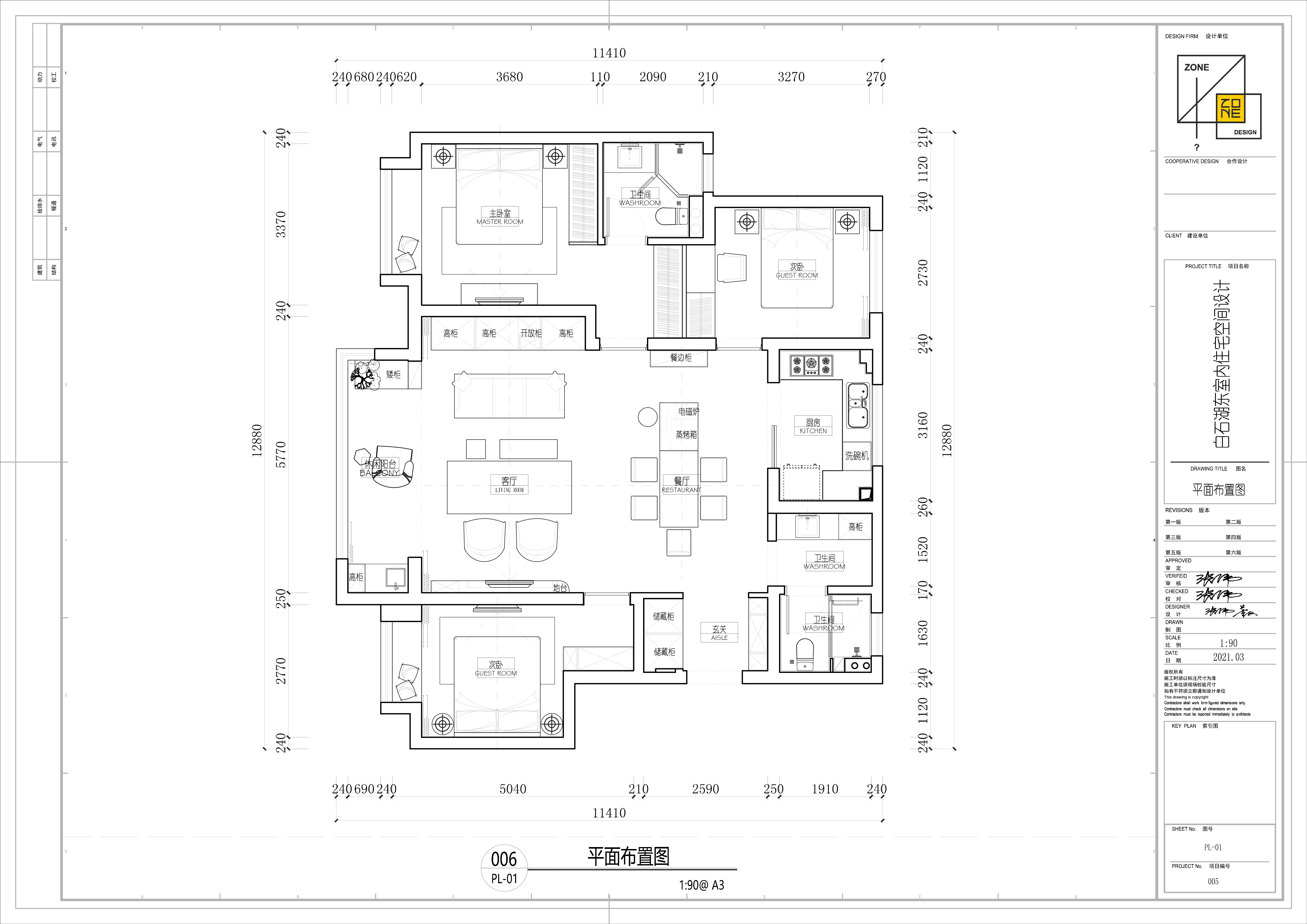
作品说明
- 项目类型:住宅公寓
- 项目地点:宁波市
- 建筑面积:130㎡
- 项目造价:70万元
- 主案设计师: 董权
- 参与设计师:董权
- 竣工时间:2021-10-05
- 设计机构:宁波众冉设计事务所有限公司
-
项目定位:个人都经历过对于某种风格的执念,其实没有什么风格可以定义一件具象的事情,也许你喜欢的就是一种风格
-
空间意境:正如我们本套屋主,并不想被任何人定义,个性、洒脱、邻家。所见即是我喜欢晨曦清晨,淡茶一杯天马行空,也无法摒弃深夜到来之时,与爱人玩起游戏机时的畅快淋漓,而这个作品承载的就是生活内心精神的富足。
-
空间布局:第一印象给我们的感觉就是非常的有个性,喜爱收藏喜欢看书,有生活气息但并不想随波逐流独爱小众审美。
-
设计选材:设计造型方面我们运用艺术漆以及有钢刷纹理的胡桃木色木地板,两种富有天然肌理的材质希望营造一个更接近自然的感觉,忽远忽近都别是一番滋味
-
用户体验:下班回到家,户外的景色与大客厅融为一体,看大自然四季景色
0
0

认证 · 让您身份增值