蒹葭-霞影
121
作品说明
- 项目类型:别墅
- 项目地点:宁波市
- 建筑面积:280㎡
- 项目造价:180万元
- 主案设计师: 董权
- 参与设计师:董权
- 竣工时间:2020-11-14
- 设计机构:宁波众冉设计事务所有限公司
-
项目定位:本案对空间对称的结构、材质的运用及软装陈列方式都体现出中式的韵味与仪式感,在东方美学被不断提起的今天,呈现出一种开放的姿态,并保持自我的风格。
-
空间意境:入口玄关的空间规划恰 到好处地实现了储藏和展示的双重功能。客厅整体设计极力呈现别墅空间雅致、安静的力量。满墙书架式设计作为立面极具震撼力的精神载体,搭配水墨大理石背景让整体空间大气凝远、通达而有识鉴。
-
空间布局:餐厅设计不仅延续了含蓄、高雅的生活方式与礼制之道,提炼出经典元素加以简化和丰富,圆形实木餐桌更显简约与流畅,人性化布局搭配触感顶级的材质,营造安静、舒适的用餐空间。
-
设计选材:采用木饰面与硬包的结合,简洁明朗的木质、时尚稳重的家具以及暖色的灯光氛围,使空间兼具温馨舒适与典雅贵气。
-
用户体验:回到家后,能感受到安静舒服的温馨感
本案对空间对称的结构、材质的运用及软装陈列方式都体现出中式的韵味与仪式感,在东方美学被不断提起的今天,呈现出一种开放的姿态,并保持自我的风格。
入口玄关的空间规划恰 到好处地实现了储藏和展示的双重功能。客厅整体设计极力呈现别墅空间雅致、安静的力量。满墙书架式设计作为立面极具震撼力的精神载体,搭配水墨大理石背景让整体空间大气凝远、通达而有识鉴。
二层作为长辈房与主人房,与整个空间的步调一脉相承。天花设计采用木架斜屋顶造型,大气而稳重;木质温润的触感、淡雅素净的配色及艺术品的点缀为主卧进行了全新的定位。
卧室背景墙采用木饰面与硬包的结合,简洁明朗的木质、时尚稳重的家具以及暖色的灯光氛围,使空间兼具温馨舒适与典雅贵气。
餐厅设计不仅延续了含蓄、高雅的生活方式与礼制之道,提炼出经典元素加以简化和丰富,圆形实木餐桌更显简约与流畅,人性化布局搭配触感顶级的材质,营造安静、舒适的用餐空间。
一层平面
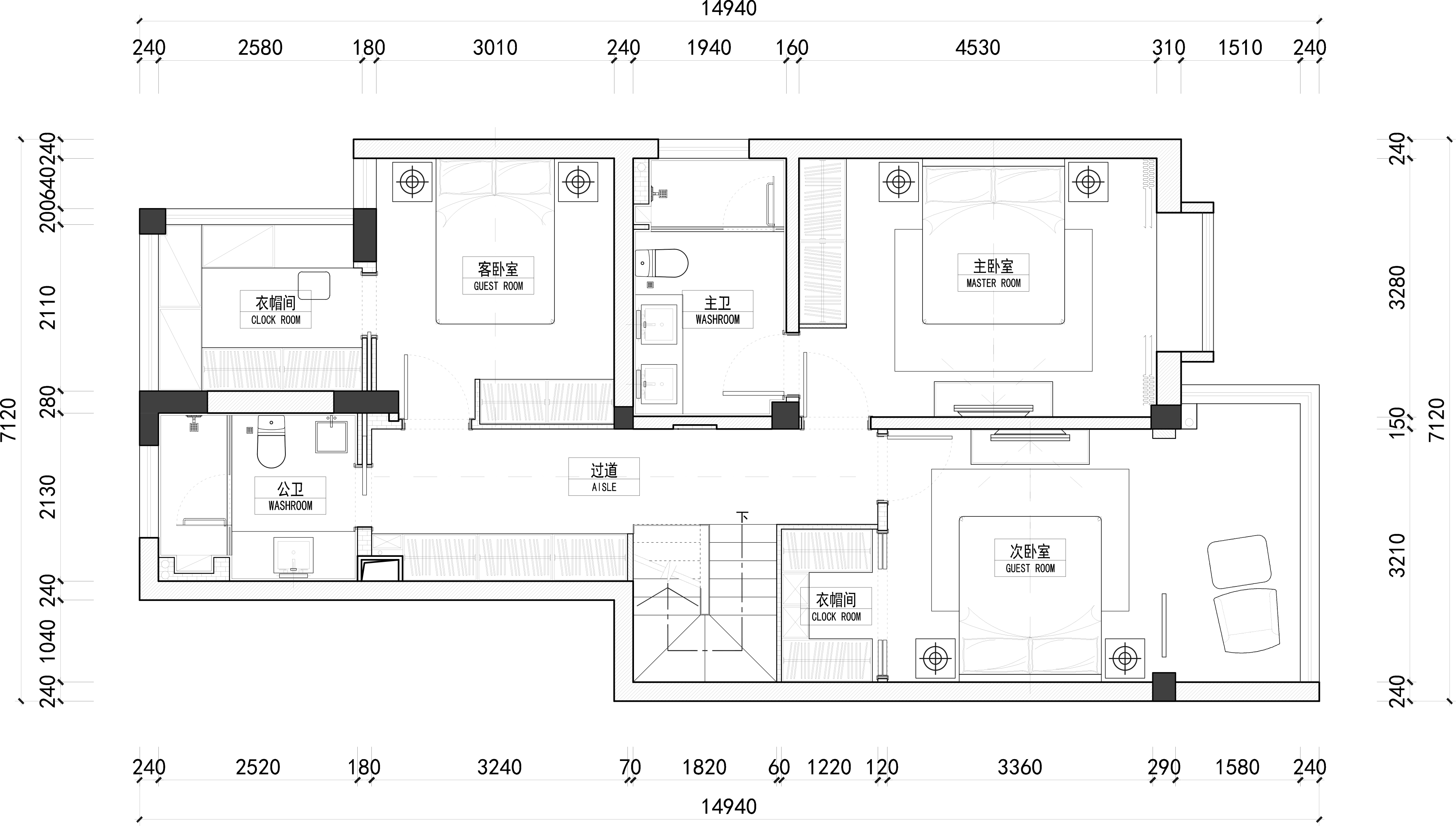
二层平面
地下室平面
0
0

认证 · 让您身份增值