山东威海华发奥特美体育中心



作品说明
- 项目类型:休闲娱乐
- 项目地点:威海市
- 建筑面积:7220.0000㎡
- 项目造价:0.0000万元
- 参与设计师:赫斯贝德纳室内设计咨询(上海)有限公司
- 竣工时间:2021-08-16
- 设计机构:赫斯贝德纳室内设计咨询(上海)有限公司
-
项目定位:用全新视角和艺术表现形式打造一个虚拟与真实结合的体育海洋世界,探讨体育与海洋之间矛盾又亲密的关系,让我们接触和了解海洋体育,继而引发探索海洋的兴趣。大海中的波浪是海洋中涌动能量的展示,永不平静,如同有人不断地搅动。
-
空间意境:宽敞的空间、足够的挑高、明亮的落地窗让健身者在此健身时仿佛置身自然,不会有丝毫压抑之感。跑道型走廊与流线型的灯带相得益彰,为整个空间营造出满满的运动氛围。
-
空间布局:待大厅水磨石的地面勾勒出海不断变化的海岸线,时深时浅。而墙面和家具波澜起伏的线条叠加,又如这座城市中起伏缓和、谷宽坡缓的波状丘陵区。空间中流动的线条,汲取文化的内涵,用简单的手法描绘城市精神风貌。
-
设计选材:整体空间随处可见简洁的几何切割,放射状的光线,白色大理石反映的利落,目及之处,都能感受带来的力量与活力氛围的感染。
-
用户体验:运用现代的空间设计语言来诠释简单的运动场景,打造出一个能让人获得生命质感的精神空间。
入口的前台设计隐喻为心脏的鲜活跳动,似乎发出邀约的信号, 享受着那一刻的尽情挥洒。就如波浪翻滚,自由奔放。 人生的枷锁通过环境的指引,视觉的感受,运动的对抗,仿佛一一打破,从而获取到了自由的力量,如漂浮在浩瀚海洋般自在。
整个空间内饰装修很简洁,这样可以尽量减少空间对于锻炼者的干扰,让他们专注于器材,专注于锻炼本身。 但健身房本身设计却又不乏时尚与动感,极富运动气息的环境氛围,让人提起无限的锻炼欲望,也相信会给健身者不一样的健身体验。
该项目一大亮点是专门定制一个大型的白色弧形旋转楼梯。 旋转楼梯既提供了上下两层的交通连接,也带来了更多的健身选择性和趣味性。 客户可以自主选择独特的运动路径,在不同的领域进行不同的活动。
简洁的几何切割,放射状的光线,白色大理石反映的利落,目及之处,都能感受带来的力量与活力氛围的感染。
游泳池光与影的冲突以及独一无二的物质性,都让人流连忘返。
在如今高耸入云的城市中,是否可以创造出一个灵动可呼吸的瑜伽空间 “空中森林瑜伽馆”概念由此产生。结合概念,材料选用了蓝色防火板与木饰面,营造在广阔森林中做瑜伽的场景感。让人感受人与自然高度统一。
健身房流线性极强,与传统商业体有很大不同, 动线更自由的设计,是追寻潮流的最新去处。充满了引力和可能性,规则的纯粹象征着运动的有序,人体和天体在这方面,区别不大。划出弧形的线性。
都市里,宣泄的选项总免不了挥汗淋漓的健身房。琐碎的事务与聒噪的人际关系让自我早已逐渐式微.
更衣间不会过于喧宾夺主,反而会衬托它们自身的特点与精致。
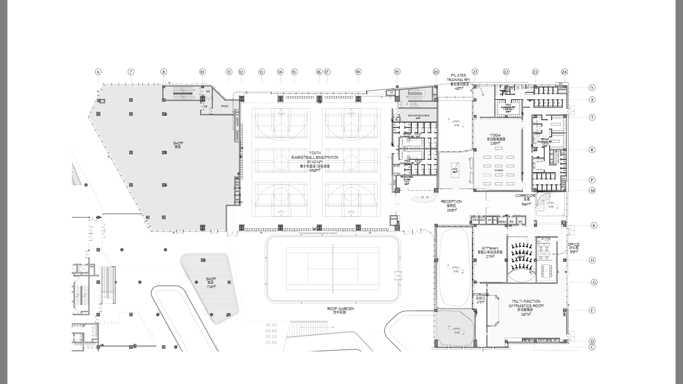
平面图 - 1
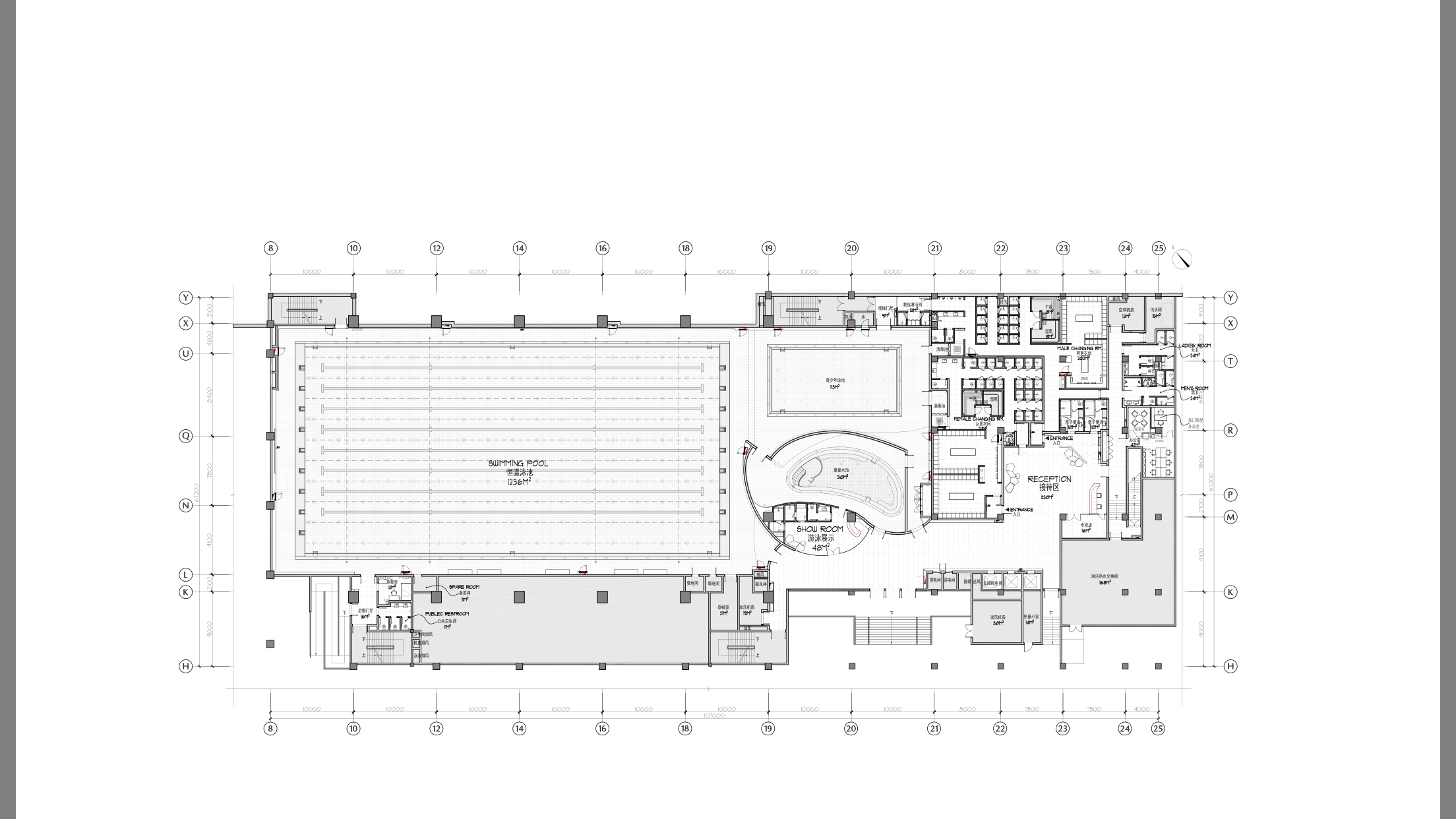
平面图 - 2
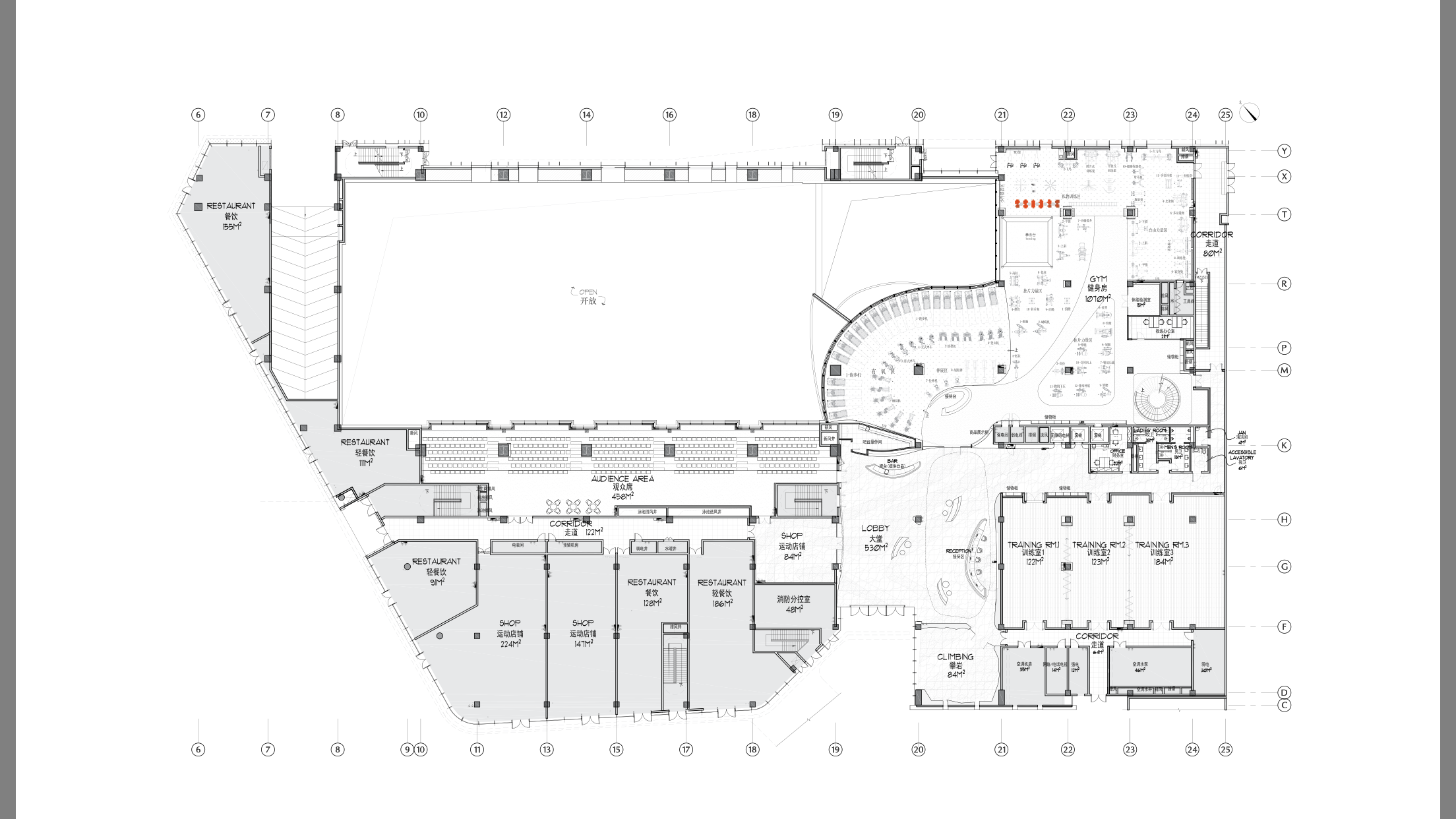
平面图 - 3

