日照多岛海云和夜泊海景度假酒店



- 项目类型:酒店
- 项目地点:日照市
- 建筑面积:18416.0000㎡
- 项目造价:500.0000万元
- 主案设计师: 刘雅正
- 参与设计师:刘雅正
- 竣工时间:2021-03-31
- 设计机构:天津市东林维度装饰设计有限公司
-
项目定位:日照多岛海云和夜泊海景度假酒店位于日照岚山区多岛海景区,这里具有得天独厚的自然资源,酒店依黄海而建,从客房远眺便可见海天一色。
设计师在设计上想表达出一种度假时的悠然,一种脱离了喧嚣的宁静,它在气质上区别于一般的星级酒店。正如文征明所写,生活像一幅山水画,清风明月,流水青山,这是感性和灵性的碰撞。 -
空间意境:设计师从自然和记忆中汲取元素,使用灵活的线条为周围的环境提供艺术张力,将记忆与物理空间相结合。木条铺贴在夜景中,与光带结合,光影之间充满了神秘和梦幻的色彩。通过丰富质朴的材质和极简的设计语言,配合充满氛围感的照明设计,带给客人宁静的归属感。
-
空间布局:商业街是整个多岛海商业综合体的重要组成部分,不规则的堆叠效果,带着点童话色彩的建筑,虚与实、轻与重在这其中体现的淋漓尽致,让身心都放个假。
摩天轮设计打破了原有的沉静,让空间充满愉悦,形成了独具美感的空间律动,用现代人的眼光再次丰富了山水之乐的韵律,更多了一丝浪漫。
提到浪漫就会让人想起爱情,酒店精心设有一块婚礼草坪,为见证美好的爱情。当一段悠扬的音乐响起,伴随着欢声笑语,新人走进山海里,清风徐来,耳畔是轻柔的海浪声。蓝天、白云、大海、白纱幔,海景平台,海天一色,不做过多修饰就是一副完美的画面。 -
设计选材:在建筑设计上,选择以经典的木质为主要装饰,温暖的自然色调,搭配古色古香的山石元素,所有空间都干净简洁,但也不缺乏现代的折衷主义特征,巧妙地将整个空间构建成一副山水意境画卷。
酒店公共区域使用了夯土、水磨石等能突出本源的材质,能够唤醒人内心对于自然的零距离沟通。温暖的色调,亲和力的材质,开阔的视野让人感受到这里独一无二的悠然。
客房部分考虑了海滨的气候和视觉的多样性。从材质和空间造型上,都进行了耐候处理。软装的设计体现了多样性,让人能体验到更多的视觉上的新鲜感。以海为景,蓝天艳阳为伴,在全景落地窗前,海天一色,仿若置身画卷之中,匠心独具的轻奢风格,每个细节都充满了仪式感,透着一种对生活的尊重。 -
用户体验:满意
云和夜泊酒店位于日照岚山区多岛海景区,这里具有得天独厚的自然资源,酒店依黄海而建,从客房远眺便可见海天一色。
设计师在设计上想表达出一种度假时的悠然,一种脱离了喧嚣的宁静,它在气质上区别于一般的星级酒店。正如文征明所写,生活像一幅山水画,清风明月,流水青山,这是感性和灵性的碰撞。
为此设计师在建筑设计上,选择以经典的木质为主要装饰,温暖的自然色调,搭配古色古香的山石元素,所有空间都干净简洁,但也不缺乏现代的折衷主义特征,巧妙地将整个空间构建成一副山水意境画卷。
设计师从自然和记忆中汲取元素,使用灵活的线条为周围的环境提供艺术张力,将记忆与物理空间相结合。木条铺贴在夜景中,与光带结合,光影之间充满了神秘和梦幻的色彩。
通过丰富质朴的材质和极简的设计语言,配合充满氛围感的照明设计,带给客人宁静的归属感。
商业街是整个多岛海商业综合体的重要组成部分,不规则的堆叠效果,带着点童话色彩的建筑,虚与实、轻与重在这其中体现的淋漓尽致,让身心都放个假。摩天轮设计打破了原有的沉静,让空间充满愉悦,形成了独具美感的空间律动,用现代人的眼光再次丰富了山水之乐的韵律,更多了一丝浪漫。
提到浪漫就会让人想起爱情,酒店精心设有一块婚礼草坪,为见证美好的爱情。当一段悠扬的音乐响起,伴随着欢声笑语,新人走进山海里,清风徐来,耳畔是轻柔的海浪声。
蓝天、白云、大海、白纱幔,海景平台,海天一色,不做过多修饰就是一副完美的画面。
酒店公共区域使用了夯土、水磨石等能突出本源的材质,能够唤醒人内心对于自然的零距离沟通。温暖的色调,亲和力的材质,开阔的视野让人感受到这里独一无二的悠然。
客房部分考虑了海滨的气候和视觉的多样性。从材质和空间造型上,都进行了耐候处理。软装的设计体现了多样性,让人能体验到更多的视觉上的新鲜感。
以海为景,蓝天艳阳为伴,在全景落地窗前,海天一色,仿若置身画卷之中,匠心独具的轻奢风格,每个细节都充满了仪式感,透着一种对生活的尊重。
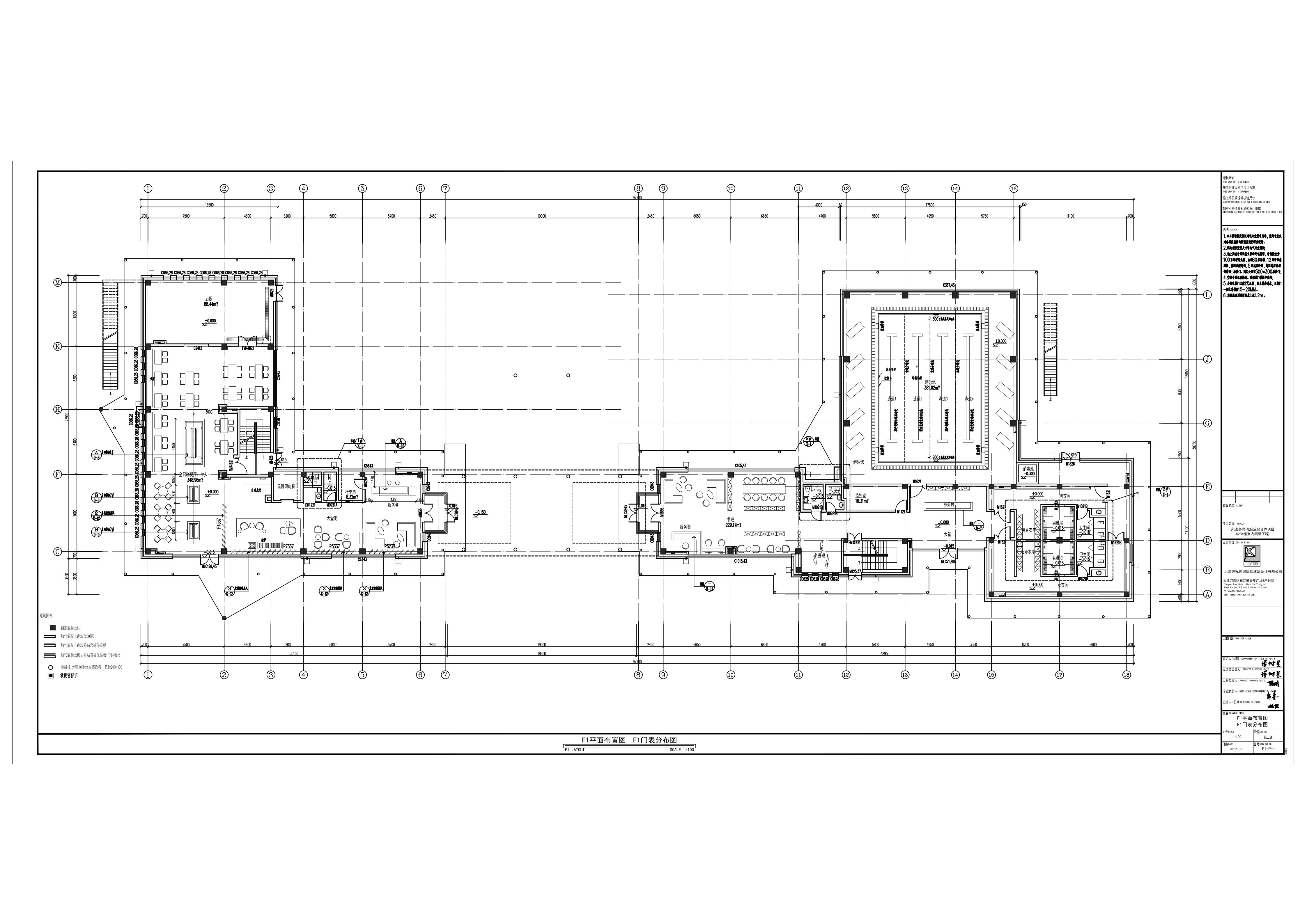
平面图F1
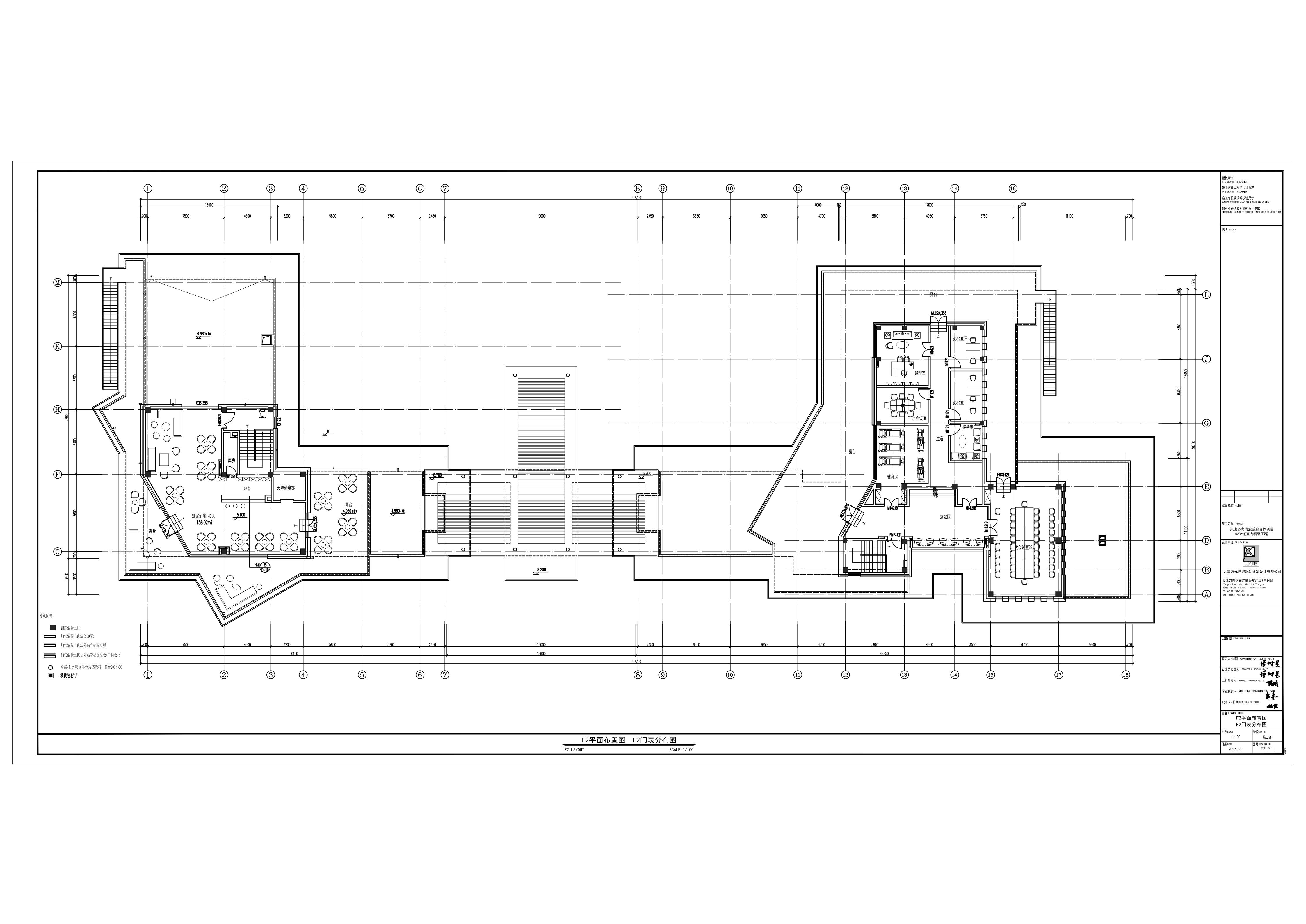
平面图F2

