虾洳花旗舰店
863 - 项目类型:餐饮
- 项目地点:天津市
- 建筑面积:621.0000㎡
- 项目造价:60.0000万元
- 主案设计师: 刘雅正
- 参与设计师:曲秋澎、李洪泽
- 竣工时间:2021-06-30
- 设计机构:天津市东林维度装饰设计有限公司
-
项目定位:设计团队拿到这个项目的时候,深入挖掘了整个项目的内核,通过小龙虾的特点,抽象出“水”和“火”的概念基础。设计师用设计具现化一个侠义江湖,不仅能满足了年轻人对过去的好奇心,更能慰藉过来人对想当年的怀念。再现旧日光景,一步一景,处处充满老情怀与新精彩。
-
空间意境:精巧明艳的复古建筑,硬装设计采用了一些做旧的手法,比如一些复古裸露的红砖,亚光的水泥质地等,来奠定整场的复古基调。一串串的大红灯笼,闪烁着朦胧的灯火。硕大的龙虾标志,配合上带着浓郁时代风格的招牌,“台球”两个字巧妙的将食客的观感拉进了回忆中。复古风格的元素与科技感相结合,再以一定程度崩坏感做对比,营造五花八门的视觉冲击效果。值得一提的是门外的这辆房车,是穿越时空的经典,房车中不老的传说——清风房车,这是来自美国的传奇,带着百年的积淀。复古砖墙结合未来感的多边形自发光雨棚,形成了时代感的对冲。让这个角落染上了现代科技感的味道,预告着内在的不同一般。
-
空间布局:走进大厅的瞬间,仿佛穿越了时空。鳞次栉比,光影浮现,店内外的每一处透着匠心,精巧明艳的复古建筑+迷幻冷冽的赛博元素,打造出兼具科技感、高级感、文化感的浸入式情景空间。赛博朋克一词出圈,源于前段时间一款电子游戏。逼仄的空间、阴沉晦暗的灯光、具有压迫感的建筑以及霓虹元素,是构成赛博朋克风格的要点,有虚幻科技感又有破坏感,再者就是纸醉金迷的霓虹灯渗透出的颓废感。中国风和赛博朋克这两种风格巧妙的结合在一起,画风方面脱离原始的古风和时代,打造了专属于中国本土的东方朋克美学风格。色彩的碰撞融合上多彩的霓虹灯,将人带入了似梦似幻东方风格的赛博朋克世界里
-
设计选材:包间里的浮世绘风格的背景墙,悬挂的鸟笼子,带着那么点悠然自得意思,正像是平凡人最简单的最淳朴的快乐,也正是大虾洳花的平凡而美好的内核。带有时代的感的木门和栅栏门,这正是大院里最热闹的生活。洗手间有个很有趣的碰撞,瓷盆+老水管看起来陈旧又朴素,而墙面上搭配着宛如后台的化妆镜,墙面点缀着错落的霓虹灯
-
用户体验:良好
东林维度通过对项目的整案规划,打造立体化的虾洳花品牌调性与风格,以品牌的特点为核心打造主题,并借助光影、色彩等一系列环境设计,让就餐环境更加立体。装饰,桌椅板凳的细节等等进行相互关联,让顾客沉浸其中。
门头是餐饮店的第一流量入口,招牌就是要招揽客人,提高路人变客人的转化率。而在此不仅限于招牌,而是将整个门店外观做造型设计,最大化利用建筑外观,打造门店专属的外观符号。
而在此不仅限于招牌,而是将整个门店外观做造型设计,最大化利用建筑外观,打造门店专属的外观符号。
外观上,虾洳花以复古风再现旧日光景,一步一景,处处充满老情怀与新精彩。精巧明艳的复古建筑,硬装设计采用了一些做旧的手法,比如一些复古裸露的红砖,亚光的水泥质地等,来奠定整场的复古基调。
值得一提的是门外的这辆房车,是穿越时空的经典,房车中不老的传说——清风房车,这是来自美国的传奇,带着百年的积淀,将中西文化的复古进行了第一次融合。又能巧妙的利用路人“好奇”的心理,抓住人们的眼球,吸引注意,从而达到提升进店率和曝光率的目的。
复古砖墙结合未来感的多边形自发光雨棚,形成了时代感的对冲。让这个角落染上了现代科技感的味道,预告着内在的不同一般。
店内依旧以复古风为主,处处可见时代中的市井文化的气息,鳞次栉比,光影浮现,店内外的每一处透着匠心,精巧明艳的复古建筑+迷幻冷冽的赛博元素,打造出兼具科技感、高级感、文化感的浸入式情景空间。
走进大厅的瞬间,仿佛穿越了时空。鳞次栉比,光影浮现,店内外的每一处透着匠心,精巧明艳的复古建筑+迷幻冷冽的赛博元素,打造出兼具科技感、高级感、文化感的浸入式情景空间。赛博朋克一词出圈,源于前段时间一款电子游戏。逼仄的空间、阴沉晦暗的灯光、具有压迫感的建筑以及霓虹元素,是构成赛博朋克风格的要点,有虚幻科技感又有破坏感,再者就是纸醉金迷的霓虹灯渗透出的颓废感。中国风和赛博朋克这两种风格巧妙的结合在一起,画风方面脱离原始的古风和时代,打造了专属于中国本土的东方朋克美学风格。色彩的碰撞融合上多彩的霓虹灯,将人带入了似梦似幻东方风格的赛博朋克世界里。
进门处的设计有很多趣味的东西值得挖掘,标语招牌都蕴含着一段江湖传说。恍惚间,竟然分不清自己是走进了一家店,还是走进了记忆中天津风味生活。
进门处的设计有很多趣味的东西值得挖掘,标语招牌都蕴含着一段江湖传说。恍惚间,竟然分不清自己是走进了一家店,还是走进了记忆中天津风味生活。
虾洳花旗舰店开业至今天天爆满,很大程度上就是其塑造了独特的场景特色,在现场呈现给了观众那种怀旧时代的风格,以及透着强烈对比的赛博朋克的元素,但是这一切都基于天津本地特定的怀旧元素和特点,如独有的地名、事物等。
为了让设计尽可能重现历史,设计师收集了大量史料和照片,在充分研究过资料之后,装饰,印刷,以及做旧的效果等等逐一进行考究。
虾洳花旗舰店内富有带入感的设计,通过对于建筑、语言、装饰的挖掘,用了一些招牌、张贴画文案来显现,而其中的核心应该算是一只硕大的机械龙虾。
这只酷酷的机械龙虾,将场景的“沉浸式”感受提升了一个高度,可以算是整个空间的点睛之笔,再加上虚实结合的空间营造,打造出场景化餐饮设计,进一步加深品牌对消费者的影响,让人体验到感官的震撼和思维的认同。
包间里的浮世绘风格的背景墙,悬挂的鸟笼子,带着那么点悠然自得意思,正像是平凡人最简单的最淳朴的快乐,也正是大虾洳花的平凡而美好的内核。带有时代的感的木门和栅栏门,这正是大院里最热闹的生活。
洗手间有个很有趣的碰撞,瓷盆+老水管看起来陈旧又朴素,而墙面上搭配着宛如后台的化妆镜,墙面点缀着错落的霓虹灯。真可谓人生如戏,全靠演技,这一次轮到你粉墨登场,品尝麻辣的快感,感受这个简单快落的侠义江湖了!
海报
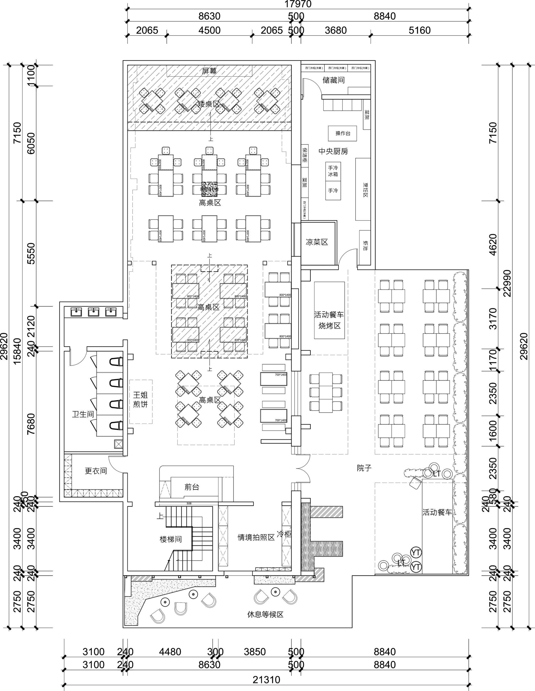
一层平面图
二层平面图
0
0

认证 · 让您身份增值