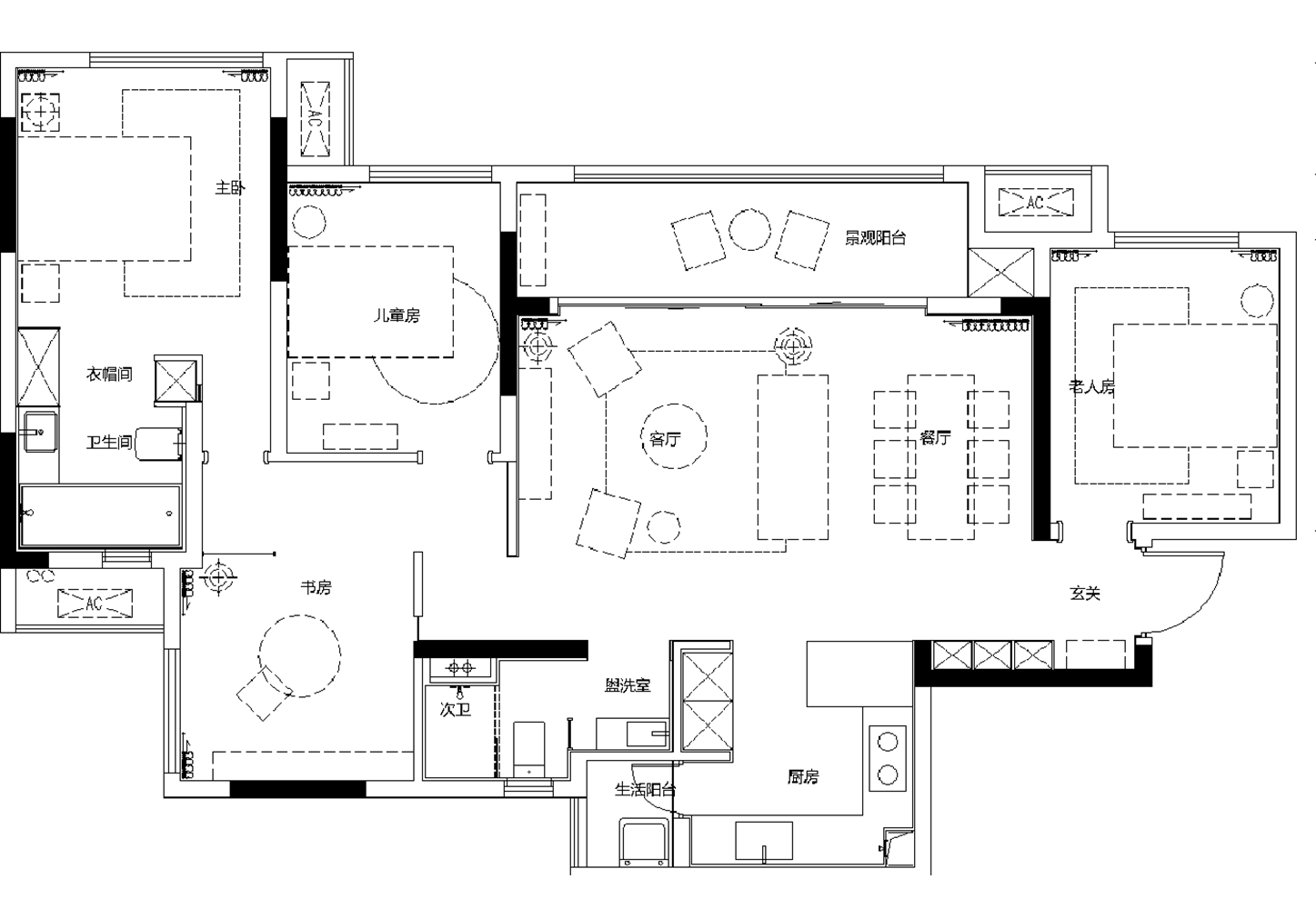
绿地重庆城际空间站C户型
504
作品说明
- 项目类型:地产
- 项目地点:重庆市
- 建筑面积:103㎡
- 项目造价:28万元
- 参与设计师:庞一飞 张婧 万霞 刘昕晨 刘春燕
- 竣工时间:2021-03-19
- 设计机构:设计公司
-
项目定位:真正精致的生活方式不在于空间的华丽,而在于主人对于生活的理解。将艺术与生活到最大程度的融合,透过优雅细腻的布面,演绎居住者品味非凡的生活品质的同时,倡导一种全新的居住体验,既有现代雅士之度又得灵动之趣。
内外之间,虚实之间,沉默不语,以简见真,以简见心。空间整体以稳重质感为基调,正在发生的美好,兼有理想生活的心情,干净的纹路肌理正是预留出生活的干净。软装剥除了常规豪宅惯用的繁复曲线,而是通过几何框架的简洁性,与顶级材料以及工艺变换出丰富的表面肌理。沉稳的石材,精致哑光的金属细节、高级而舒适的面料提升了空间的品质感,简约奢华而又带着仪式感。 -
空间意境:内外之间,虚实之间,沉默不语,以简见真,以简见心。空间整体以稳重质感为基调,正在发生的美好,兼有理想生活的心情,干净的纹路肌理正是预留出生活的干净。软装剥除了常规豪宅惯用的繁复曲线,而是通过几何框架的简洁性,与顶级材料以及工艺变换出丰富的表面肌理。沉稳的石材,精致哑光的金属细节、高级而舒适的面料提升了空间的品质感,简约奢华而又带着仪式感。
-
空间布局:主卧室配套衣帽间与卫生间是生活的仪式感和功能的满足,所有的细节都是带入使用者本身出发,历经了繁复的筛选过程。虽然耗时,但我们希望让房子里的任何东西都有故事,有它们存在的理由,让参观者能从细微之物中感受生活的乐趣。
儿童房干净简洁的墙面,有趣的拼图,为空间加载了艺术性,俏皮精致,为空间带来浪漫的感受。孩子的自我空间也需要被尊重对待,床位靠墙与满墙柜做结合,满足了收纳需求。 -
设计选材:软装剥除了常规豪宅惯用的繁复曲线,而是通过几何框架的简洁性,与顶级材料以及工艺变换出丰富的表面肌理。沉稳的石材,精致哑光的金属细节、高级而舒适的面料提升了空间的品质感,简约奢华而又带着仪式感。
-
用户体验:家,是休息与放松的空间,也是寻找自我、疗愈自我的空间。守本真心,至简至美,闲静时光,当阳光透过落地窗户撒入空间中,映衬出空间明亮通透,每个人都能够成为自己的设计师,设计属于自己独特的生活场景。
0
0

认证 · 让您身份增值